10 800 000 Р 139 800 $ или 118 300

Информация о квартире

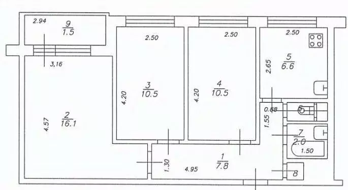
66 м2
Площадь
40 м2
Жилая
8 м2
Кухня
3
Комнаты
9
Этаж
9
Этажность

Дополнительная информация

Тип дома
панельный
Развернуть
Агент
+7 (987) 066-04-01
Начать чат с агентом

3-к кв. Татарстан, Казань ул. Фатыха Амирхана, 30 (66.1 м)

Продается 3-комнатная квартира в одном из востребованных районов города.Светлая, теплая квартира с отличным ремонтом. Теплый дом, лифт заменен на Otis. Во дворе проведена реновация, новая детская площадка, спортивная зона, прогулочные дорожки, лавочки, освещение в темное время, оборудованные парковочные места.Хорошее место положение, отличная инфраструктура, рядом русско-татарская школа, несколько детских садов, облагороженное озеро с дорожками для променада, в шаговой доступности социально-значимые учреждения, ТЦ,, различные магазины и мн.др. Во дворе пункты маркетплейсов.Взрослый собственник, вся сумма в договоре. Есть обременение. За подробностями звоните .

Читать полностью

    Для того, чтобы купить трехкомнатную квартиру по адресу: Казань, м. Северный Вокзал, ул. Фатыха Амирхана, 30, позвоните по телефону +7 (987) 066-04-01. Торопитесь! Объявление №30093920173 о продаже трехкомнатной квартиры опубликовано Вчера.

    Позвонить Написать
    10 800 000 Р139 800 $ или 118 300
    Агент
    +7 (987) 066-04-01
    Начать чат с агентом
    Похожие предложения
    2-к кв. Татарстан, Казань ул. Декабристов, 191 (66.6 м) - Фото 1
    2-к кв. Татарстан, Казань ул. Декабристов, 191 (66.6 м) - Фото 2
    2-комнатная квартира, общая площадь 66м², кухня 9м²

    Компания ГиперДом предлагает Вашему вниманию следующий объект: Просторная двухкомнатная квартира в Московском районе по ул. Декабристов д.191 сталинского проекта с хорошей шумоизоляцией на 3/7 кирпичного дома в шаговой доступности от станции метро Северный...
    • 66 м²
    • 2-ком
    • 3/7 эт.
    10 299 000 Р
    Агент
    +7 (986) Показать номер
    Посмотреть контакты
    2-к кв. Татарстан, Казань ул. Академика Королева, 34 (55.1 м) - Фото 1
    2-к кв. Татарстан, Казань ул. Академика Королева, 34 (55.1 м) - Фото 2
    2-комнатная квартира, общая площадь 55м², жилая 28м², кухня 10м²

    Арт.Продается 2 х комнатная квартира по адресу улица Академика Королева, д. 34Квартира в кирпичном доме, в подъезде 19 квартир.ВЫСОКИЙ ПЕРВЫЙ ЭТАЖ Фото соответствуют действительности, мебель остается по договоренности. Два взрослых собственника. Без обременений...
    • 55 м²
    • 2-ком
    • 1/5 эт.
    • кирпичный
    10 350 000 Р
    Агент
    +7 (986) Показать номер
    Посмотреть контакты
    2-комнатная квартира: Казань, Тэцевская улица, 4 (48 м) - Фото 1
    2-комнатная квартира: Казань, Тэцевская улица, 4 (48 м) - Фото 2
    2-комнатная квартира, общая площадь 48м², жилая 24м², кухня 9м²

    Арт.В ПРОДАЖЕ 2к квартира ЖК ОСТРОВА по адресу Тэцевская 4 Качественный и современный ремонт.Удобная планировка. Квартира укомплектована всем необходимым.Вариант заезжай и живи. площадь квартиры 48 м2 комнаты 11,5 и 14 м2 кухня 8,5 м2 балкон с...
    • 48 м²
    • 2-ком
    • 10/11 эт.
    10 200 000 Р
    Агент
    +7 (905) Показать номер
    Посмотреть контакты
    3-к кв. Татарстан, Казань ул. Академика Королева, 34 (56.2 м) - Фото 1
    3-к кв. Татарстан, Казань ул. Академика Королева, 34 (56.2 м) - Фото 2
    3-комнатная квартира, общая площадь 56м², жилая 28м², кухня 14м²

    Арт.Отличная трехкомнатная квартира с евроремонтом Ул. Королева, д. 34, 4 этаж 5-этажного кирпичного домаО квартире: Площадь: Общая — 56.2 кв.м, без учёта балкона — 54.7 кв.м. Просторная кухня-гостиная 16 кв.м и две изолированные комнаты. Дополнительно:...
    • 56 м²
    • 3-ком
    • 4/5 эт.
    • кирпичный
    11 599 000 Р
    Агент
    +7 (986) Показать номер
    Посмотреть контакты
    3-к кв. Татарстан, Казань ул. Кулахметова, 3 (57.0 м) - Фото 1
    3-к кв. Татарстан, Казань ул. Кулахметова, 3 (57.0 м) - Фото 2
    3-комнатная квартира, общая площадь 57м², жилая 41м², кухня 7м²

    ИДЕАЛЬНАЯ ТРЕШКА В КАЗАНИ НА КУЛАХМЕТОВА д.3 Продается светлая и уютная квартира с отличной энергетикой. Заходи и живи В квартире: Раздельный санузел (кафель) Натяжные потолки и ламинат Пластиковые окна (тепло и тихо) Почему это лучший вариант?Дом...
    • 57 м²
    • 3-ком
    • 6/9 эт.
    • панельный
    10 700 000 Р
    Агент
    +7 (987) Показать номер
    Посмотреть контакты

    Не нашли подходящего объявления?

    Оставьте заявку, и наши риэлторы подберут квартиру в районе Казани

    (0)