11 200 000 Р 145 500 $ или 123 500

Информация о квартире

82 м2
Площадь
66 м2
Жилая
11 м2
Кухня
3
Комнаты
4
Этаж
18
Этажность
Развернуть
Агент
+7 (962) 578-16-12
Начать чат с агентом

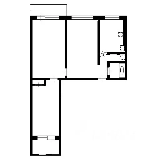
3-комнатная квартира: Казань, улица Нурихана Фаттаха, 15 (82.3 м)

Просторная квартира площадью 82.3 кв.м расположена на 4 этаже современного 18-этажного дома 2015 года постройки на улице Нурихана Фаттаха в Казани. Объект предлагает свободную планировку с жилой зоной 45 кв.м и кухней 11.5 кв.м, что позволяет адаптировать пространство под индивидуальные потребности. Высота потолков 2.7 метра и окна на две стороны обеспечивают обилие естественного света. Квартира выполнена с качественным дизайнерским ремонтом, включает раздельный санузел и лоджию. Вся новая бытовая техника остается новому владельцу.Дом блочной конструкции отличается надежностью, оснащен пассажирским и грузовым лифтами, мусоропроводом и наземной парковкой. Район обладает развитой инфраструктурой: в шаговой доступности расположены школы, детские сады, поликлиники и магазины. Транспортная доступность обеспечивается выездом на основные магистрали, дорога до станции метро Авиастроительная на автомобиле занимает около 20 минут.Продажа осуществляется напрямую от собственника, все документы готовы к чистой и прозрачной сделке. Рассматривается вариант покупки с использованием ипотечного кредитования. Для детального ознакомления с планировкой, ремонтом и преимуществами локации доступен просмотр в удобное время.Помощь в одобрении ипотеки по самым выгодным ставкамЗВОНИТЕ Код пользователя: 192564Номер в базе:

Читать полностью

    Для того, чтобы купить трехкомнатную квартиру по адресу: Казань, м. Козья слобода, улица Нурихана Фаттаха, 15, позвоните по телефону +7 (962) 578-16-12. Торопитесь! Объявление №30093392115 о продаже трехкомнатной квартиры опубликовано Сегодня.

    Позвонить Написать
    11 200 000 Р145 500 $ или 123 500
    Агент
    +7 (962) 578-16-12
    Начать чат с агентом
    Похожие предложения
    1-к кв. Татарстан, Казань Чистопольская ул., 86 (42.0 м) - Фото 1
    1-к кв. Татарстан, Казань Чистопольская ул., 86 (42.0 м) - Фото 2
    1-комнатная квартира, общая площадь 42м², кухня 13м²

    Продаю 1-ком. квартиру в Ново- Савиновском районе г.Казани на комфортном 2-ом этаже. Чистая продажа. Быстрый выход на сделку.Характеристика объектаОбщая площадь - 42 м.кв.Площадь кухни - 13,1 м.кв.Жилая площадь - 19,1 м.кв.Квapтира проcтоpная и cвeтлая...
    • 42 м²
    • 1-ком
    • 2/12 эт.
    12 000 000 Р
    Агент
    +7 (987) Показать номер
    Посмотреть контакты
    2-комнатная квартира, общая площадь 58м², жилая 35м², кухня 9м²

    Продается уютная 2-комнатная квартира в Казани. Перспективный район напротив ТЦ Тандем , в 5 минутах пешком от метро Козья Слобода . Идеальный вариант для комфортной городской жизни с отличным доступом к транспорту — остановка прямо у дома.Планировка...
    • 58 м²
    • 2-ком
    • 7/14 эт.
    • кирпичный
    10 500 000 Р
    Агент
    +7 (985) Показать номер
    Посмотреть контакты
    3-к кв. Татарстан, Казань ул. Академика Лаврентьева, 8 (62.8 м) - Фото 1
    3-к кв. Татарстан, Казань ул. Академика Лаврентьева, 8 (62.8 м) - Фото 2
    3-комнатная квартира, общая площадь 62м², жилая 38м², кухня 8м²

    Предлагаю вашему вниманию отличную 3-х комнатную Ленинградку в Ново-Савиновском районе Парковка во дворе в подарок Квартира светлая, просторная, с гардеробной, двумя лоджиями, выход на них из спален, остекление и обшиты деревом. 62,8/17,1+10,2+11,5/8,5В...
    • 62 м²
    • 3-ком
    • 5/9 эт.
    • панельный
    10 500 000 Р
    Агент
    +7 (987) Показать номер
    Посмотреть контакты
    2-к кв. Татарстан, Казань просп. Ямашева, 43 (60.0 м) - Фото 1
    2-к кв. Татарстан, Казань просп. Ямашева, 43 (60.0 м) - Фото 2
    2-комнатная квартира, общая площадь 60м², жилая 30м², кухня 10м²

    Продаю отличную двухкомнатную квартиру в Ново-Савиновском районе г.Казани на ул. Ямашева, 43.Дом монолитно-кирпичный 2003 года постройки.Комфортный второй этаж. Есть свое подсобное помещение.На первом этаже расположена жилая квартира, КОЗЫРЬКОВ и ВЫСТУПОВ...
    • 60 м²
    • 2-ком
    • 2/17 эт.
    • кирпичный
    11 700 000 Р
    Агент
    +7 (986) Показать номер
    Посмотреть контакты
    2-к кв. Татарстан, Казань ул. Абсалямова, 23 (46.0 м) - Фото 1
    2-к кв. Татарстан, Казань ул. Абсалямова, 23 (46.0 м) - Фото 2
    2-комнатная квартира, общая площадь 46м², кухня 8м²

    В продаже уютная двухкомнатная квартира на 5 этаже из 10 Локация - сердце Ново-Савиновского района, самая развитая инфраструктура для комфортной жизни - здесь Удобная квартира с прекрасным видом из окна - можно любоваться тихим, спокойным сквером Выполнен...
    • 46 м²
    • 2-ком
    • 5/10 эт.
    • панельный
    11 799 000 Р
    Агент
    +7 (919) Показать номер
    Посмотреть контакты

    Не нашли подходящего объявления?

    Оставьте заявку, и наши риэлторы подберут квартиру в районе Казани

    (0)