33 500 000 Р 423 200 $ или 364 800

Информация о квартире

200 м2
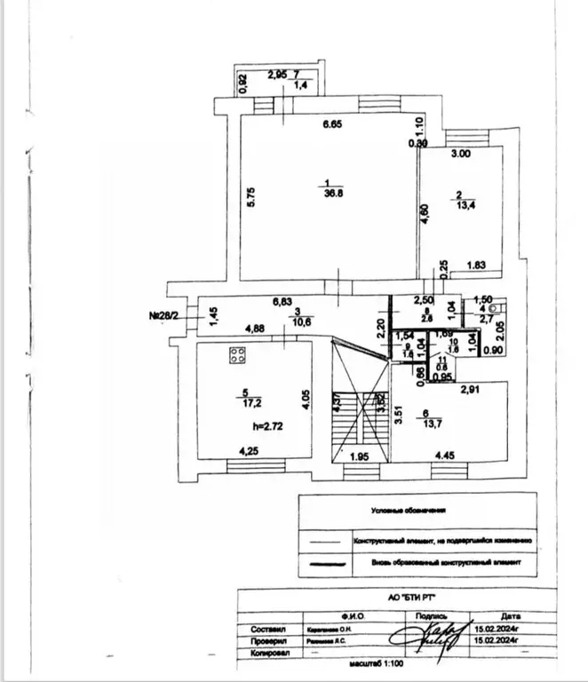
Площадь
175 м2
Жилая
20 м2
Кухня
6
Этаж
6
Этажность

Дополнительная информация

Тип дома
кирпичный
Развернуть
Агент
+7 (986) 901-46-62
Начать чат с агентом

Свободной планировки кв. Татарстан, Казань ул. Туфана Миннуллина, 10А ...

Объект 114524 квартира +апартаменты в центре у реки Продается двухуровневая квартира в самой топовой локации- центр города с кваривыми видами с 6-7 этажа на город.в 5 минутах озеро Кабан и прогулочные зоны.общая площадь 200м кв. Состоит из двух этажейна 6м этаже: 2комн жилая квартира -кхня гостинная 18м ,две спальни санузел, два балкона. встроенная техника и мебель остается.на 7м этаже: 4комнаты -апартаменты. номера со своим санузлом и кухонным уголком. лифт в личном пользовании Изначально -7комн квартира. есть еще выход на чердак и там +30 м кв. Можно рассмотреть как жилую и как ГАБ - МАп с одного этажа 350.000. Добавьте в избранное, чтобы не потерять понравившийся объект. Звоните с 8:00 до 20:00 или пишите в любое время — ответим быстро

Читать полностью

    Для того, чтобы купить квартиру по адресу: Казань, м. Суконная слобода, ул. Туфана Миннуллина, 10А, позвоните по телефону +7 (986) 901-46-62. Торопитесь! Объявление №30092956883 о продаже -1-комнатной квартиры опубликовано 05 марта 2026.

    Позвонить Написать
    33 500 000 Р423 200 $ или 364 800
    Агент
    +7 (986) 901-46-62
    Начать чат с агентом
    Похожие предложения
    4-к кв. Татарстан, Казань ул. Волкова, 55 (117.7 м) - Фото 1
    4-к кв. Татарстан, Казань ул. Волкова, 55 (117.7 м) - Фото 2
    4-комнатная квартира, общая площадь 117м², жилая 70м², кухня 7м²

    Арт.Если вы в поисках квартиры для семьи в центре Казани, возможно, эта квартира именно для вас. Кирпичный дом 2001 года на Волкова 55/21. Это там самая малоэтажная Казань, жить в которой наиболее комфортно и престижно. Рядом сетевые кофейни, пекарни,...
    • 117 м²
    • 4-ком
    • 5/5 эт.
    • кирпичный
    33 000 000 Р
    Агент
    +7 (917) Показать номер
    Посмотреть контакты
    4-к кв. Татарстан, Казань ул. Калинина, 10 (158.0 м) - Фото 1
    4-к кв. Татарстан, Казань ул. Калинина, 10 (158.0 м) - Фото 2
    4-комнатная квартира, общая площадь 158м², кухня 19м²

    В продаже эксклюзивный объект Четырехкомнатная квартира в элитном доме в самом центре города на улице Калинина площадью 158.6кв м Отличный вариант для большой семьи с потрясающим расположением и удобной планировкой.Преимущества дома: - капитальная...
    • 158 м²
    • 4-ком
    • 4/6 эт.
    34 000 000 Р
    Агент
    +7 (986) Показать номер
    Посмотреть контакты
    3-к кв. Татарстан, Казань ул. Шаляпина, 32 (75.0 м) - Фото 1
    3-к кв. Татарстан, Казань ул. Шаляпина, 32 (75.0 м) - Фото 2
    3-комнатная квартира, общая площадь 75м², жилая 35м², кухня 21м²

    Продается трехкомнатная квартира в новом доме ЖК Шаляпин в Вахитовском районе, рядом с КазанМоллом . Квартира выполнена по дизайн-проекту, осталась только покупка мебели. В доме установлена индивидуальная система отопления, в квартире — теплые полы....
    • 75 м²
    • 3-ком
    • 8/10 эт.
    34 999 999 Р
    Агент
    +7 (986) Показать номер
    Посмотреть контакты
    Продажа квартиры, Казань, ул. Туфана Миннуллина - Фото 1
    Продажа квартиры, Казань, ул. Туфана Миннуллина - Фото 2
    Продажа квартиры, Казань, ул. Туфана Миннуллина - Фото 3
    Продажа квартиры, Казань, ул. Туфана Миннуллина - Фото 4
    Продажа квартиры, Казань, ул. Туфана Миннуллина - Фото 5
    Продажа квартиры, Казань, ул. Туфана Миннуллина - Фото 6
    Продажа квартиры, Казань, ул. Туфана Миннуллина - Фото 7
    Продажа квартиры, Казань, ул. Туфана Миннуллина - Фото 8
    Продажа квартиры, Казань, ул. Туфана Миннуллина - Фото 9
    Продажа квартиры, Казань, ул. Туфана Миннуллина - Фото 10
    Продажа квартиры, Казань, ул. Туфана Миннуллина - Фото 11
    Продажа квартиры, Казань, ул. Туфана Миннуллина - Фото 12
    Продажа квартиры, Казань, ул. Туфана Миннуллина - Фото 13
    Продажа квартиры, Казань, ул. Туфана Миннуллина - Фото 14
    Продажа квартиры, Казань, ул. Туфана Миннуллина - Фото 15
    Продажа квартиры, Казань, ул. Туфана Миннуллина - Фото 16
    Продажа квартиры, Казань, ул. Туфана Миннуллина - Фото 17
    Продажа квартиры, Казань, ул. Туфана Миннуллина - Фото 18
    Продажа квартиры, Казань, ул. Туфана Миннуллина - Фото 19
    Продажа квартиры, Казань, ул. Туфана Миннуллина - Фото 20
    с евроремонтом, общая площадь 200м², жилая 175м², кухня 20м²

    Объект №114524 квартира +апартаменты в центре у реки!Продается двухуровневая квартира в самой топовой локации- центр города с кваривыми видами с 6-7 этажа на город.в 5 минутах озеро Кабан и прогулочные зоны. общая площадь 200м кв. Состоит из двух этажей на...
    • 200 м²
    • 7-ком
    • 6/6 эт.
    33 500 000 Р
    Агент
    +7 (843) Показать номер
    Агентство
    ФЛЭТ
    Посмотреть контакты
    Продажа квартиры, Казань, ул. Маяковского - Фото 1
    Продажа квартиры, Казань, ул. Маяковского - Фото 2
    Продажа квартиры, Казань, ул. Маяковского - Фото 3
    Продажа квартиры, Казань, ул. Маяковского - Фото 4
    Продажа квартиры, Казань, ул. Маяковского - Фото 5
    Продажа квартиры, Казань, ул. Маяковского - Фото 6
    Продажа квартиры, Казань, ул. Маяковского - Фото 7
    Продажа квартиры, Казань, ул. Маяковского - Фото 8
    Продажа квартиры, Казань, ул. Маяковского - Фото 9
    Продажа квартиры, Казань, ул. Маяковского - Фото 10
    Продажа квартиры, Казань, ул. Маяковского - Фото 11
    Продажа квартиры, Казань, ул. Маяковского - Фото 12
    Продажа квартиры, Казань, ул. Маяковского - Фото 13
    Продажа квартиры, Казань, ул. Маяковского - Фото 14
    1-комнатная квартира, с евроремонтом, общая площадь 52м², жилая 30м², кухня 20м²

    Объект №112133 Квартира в ВАХИТОВСКОМ районе ! BAXИTОВСKИЙ pайон, ул.Маяковcкого, д.4 (ст.метро "Плoщадь Тукaя") ПPOСTОРHАЯ квартиpa 52 кв.м в кирпичном доме 2014 года , в одном из сaмых TИХИX и УЮTHЫX угoлков иcтoричеcкого ЦЕНТРА г. КАЗАНИ : ВЫСОТА...
    • 52 м²
    • 1-ком
    • 4/5 эт.
    34 044 000 Р
    Агент
    +7 (843) Показать номер
    Агентство
    ФЛЭТ
    Посмотреть контакты

    Не нашли подходящего объявления?

    Оставьте заявку, и наши риэлторы подберут квартиру в районе Казани

    (0)