Россия, Республика Татарстан, Казань, ул. Аметьевская магистраль, 16к2
7 600 000 Р 97 150 $ или 82 520

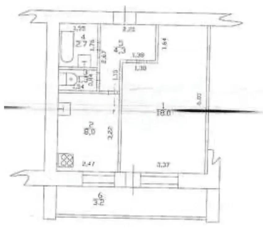
Информация о квартире

28 м2
Площадь
15 м2
Жилая
8 м2
Кухня
студия
Комнат
8
Этаж
24
Этажность

Дополнительная информация

Тип дома
монолит
Развернуть
Агент
+7 (917) 890-87-34
Начать чат с агентом

Студия Татарстан, Казань ул. Аметьевская магистраль, 16к2 (28.4 м)

id:33179. Продается квартира-студия 28,4 кв.метров (эта площадь без учета лоджии ,плюс огромная лоджия).в ЖК Голливуд рядом с метро Аметьево.Квартира с хорошим ремонтом.Остается мебель и техника .Документы в полном порядке.1 взрослый собственник. Более 5 лет в собственности.Без долгов и обременений.Рядом ЖК Легенда,ЖК Журавли улицы Даурская,Гвардейская,Аделя Кутуя,Зорге,Карбышева,Отличный вариант как для собственного проживания ,так и для сдачи в аренду.Звоните Покажем вам в удобное время.

Читать полностью

    Для того, чтобы купить студию по адресу: Казань, м. Аметьево, ул. Аметьевская магистраль, 16к2, позвоните по телефону +7 (917) 890-87-34. Торопитесь! Объявление №30092683972 о продаже студии опубликовано 03 января 2026.

    Позвонить Написать
    7 600 000 Р97 150 $ или 82 520
    Агент
    +7 (917) 890-87-34
    Начать чат с агентом
    Похожие предложения
    3-к кв. Татарстан, Казань ул. Латышских Стрелков, 4а (60.0 м) - Фото 1
    3-к кв. Татарстан, Казань ул. Латышских Стрелков, 4а (60.0 м) - Фото 2
    3-комнатная квартира, общая площадь 60м², жилая 44м², кухня 7м²

    Продается просторная трехкомнатная квартира во вторичном жилье на первом этаже пятиэтажного дома, расположенного рядом с метро Аметьево, по адресу: г. Казань, ул. Латышских Стрелков, дом 4а. Квартира венгерского проекта, общей площадью 60.00 кв.м., при...
    • 60 м²
    • 3-ком
    • 1/5 эт.
    • панельный
    7 500 000 Р
    Агент
    +7 (987) Показать номер
    Посмотреть контакты
    1-к кв. Татарстан, Казань Гвардейская ул., 61 (37.5 м) - Фото 1
    1-к кв. Татарстан, Казань Гвардейская ул., 61 (37.5 м) - Фото 2
    1-комнатная квартира, общая площадь 37м², кухня 8м²

    Продаю уютную однокомнатную квартиру на Гвардейской 61, общей площадью 37.5 кв. м. Кирпичный дом 1995 года постройки. Комфортный 3 этаж. Подъезд чистый, в подъезде и во дворе установлены камеры видеонаблюдения. Соседи интеллигентные, не шумные. Хорошее...
    • 37 м²
    • 1-ком
    • 3/10 эт.
    • кирпичный
    7 500 000 Р
    Агент
    +7 (987) Показать номер
    Посмотреть контакты
    Продажа квартиры, Казань, ул. Новаторов - Фото 1
    Продажа квартиры, Казань, ул. Новаторов - Фото 2
    Продажа квартиры, Казань, ул. Новаторов - Фото 3
    Продажа квартиры, Казань, ул. Новаторов - Фото 4
    Продажа квартиры, Казань, ул. Новаторов - Фото 5
    Продажа квартиры, Казань, ул. Новаторов - Фото 6
    Продажа квартиры, Казань, ул. Новаторов - Фото 7
    Продажа квартиры, Казань, ул. Новаторов - Фото 8
    Продажа квартиры, Казань, ул. Новаторов - Фото 9
    Продажа квартиры, Казань, ул. Новаторов - Фото 10
    Продажа квартиры, Казань, ул. Новаторов - Фото 11
    Продажа квартиры, Казань, ул. Новаторов - Фото 12
    Продажа квартиры, Казань, ул. Новаторов - Фото 13
    Продажа квартиры, Казань, ул. Новаторов - Фото 14
    Продажа квартиры, Казань, ул. Новаторов - Фото 15
    Продажа квартиры, Казань, ул. Новаторов - Фото 16
    Продажа квартиры, Казань, ул. Новаторов - Фото 17
    Продажа квартиры, Казань, ул. Новаторов - Фото 18
    Продажа квартиры, Казань, ул. Новаторов - Фото 19
    Продажа квартиры, Казань, ул. Новаторов - Фото 20
    3-комнатная квартира, общая площадь 51.5м², жилая 35.2м², кухня 5.9м²

    Объект №115116 квартира заезжай и живи! Продается отличная трехкомнатная квартира по улице Новаторов, уютная, полностью готовая к проживанию, остается вся мебель, квартира теплая, первый этаж идет, как второй. Один взpocлый coбcтвенник. Без обремeнений,...
    • 51.5 м²
    • 3-ком
    • 1/5 эт.
    7 700 000 Р
    Агент
    +7 (843) Показать номер
    Агентство
    ФЛЭТ
    Посмотреть контакты
    Продажа квартиры, Казань, ул. Братьев Батталовых - Фото 1
    Продажа квартиры, Казань, ул. Братьев Батталовых - Фото 2
    Продажа квартиры, Казань, ул. Братьев Батталовых - Фото 3
    Продажа квартиры, Казань, ул. Братьев Батталовых - Фото 4
    Продажа квартиры, Казань, ул. Братьев Батталовых - Фото 5
    Продажа квартиры, Казань, ул. Братьев Батталовых - Фото 6
    Продажа квартиры, Казань, ул. Братьев Батталовых - Фото 7
    Продажа квартиры, Казань, ул. Братьев Батталовых - Фото 8
    Продажа квартиры, Казань, ул. Братьев Батталовых - Фото 9
    Продажа квартиры, Казань, ул. Братьев Батталовых - Фото 10
    Продажа квартиры, Казань, ул. Братьев Батталовых - Фото 11
    Продажа квартиры, Казань, ул. Братьев Батталовых - Фото 12
    Продажа квартиры, Казань, ул. Братьев Батталовых - Фото 13
    Продажа квартиры, Казань, ул. Братьев Батталовых - Фото 14
    1-комнатная квартира, общая площадь 36.9м², жилая 18м², кухня 11.7м²

    Объект №112503 Можно не ждать сдачи домаредлагаем в продажу светлую, просторную 1-комнатную квартиру в доме повышенной комфортности ЖК "Палитра", расположенном в самом экологически чистом Приволжском районе Казани. Дом с огороженной территорией, детской...
    • 36.9 м²
    • 1-ком
    • 4/26 эт.
    7 560 000 Р
    Агент
    +7 (843) Показать номер
    Агентство
    ФЛЭТ
    Посмотреть контакты
    Продажа квартиры, Казань, ул. Роторная - Фото 1
    Продажа квартиры, Казань, ул. Роторная - Фото 2
    Продажа квартиры, Казань, ул. Роторная - Фото 3
    Продажа квартиры, Казань, ул. Роторная - Фото 4
    Продажа квартиры, Казань, ул. Роторная - Фото 5
    Продажа квартиры, Казань, ул. Роторная - Фото 6
    Продажа квартиры, Казань, ул. Роторная - Фото 7
    Продажа квартиры, Казань, ул. Роторная - Фото 8
    Продажа квартиры, Казань, ул. Роторная - Фото 9
    Продажа квартиры, Казань, ул. Роторная - Фото 10
    Продажа квартиры, Казань, ул. Роторная - Фото 11
    Продажа квартиры, Казань, ул. Роторная - Фото 12
    Продажа квартиры, Казань, ул. Роторная - Фото 13
    Продажа квартиры, Казань, ул. Роторная - Фото 14
    Продажа квартиры, Казань, ул. Роторная - Фото 15
    Продажа квартиры, Казань, ул. Роторная - Фото 16
    Продажа квартиры, Казань, ул. Роторная - Фото 17
    Продажа квартиры, Казань, ул. Роторная - Фото 18
    Продажа квартиры, Казань, ул. Роторная - Фото 19
    2-комнатная квартира, общая площадь 40.4м², жилая 26.2м², кухня 5.6м²

    Объект №114220 Уютная квартира на первом этаже в центреХотите купить хорошую двухкомнатную квартиру? Тогда рассмотрите наш вариант. Вам точно понравится) . 1. УДАЧНАЯ ПЛАНИРОВКА! - изолированные комнаты прямоугольной формы; - квадратная компактная...
    • 40.4 м²
    • 2-ком
    • 1/5 эт.
    7 500 000 Р
    Агент
    +7 (843) Показать номер
    Агентство
    ФЛЭТ
    Посмотреть контакты

    Не нашли подходящего объявления?

    Оставьте заявку, и наши риэлторы подберут квартиру в районе Казани

    (0)