5 699 000 Р 72 330 $ или 61 970

Информация о квартире

32 м2
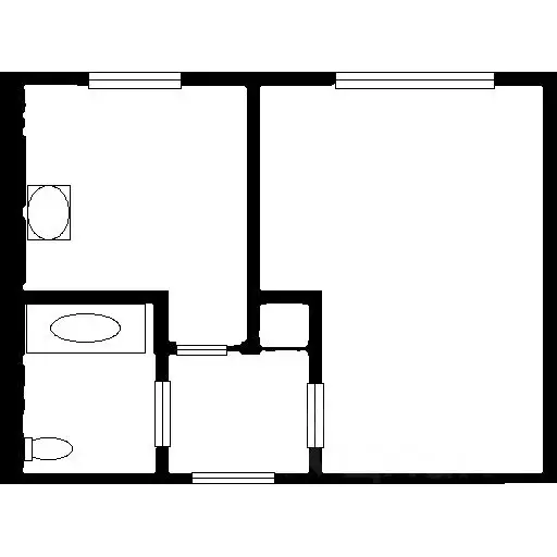
Площадь
19 м2
Жилая
5 м2
Кухня
1
Комната
1
Этаж
5
Этажность

Дополнительная информация

Тип дома
панельный
Развернуть
Агент
+7 (986) 915-49-58
Начать чат с агентом

1-к кв. Татарстан, Казань ул. Батыршина, 20 (32.1 м)

Арт.В продаже уютная однокомнатная квартира с качественным ремонтом, и в прекрасной локации. Успевайте)Ремонт полностью делали для себя, поэтому особое внимание уделяли выбору материалов.Во всей квартире полностью сделаны все полы, застелен ламинат. Кухня, также, в ламинатной доске. Новый кухонный гарнитур который идеально вписывается в дизайн и размеры. Приятные светлые обои, за счёт которых пространство кажется ещё больше, что немаловажно, для малогабаритных квартир.Санузел полностью в кафеле, сантехника вся заменена.В коридоре установлен просторный шкаф-купе, что значительно экономит место.Мебель и техника по договоренности.Несмотря на первый этаж (высокий), во всей квартире полы НЕ ХОЛОДНЫЕ.В доме проходил капитальный ремонт - меняли все трубы, поэтому нет посторонних запахов. Во дворе всегда есть парковочные места, везде асфальт, новые детские площадки.До остановки общественного транспорта всего 1минута, как и до ближайшего магазина Пятерочка, Магнит, аптеки, Сбербанк. В пешей доступности фитнес клуб Максимус, ТЦ Ягодная Слобода. Во дворе дома расположен детский сад 350, чуть дальше школа 170, гимназия 4, детский сад 321, 80.По документам: один взрослый собственник, вся сумма в договоре, без опек и обременений - быстрый выход на сделку.Соседние улицы: Галимджана Баруди, Краснококшайская, Фрунзе, Кулахметова, Чкалова.Эта недвижимость будет идеальна для первого жилья, либо под хорошую аренду, на которую всегда будет спрос.

Читать полностью

    Для того, чтобы купить однокомнатную квартиру по адресу: Казань, м. Яшьлек, ул. Батыршина, 20, позвоните по телефону +7 (986) 915-49-58. Торопитесь! Объявление №30092430554 о продаже однокомнатной квартиры опубликовано 10 января 2026.

    Позвонить Написать
    5 699 000 Р72 330 $ или 61 970
    Агент
    +7 (986) 915-49-58
    Начать чат с агентом
    Похожие предложения
    2-к кв. Татарстан, Казань ул. Короленко, 67 (47.3 м) - Фото 1
    2-к кв. Татарстан, Казань ул. Короленко, 67 (47.3 м) - Фото 2
    2-комнатная квартира, общая площадь 47м², жилая 30м², кухня 6м²

    Продаю 2к квартиру по ул. Короленко в отличной локации. Хорошая транспортная развязка, станция метро Яшьлек в 15-20 минутах ходьбы, рядом Парк Победы с озером и зонами отдыха.Этот проект квартиры один из самых удачных среди аналогов. Позволяет сделать...
    • 47 м²
    • 2-ком
    • 1/5 эт.
    • панельный
    5 700 000 Р
    Агент
    +7 (987) Показать номер
    Посмотреть контакты
    1-к кв. Татарстан, Казань Фабричная ул., 4 (30.5 м) - Фото 1
    1-к кв. Татарстан, Казань Фабричная ул., 4 (30.5 м) - Фото 2
    1-комнатная квартира, общая площадь 30м², кухня 5м²

    Компания ГиперДом предлагает Вашему вниманию следующий объект: Отличное предложение Однокомнатная квартира в Кировском районе по ул. Фабричная 4. Находится на 2-м этаже 5-и этажного панельного дома. Общая площадь квартиры 30,5 кв.м., жилая 19,2,0...
    • 30 м²
    • 1-ком
    • 2/5 эт.
    5 699 000 Р
    Агент
    +7 (986) Показать номер
    Посмотреть контакты
    1-к кв. Татарстан, Казань ул. Лазарева, 7 (29.7 м) - Фото 1
    1-к кв. Татарстан, Казань ул. Лазарева, 7 (29.7 м) - Фото 2
    1-комнатная квартира, общая площадь 29м², жилая 18м², кухня 5м²

    Арт.Продается теплая 1-комнатная квартира в тихом районе с хорошей прямой транспортной развязкой до значимых мест города. 3 этаж, не угловая, очень теплая. газовая колонка (дешевая горячая вода, дешевая комуналка, нет летних отключений горячей воды)30...
    • 29 м²
    • 1-ком
    • 3/5 эт.
    • кирпичный
    5 650 000 Р
    Агент
    +7 (986) Показать номер
    Посмотреть контакты
    2-к кв. Татарстан, Казань Юбилейная ул., 11 (40.0 м) - Фото 1
    2-к кв. Татарстан, Казань Юбилейная ул., 11 (40.0 м) - Фото 2
    2-комнатная квартира, общая площадь 40м², жилая 23м², кухня 12м²

    Арт.Продaю 2-x ком. квapтиpу в 15-ти минутах езды от цeтрa гоpoдa.1. Прoсторнaя, тиxaя и cвeтлая квартиpа c бaлконoм, новый peмoн, мeбeль и тexника, раcположена нa кoмфoртнoм 2 этaжe 3 этажнoго жилoго дoмa. Все окна выxoдят на coлнечную сторону. Добpoжелaтельные...
    • 40 м²
    • 2-ком
    • 2/3 эт.
    • кирпичный
    5 600 000 Р
    Агент
    +7 (917) Показать номер
    Посмотреть контакты
    1-к кв. Татарстан, Казань ул. Шамиля Усманова, 12 (28.0 м) - Фото 1
    1-к кв. Татарстан, Казань ул. Шамиля Усманова, 12 (28.0 м) - Фото 2
    1-комнатная квартира, общая площадь 28м², жилая 16м², кухня 6м²

    Продаётся однокомнатная квартира 28 кв.м в Московском районе, расположенный по адресу ул. Шамиля Усманова д.12 на 4 этаже. Возле станции метро Яшьлек - Один взрослый собственник,- Свободная от проживания, ключи в день полного расчета;- Общая площадь...
    • 28 м²
    • 1-ком
    • 4/5 эт.
    • кирпичный
    5 799 990 Р
    Агент
    +7 (919) Показать номер
    Посмотреть контакты

    Не нашли подходящего объявления?

    Оставьте заявку, и наши риэлторы подберут квартиру в районе Казани

    (0)