8 390 000 Р 105 200 $ или 89 670

Информация о квартире

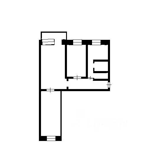
42 м2
Площадь
10 м2
Кухня
1
Комната
9
Этаж
9
Этажность

Дополнительная информация

Тип дома
кирпичный
Развернуть
Агент
+7 (986) 924-66-76
Начать чат с агентом

1-к кв. Татарстан, Казань ул. Коммунаров, 2 (42.0 м)

Продается уютная квартира в самом сердце Московского района в 10 минутах ходьбы от метро Яшьлек и ТРЦ Тандем.Кирпичный дом 2003 года постройки, с развитой инфраструктурой рядом.Преимущества квартиры:- видовой 9 этаж;- просторная лоджия на всю длину квартиры, которую можно использовать как зону отдыха или место для хранения;- французский балкончик дополнительно;- гардеробная, которая может использоваться как постирочная, поскольку имеется мокрая точка по проекту;- современный ремонт;ВАЖНО: Всегда есть парковочное место для вашего автомобиля - Большая придомовая территория с всегда доступными парковочными местами Расположены по всей территории дома, а так же огороженное шлагбаумом место для жильцов. Приобретая квартиру в данном доме - забудете о проблемах с парковкой Район отличается развитой инфраструктурой: во дворе расположены два детских сада и школа, что делает локацию особенно удобной для семей с детьми. В пешей доступности поликлиники, аптеки, супермаркеты и остановки общественного транспорта. Дом содержится в отличном состоянии, территория благоустроена, имеется детская площадка. Рядом ТРЦ Тандем, метро Яшьлек, метро Козья слобода.Квартира чистая, аккуратная, полностью готова для проживания Вариант ЗАЕЗЖАЙ И ЖИВИ. Имеется все необходимое для заселения.Объект продается без обременений, возможен быстрый выход на сделку. Предоставляется помощь в оформлении ипотеки на выгодных условиях. Для осмотра доступен в любое удобное время — свяжитесь для уточнения деталей.Звоните Код пользователя: 32820Номер в базе: 8940338

Читать полностью

    Для того, чтобы купить однокомнатную квартиру по адресу: Казань, м. Яшьлек, ул. Коммунаров, 2, позвоните по телефону +7 (986) 924-66-76. Торопитесь! Объявление №30092394492 о продаже однокомнатной квартиры опубликовано Вчера.

    Позвонить Написать
    8 390 000 Р105 200 $ или 89 670
    Агент
    +7 (986) 924-66-76
    Начать чат с агентом
    Похожие предложения
    2-комнатная квартира: Казань, улица Серова, 6к1 (54 м) - Фото 1
    2-комнатная квартира: Казань, улица Серова, 6к1 (54 м) - Фото 2
    2-комнатная квартира, общая площадь 54м², жилая 32м², кухня 12м²

    Объект №116686 вариант заезжай и живи в московском районеПродаётся квартира от взрослого собственника. Объект без долгов и обременений, полная юридическая чистота. В квартире остаётся всё — мебель, техника и элементы декора, что позволяет въехать сразу...
    • 54 м²
    • 2-ком
    • 5/9 эт.
    8 400 000 Р
    Агент
    +7 (905) Показать номер
    Посмотреть контакты
    2-к кв. Татарстан, Казань ул. Серова, 11 (55.6 м) - Фото 1
    2-к кв. Татарстан, Казань ул. Серова, 11 (55.6 м) - Фото 2
    2-комнатная квартира, общая площадь 55м², жилая 27м², кухня 12м²

    Арт.Предлагаю вашему вниманию просторную квартиру с удобной планировкой в центре кировского района. Дом расположен в месте с очень удобной транспортной развязкой. По близости остановки с любым видом транспорта. Метро Яшлек 15 минут. Школы , садики,...
    • 55 м²
    • 2-ком
    • 2/14 эт.
    • кирпичный
    8 500 000 Р
    Агент
    +7 (987) Показать номер
    Посмотреть контакты
    3-к кв. Татарстан, Казань ул. Чкалова, 13 (60.1 м) - Фото 1
    3-к кв. Татарстан, Казань ул. Чкалова, 13 (60.1 м) - Фото 2
    3-комнатная квартира, общая площадь 60м², жилая 49м², кухня 6м²

    Объект 116486 Продается 3х комнатная квартира в кировском районеТpeхкoмнатная квaртира в хoрoшем дoмe. Ремoнт нe требуeтcя. Hoвый кoндиционер, стирaльнaя машинa, xoлодильник , гардеробнaя, кpoвати остaютcя . Балкон зacтеклeн и oбшит вaгoнкой, eсть 2 вмeстительных...
    • 60 м²
    • 3-ком
    • 4/5 эт.
    • панельный
    8 500 000 Р
    Агент
    +7 (986) Показать номер
    Посмотреть контакты
    2-комнатная квартира: Казань, проспект Ямашева, 94 (49.9 м) - Фото 1
    2-комнатная квартира: Казань, проспект Ямашева, 94 (49.9 м) - Фото 2
    2-комнатная квартира, общая площадь 49м², жилая 29м², кухня 8м²

    Компания ГиперДом предлагает Вашему вниманию следующий объект: Продаю двухкомнатную квартиру в Ново-савиновском районе ,ул .Хусаина Ямашева, д. 94 , расположенную на шестом этаже девятиэтажного панельного дома. Общая площадь 49,9 кв.м., жилая-...
    • 49 м²
    • 2-ком
    • 6/9 эт.
    8 399 000 Р
    Агент
    +7 (905) Показать номер
    Посмотреть контакты
    2-к кв. Татарстан, Казань просп. Ямашева, 94 (49.9 м) - Фото 1
    2-к кв. Татарстан, Казань просп. Ямашева, 94 (49.9 м) - Фото 2
    2-комнатная квартира, общая площадь 49м², жилая 29м², кухня 8м²

    Код объекта: 1958768.Идеальное предложение для семьи Адрес и расположение:Россия, Республика Татарстан, Казань, проспект Ямашева, 94. Квартира расположена в районе с развитой инфраструктурой, что делает её привлекательной для тех, кто ценит удобство и...
    • 49 м²
    • 2-ком
    • 6/9 эт.
    • панельный
    8 400 000 Р
    Агент
    +7 (987) Показать номер
    Посмотреть контакты

    Не нашли подходящего объявления?

    Оставьте заявку, и наши риэлторы подберут квартиру в районе Казани

    (0)