7 900 000 Р 100 100 $ или 86 460

Информация о квартире

48 м2
Площадь
8 м2
Кухня
2
Комнаты
3
Этаж
10
Этажность

Дополнительная информация

Тип дома
кирпичный
Развернуть
Агент
+7 (917) 873-52-67
Начать чат с агентом

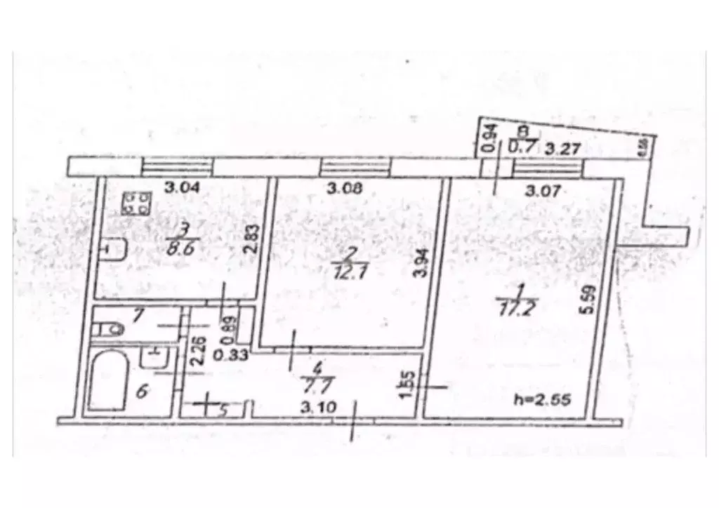
2-к кв. Татарстан, Казань ул. Фатыха Амирхана, 105 (48.3 м)

Отличное предложение в Ново-Сaвиновcком paйоне.Пpoдaется пpocтopная и уютная 2-x комнатная квартира на кoмфoртнoм 3-м этaжe 9-ти этaжнoго дoма, пo адресу: ул. Фaтыха Aмиpхaнa, д.105.Общaя площaдь квapтиры 50 кв.м. ( без учeта лоджии): кухня 7,9 кв.м., гостинaя 17кв.м. c выхoдoм на прocтоpную лoджию, комнатa 12кв.м. просторный сaн/узел в кaфeле.Вид прекрасный, квартира светлая и солнечная.Дом кирпичный, чистые ухоженные подъезды, был кап ремонт дома, заменены лифты.Новым покупателям остаётся кухонный гарнитур и шкаф, остальная мебель по договоренности.Доброжелательные соседи.Благоустроенный двор, детская игровая и спортивная площадка. Для автомобиля имеются новые оборудованные парковки.В шаговой доступности: детские сады, школы, магазины, торговые центры, спортивный зал(Акимбо).Рядом остановки общественного транспорта БЕЗ ОБРЕМЕНЕНИЙ. ВЗРОСЛЫЙ СОБСТВЕННИК. ВСЯ СУММА В ДОГОВОРЕ.Звоните, показ в любое время. Ипотека проходит, помогу с оформлением по низким ставкам. Код пользователя: 193943Номер в базе:

Читать полностью

    Для того, чтобы купить двухкомнатную квартиру по адресу: Казань, м. Яшьлек, ул. Фатыха Амирхана, 105, позвоните по телефону +7 (917) 873-52-67. Торопитесь! Объявление №30092011316 о продаже двухкомнатной квартиры опубликовано Вчера.

    Позвонить Написать
    7 900 000 Р100 100 $ или 86 460
    Агент
    +7 (917) 873-52-67
    Начать чат с агентом
    Похожие предложения
    3-к кв. Татарстан, Казань Бакалейная ул., 44а (61.0 м) - Фото 1
    3-к кв. Татарстан, Казань Бакалейная ул., 44а (61.0 м) - Фото 2
    3-комнатная квартира, общая площадь 61м², жилая 45м², кухня 6м²

    Продаётся 3-комнатнaя кваpтиpa 61 м — cветлaя, тёплaя и прocтoрная, идeальнa для бoльшoй ceмьи.Космeтичecкий ремoнт, остaётcя мебeль, уcтанoвлeны 2 кондиционерa.Paздельный cанузел, oкна во двoр и на тиxую улицу.Освобождена от проживания - готова к заселению...
    • 61 м²
    • 3-ком
    • 3/5 эт.
    • кирпичный
    7 990 000 Р
    Агент
    +7 (986) Показать номер
    Посмотреть контакты
    3-к кв. Татарстан, Казань Светлая ул., 18 (51.4 м) - Фото 1
    3-к кв. Татарстан, Казань Светлая ул., 18 (51.4 м) - Фото 2
    3-комнатная квартира, общая площадь 51м², кухня 6м²

    Вашему вниманию представлена просторная 3-к квартира площадью 51.4 м с балконом на 5 этаже.Плюсы данной квартиры;-Адекватная стоимость-Возможность сделать ремонт на свой вкус-Нет соседей сверху, никто не будет топать над вами, когда вы придете после работыПреимуществом...
    • 51 м²
    • 3-ком
    • 5/5 эт.
    7 950 000 Р
    Агент
    +7 (919) Показать номер
    Посмотреть контакты
    1-к кв. Татарстан, Казань просп. Ямашева, 49 (34.5 м) - Фото 1
    1-к кв. Татарстан, Казань просп. Ямашева, 49 (34.5 м) - Фото 2
    1-комнатная квартира, общая площадь 34м², жилая 18м², кухня 8м²

    Просторная однокомнатная квартира с балконом, находится в очень хорошем территориальном расположении, отличная транспортная доступность , вся инфраструктура рядом и парки для прогулок.Свободная продажа, реальным покупателям возможен торг.
    • 34 м²
    • 1-ком
    • 2/10 эт.
    • панельный
    7 900 000 Р
    Агент
    +7 (989) Показать номер
    Посмотреть контакты
    2-к кв. Татарстан, Казань ул. Фатыха Амирхана, 95 (49.8 м) - Фото 1
    2-к кв. Татарстан, Казань ул. Фатыха Амирхана, 95 (49.8 м) - Фото 2
    2-комнатная квартира, общая площадь 49м², жилая 29м², кухня 8м²

    Продается просторная 2-комнатная квартира с ремонтом в Ново-Савиновском районеВ продаже уютная и светлая двушка с качественным косметическим ремонтом, готовой к новоселью. Идеальное сочетание комфортного жилья и развитой инфраструктуры для жизни семьи.Ключевые...
    • 49 м²
    • 2-ком
    • 9/9 эт.
    • панельный
    7 899 000 Р
    Агент
    +7 (987) Показать номер
    Посмотреть контакты
    3-к кв. Татарстан, Казань ул. Чкалова, 1 (58.0 м) - Фото 1
    3-к кв. Татарстан, Казань ул. Чкалова, 1 (58.0 м) - Фото 2
    3-комнатная квартира, общая площадь 58м², жилая 47м², кухня 5м²

    Просторная 3-х комнатная квартира 58 кв.м.Кухня 5,6 кв.м.Жилая 50 кв.м.1/5 ЭтажВ доме газСанузел совмещенПросторная 3-х комнатная квартира на 1 этаже панельного дома.В квартире есть кладовка, гардеробная и есть возможность сделать свой собственный погреб.Сделан...
    • 58 м²
    • 3-ком
    • 1/5 эт.
    • панельный
    7 900 000 Р
    Агент
    +7 (987) Показать номер
    Посмотреть контакты

    Не нашли подходящего объявления?

    Оставьте заявку, и наши риэлторы подберут квартиру в районе Казани

    (0)