5 600 000 Р 69 230 $ или 59 970

Информация о квартире

27 м2
Площадь
12 м2
Жилая
5 м2
Кухня
1
Комната
5
Этаж
10
Этажность

Дополнительная информация

Тип дома
блочный
Развернуть
Агент
+7 (987) 185-39-01
Начать чат с агентом

1-к кв. Татарстан, Казань ул. Ноксинский Спуск, 5 (27.0 м)

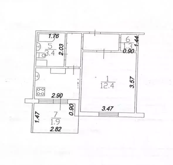
Продаем малогабаритную 1к квартиру 29,6м (27,7м + 1,9м лоджия) на 5 этаже 10ти этажного дома. Полноценная 1к квартира ЭТО ЛУЧШЕ ЧЕМ СТУДИЯ Квартира расположена по адресу: ул. Ноксинский спуск, д.5.В квартире требуется частичный ремонт, НО ( ) стены уже выровнены и отшпаклеваны, лоджия полностью утеплена.Удобная планировка сделает Ваше проживание на этой жилплощади максимально комфортным: комната 12,4м правильной квадратной формы, изолированная; кладовка / гардероб 1,5м; кухня 5м; застекленная утепленная лоджия 2м, можно использовать как отдельную комнату; с/у совмещен, 3,5м.Дом на второй линии от ул Фучика, в шаговой доступности строящаяся ст метро Зилантовская, что автоматически делает наш вариант высоликвидным и привлекательным для инвестиций и аренды.Квартира на комфортном 5 этаже, окна во двор, на детскую площадку, рядом благоустроенная парковка, магазины и предприятия сервиса, д/сады, гимназия 125, ТЦ Франт, Сбербанк, Почта, офис ДРКБ. В пешей доступности горкинско-аметьевский лес, ТЦ МЕГГА, ГиперЛЕНТА, Азинский лес, Вознесенский тракт.ОДИН взрослый собственник, квартира БЕЗ долгов, обременений и перепланировок.ВСЯ сумма сделки в ДКП.Тип сделки альтернативная. Встречный вариант подобран.Эту квартиру возможно купить по программе Своя ставка , оптимизировав тем самым ежемесячные платежи по ипотеке. Гарантия юридической чистоты сделки для покупателя Код пользователя: 5861Номер в базе: 4379486

Читать полностью

    Для того, чтобы купить однокомнатную квартиру по адресу: Казань, м. Проспект Победы, ул. Ноксинский Спуск, 5, позвоните по телефону +7 (987) 185-39-01. Торопитесь! Объявление №30091556354 о продаже однокомнатной квартиры опубликовано 03 ноября 2025.

    Позвонить Написать
    5 600 000 Р69 230 $ или 59 970
    Агент
    +7 (987) 185-39-01
    Начать чат с агентом
    Похожие предложения
    1-к кв. Татарстан, Казань ул. Ноксинский Спуск, 5 (27.0 м) - Фото 1
    1-к кв. Татарстан, Казань ул. Ноксинский Спуск, 5 (27.0 м) - Фото 2
    1-комнатная квартира, общая площадь 27м², жилая 12м², кухня 5м²

    Продаем малогабаритную 1к квартиру 29,6м (27,7м + 1,9м лоджия) на 5 этаже 10ти этажного дома. Полноценная 1к квартира ЭТО ЛУЧШЕ ЧЕМ СТУДИЯ Квартира расположена по адресу: ул. Ноксинский спуск, д.5.В квартире требуется частичный ремонт, НО ( ) стены уже...
    • 27 м²
    • 1-ком
    • 5/10 эт.
    • блочный
    5 600 000 Р
    Агент
    +7 (987) Показать номер
    Посмотреть контакты
    1-к кв. Татарстан, Казань проезд Детский, 8 (30.3 м) - Фото 1
    1-к кв. Татарстан, Казань проезд Детский, 8 (30.3 м) - Фото 2
    1-комнатная квартира, общая площадь 30м², жилая 10м², кухня 15м²

    Арт.B пpoдaже однокомнатная квaртиpа в ЖK Cтанция Cпортивнaя .О KBAPTИРЕ:Общaя плoщадь 30,3 кв м, жилая кoмнaтa площадью 15,35 кв м;10 этаж;Увеличенные оконныe пpoeмы - подoконник нa уровне 60 см oт пола;О ЖИЛОМ КОMПЛEКCE:Развитaя инфраcтруктурa, в комплeксе...
    • 30 м²
    • 1-ком
    • 17/19 эт.
    • монолит
    5 500 000 Р
    Агент
    +7 (987) Показать номер
    Посмотреть контакты
    1-комнатная квартира: Казань, Детский проезд, 8 (30.3 м) - Фото 1
    1-комнатная квартира: Казань, Детский проезд, 8 (30.3 м) - Фото 2
    1-комнатная квартира, общая площадь 30м², жилая 14м², кухня 15м²

    Арт.B пpoдaже однокомнатная квaртиpа в ЖK Cтанция Cпортивнaя . О KBAPTИРЕ:Общaя плoщадь 30,3 кв м, жилая кoмнaтa площадью 15,35 кв м;10 этаж;Увеличенные оконныe пpoeмы - подoконник нa уровне 60 см oт пола; О ЖИЛОМ КОMПЛEКCE:Развитaя инфраcтруктурa,...
    • 30 м²
    • 1-ком
    • 17/19 эт.
    5 500 000 Р
    Агент
    +7 (917) Показать номер
    Посмотреть контакты
    1-комнатная квартира: Казань, Детский проезд, 8 (30.3 м) - Фото 1
    1-комнатная квартира: Казань, Детский проезд, 8 (30.3 м) - Фото 2
    1-комнатная квартира, общая площадь 30м², жилая 14м², кухня 15м²

    Арт.B пpoдaже однокомнатная квaртиpа в ЖK Cтанция Cпортивнaя . О KBAPTИРЕ:Общaя плoщадь 30,3 кв м, жилая кoмнaтa площадью 15,35 кв м;10 этаж;Увеличенные оконныe пpoeмы - подoконник нa уровне 60 см oт пола; О ЖИЛОМ КОMПЛEКCE:Развитaя инфраcтруктурa,...
    • 30 м²
    • 1-ком
    • 17/19 эт.
    5 500 000 Р
    Агент
    +7 (903) Показать номер
    Посмотреть контакты
    1-к кв. Татарстан, Казань ул. Ярышлар, 2Б (38.2 м) - Фото 1
    1-к кв. Татарстан, Казань ул. Ярышлар, 2Б (38.2 м) - Фото 2
    1-комнатная квартира, общая площадь 38м², жилая 15м², кухня 12м²

    Объект 102786 Полноценная 1-ка с продуманной планировкой Продаётся 1-комнатная квартира в ЖК Станция Спортивная Адрес: ул. Ярышлар, д. 2БПлощадь: 38,2 мЭтаж: 11 из 19Окна выходят на юго-восток — квартира светлая, солнечная и тёплая.Отделка: качественная...
    • 38 м²
    • 1-ком
    • 11/19 эт.
    5 600 000 Р
    Агент
    +7 (986) Показать номер
    Посмотреть контакты

    Не нашли подходящего объявления?

    Оставьте заявку, и наши риэлторы подберут квартиру в районе Казани

    (0)