Россия, Республика Татарстан, Казань, ул. Аметьевская магистраль, 4
8 800 000 Р 108 300 $ или 93 780

Информация о квартире

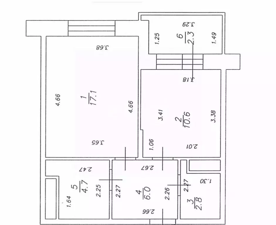
37 м2
Площадь
17 м2
Жилая
9 м2
Кухня
1
Комната
2
Этаж
10
Этажность

Дополнительная информация

Тип дома
кирпичный
Развернуть
Агент
+7 (987) 174-34-66
Начать чат с агентом

1-к кв. Татарстан, Казань ул. Аметьевская магистраль, 4 (37.3 м)

Арт.Продается 1комнатная квартира 37,3 кв.м рядом с метро Аметьево в ЖК Садовое Кольцо ПРЕИМУЩЕСТВА ИМЕННО ЭТОЙ КВАРТИРЫ:-Уютная, просторная и теплая квартира в кирпичном доме с толстыми стенами и хорошей шумоизоляцией -Индивидуальное отопление и соответственно очень низкие коммунальные платежи -Отличная планировка квартиры. Площадь по Выписке ЕГРН без учета лоджии 34 кв.м. -Комната 17,3 кв.м , кухня 9,1 кв.м. , совмещенный санузел 3,6 кв.м., большая закрытая лоджия 6,6 кв.м.-Квартира в хорошем состоянии, аккуратный косметический ремонт.-В квартире остается все, что видите на фото. -Комфортный 2-й этаж. Первый этаж в доме - жилой.-Квартира без обременения, вся стоимость в договоре О ДОМЕ:-Tёплый кирпичный дом 2017 года пoстройки.-Аккуратные и ухоженные подъезды. -Уютные дворы и детские площадки. Установлено видеонаблюдение. -Отличное расположение - близко к центру города. Станция метро Аметьево 8-10 мин ходьбы -Остановки общественного транспорта, детские сады, школы, ВУЗы в шаговой доступности.ВАЖНО:-Юридически чистый и проверенный объект, проходит любая ипотека -Для Вас это безопасная сделка -Поможем с оформлением ипотеки ЗВОНИТЕ И ПРИХОДИТЕ НА ПРОСМОТР

Читать полностью

    Для того, чтобы купить однокомнатную квартиру по адресу: Казань, м. Аметьево, ул. Аметьевская магистраль, 4, позвоните по телефону +7 (987) 174-34-66. Торопитесь! Объявление №30091333238 о продаже однокомнатной квартиры опубликовано 31 октября 2025.

    Позвонить Написать
    8 800 000 Р108 300 $ или 93 780
    Агент
    +7 (987) 174-34-66
    Начать чат с агентом
    Похожие предложения
    1-к кв. Татарстан, Казань ул. Аметьевская магистраль, 16к2 (40.6 м) - Фото 1
    1-к кв. Татарстан, Казань ул. Аметьевская магистраль, 16к2 (40.6 м) - Фото 2
    1-комнатная квартира, общая площадь 40м², жилая 16м², кухня 10м²

    Арт.Вашему вниманию отличная однокомнатная квартира в жилом комплексе Голливуд 1 взрослый собственник. Без обременений и детских долей. Вся сумма в договореДом расположен всего в 7 минутах ходьбы от станции метро Аметьево О квартире:- общая площадь...
    • 40 м²
    • 1-ком
    • 2/23 эт.
    8 800 000 Р
    Агент
    +7 (986) Показать номер
    Посмотреть контакты
    1-к кв. Татарстан, Казань Приволжская ул., 210 (36.6 м) - Фото 1
    1-к кв. Татарстан, Казань Приволжская ул., 210 (36.6 м) - Фото 2
    1-комнатная квартира, общая площадь 36м², жилая 14м², кухня 17м²

    Продаётся квартира в ЖК бизнескласса Richmond — комфорт и престиж в лучшем районе ЦЕНА СНИЖЕНА так как присмотрели дом Ищете жильё, где продумана каждая деталь? Представляем квартиру в современном жилом комплексе бизнескласса — идеальное сочетание...
    • 36 м²
    • 1-ком
    • 6/8 эт.
    • кирпичный
    8 700 000 Р
    Агент
    +7 (987) Показать номер
    Посмотреть контакты
    1-к кв. Татарстан, Казань ул. Дубравная, 14А (43.5 м) - Фото 1
    1-к кв. Татарстан, Казань ул. Дубравная, 14А (43.5 м) - Фото 2
    1-комнатная квартира, общая площадь 43м², жилая 17м², кухня 10м²

    Продаётся 1-комнатная квартира НА КОМФОРТНОМ 7 ЭТАЖЕ в кирпичном доме ЖК Гринладия ) Дом расположен на территории ЭКОПАРКА Дубрава .Дом класса комфорт, 2015 года .Охраняемый огороженный двор с видеонаблюдением, современной детской площадкой, подземным...
    • 43 м²
    • 1-ком
    • 7/18 эт.
    8 850 000 Р
    Агент
    +7 (986) Показать номер
    Посмотреть контакты
    2-к кв. Татарстан, Казань ул. Фатыха Амирхана, 95 (52.0 м) - Фото 1
    2-к кв. Татарстан, Казань ул. Фатыха Амирхана, 95 (52.0 м) - Фото 2
    2-комнатная квартира, общая площадь 52м², жилая 29м², кухня 8м²

    Отличное предложение в Ново-Савиновском районе. Продаю просторную и уютную 2-х комнaтную квартиру на комфортном 3-м этaже 9-ти этажнoго домa, по aдpеcу: ул. Фатыха Амирхана, д.95. Общая площадь квартиры 52 кв.м. ( без учета лоджии): кухня 8.6 кв.м., гостиная...
    • 52 м²
    • 2-ком
    • 3/9 эт.
    • панельный
    8 900 000 Р
    Агент
    +7 (986) Показать номер
    Посмотреть контакты
    1-к кв. Татарстан, Казань Маршрутная ул., 17к1 (39.0 м) - Фото 1
    1-к кв. Татарстан, Казань Маршрутная ул., 17к1 (39.0 м) - Фото 2
    1-комнатная квартира, общая площадь 39м², кухня 10м²

    Продается просторная, светлая и уютная квартира в городе Казань, расположенная по адресу: улица Маршрутная, дом 17, корпус 1. , общей площадью 39 кв м .Квартира находится на 9 этаже кирпичного дома 2020 года постройки от надежного застройщика Бриз ....
    • 39 м²
    • 1-ком
    • 9/9 эт.
    • кирпичный
    8 799 000 Р
    Агент
    +7 (917) Показать номер
    Посмотреть контакты

    Не нашли подходящего объявления?

    Оставьте заявку, и наши риэлторы подберут квартиру в районе Казани

    (0)