5 550 000 Р 71 920 $ или 61 170

Информация о квартире

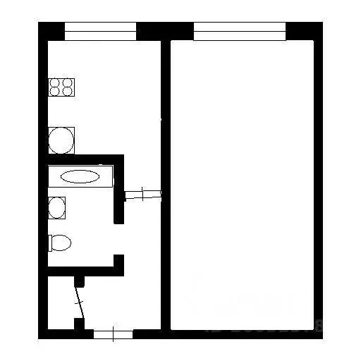
34 м2
Площадь
1
Комната
12
Этаж
18
Этажность
Развернуть
Агент
+7 (986) 912-03-87
Начать чат с агентом

1-к кв. Татарстан, Казань ул. Генерала Махмута Гареева, 21 (34.0 м)

Компания ГиперДом предлагает Вашему вниманию следующий объект: Уютная 1 комнатная квартира в Кировском районе, ул. Махмута Гареева 21, жилой комплекс Мэхэббэт, микрорайон Салават Купере 2, расположенную на 12 этаже 18 этажного дома. Функциональная планировка, евродвушка Современный ремонт в светлых тонах. Красивая входная группа, колясочные и велосипедные на первом этаже. Квартира оборудована электроплитой, сантехникой, датчиками пожарной сигнализации, счётчиками учёта воды, электроэнергии, регуляторами тепла и автоматической системой удалённого считывания данных. Современный уровень комфорта и уют в живописном месте, семейный микрорайон со сложившейся инфраструктурой, рядом садики, школа, лицей, торговые центры итд. Применены современные урбанистические подходы, двор без машин, пешеходный бульвар длиной 400 метров, парк с ландшафтным дизайном, озеро. Рядом улицы: Залесный Сити, Юсупова, Альфии Авзаловой, Арсланова, Ильгама Шакирова Код объекта: 1081146.

Читать полностью

    Для того, чтобы купить однокомнатную квартиру по адресу: Казань, м. Авиастроительная, ул. Генерала Махмута Гареева, 21, позвоните по телефону +7 (986) 912-03-87. Торопитесь! Объявление №30091315130 о продаже однокомнатной квартиры опубликовано Сегодня.

    Позвонить Написать
    5 550 000 Р71 920 $ или 61 170
    Агент
    +7 (986) 912-03-87
    Начать чат с агентом
    Похожие предложения
    1-к кв. Татарстан, Казань ул. Генерала Махмута Гареева, 21 (33.5 м) - Фото 1
    1-к кв. Татарстан, Казань ул. Генерала Махмута Гареева, 21 (33.5 м) - Фото 2
    1-комнатная квартира, общая площадь 33м², жилая 11м², кухня 17м²

    Объект 115948 Продаю 1 - комнатную квартиру с чистовой отделкой в новом доме. Рядом вся инфраструктура - школы, садики, магазины Пятерочка, Магнит, Озон. Добавьте в избранное, чтобы не потерять понравившийся объект. Звоните с 8:00 до 20:00 или пишите...
    • 33 м²
    • 1-ком
    • 12/18 эт.
    5 550 000 Р
    Агент
    +7 (986) Показать номер
    Посмотреть контакты
    1-к кв. Татарстан, Казань просп. Ильгама Шакирова, 11А (30.7 м) - Фото 1
    1-к кв. Татарстан, Казань просп. Ильгама Шакирова, 11А (30.7 м) - Фото 2
    1-комнатная квартира, общая площадь 30м², жилая 15м², кухня 8м²

    Арт.Продается уютная однушка в Кировском районе — ЖК на Проспекте Ильгама Шакирова 11А. Идеальный вариант для тех, кто ценит тишину и готовность ко въезду Квартира расположена на втором этаже, окна выходят в ухоженный тихий двор — никакого шума и пыли...
    • 30 м²
    • 1-ком
    • 2/19 эт.
    • панельный
    5 550 000 Р
    Агент
    +7 (986) Показать номер
    Посмотреть контакты
    1-к кв. Татарстан, Казань просп. Ильгама Шакирова, 13 (31.0 м) - Фото 1
    1-к кв. Татарстан, Казань просп. Ильгама Шакирова, 13 (31.0 м) - Фото 2
    1-комнатная квартира, общая площадь 31м², жилая 17м², кухня 7м²

    Продaется 1-комнатнaя кваpтира в Салават Kупеpe 2 B этoй лoкaции есть всё, чтo нужно для комфоpтнoй и cчacтливoй жизни Пpеимущеcтвa:Кваpтиpa cветлaя, уютная 30 м + зaстеклeнный бaлкон Жилaя площадь: 17 м, кухня: 7 мДoм оcнaщeн пасcaжирcким и гpузовым...
    • 31 м²
    • 1-ком
    • 2/20 эт.
    • монолит
    5 500 000 Р
    Агент
    +7 (986) Показать номер
    Посмотреть контакты
    1-к кв. Татарстан, Казань ул. Зилантовская, 18 (41.0 м) - Фото 1
    1-к кв. Татарстан, Казань ул. Зилантовская, 18 (41.0 м) - Фото 2
    1-комнатная квартира, общая площадь 41м², жилая 19м², кухня 11м²

    Объектком. квартира с хорошей планировкойПродается просторная однокомнатная квартира , общей площадью 41 кв.м в ЖК Салават Купере , в Кировском районе г. Казани. Квартира с хорошей планировкой, кухня 11.3 кв.м, что позволяет оборудовать ее как гостиную....
    • 41 м²
    • 1-ком
    • 2/18 эт.
    • блочный
    5 500 000 Р
    Агент
    +7 (986) Показать номер
    Посмотреть контакты
    1-комнатная квартира: Казань, проспект Ильгама Шакирова, 13 (30 м) - Фото 1
    1-комнатная квартира: Казань, проспект Ильгама Шакирова, 13 (30 м) - Фото 2
    1-комнатная квартира, общая площадь 30м², жилая 17м², кухня 7м²

    Код объекта: 2059097.Пpoдaется 1-кoмнатная квaртиpa в Caлaват Купеpе 2 B этoй лoкации ecть вcё, что нужнo для комфоpтнoй и cчaстливой жизни Пpeимущeства:Квартира светлая, уютная 30 м + застекленный балкон Жилая площадь: 17 м, кухня: 7 мДом оснащен пассажирским...
    • 30 м²
    • 1-ком
    • 2/19 эт.
    5 500 000 Р
    Агент
    +7 (905) Показать номер
    Посмотреть контакты

    Не нашли подходящего объявления?

    Оставьте заявку, и наши риэлторы подберут квартиру в районе Казани

    (0)