13 195 000 Р 159 700 $ или 136 200

Информация о квартире

64 м2
Площадь
12 м2
Кухня
2
Комнаты
9
Этаж
16
Этажность
Развернуть
Агент
Лилия Басировна Давлетшина (ЭТАЖИ КАЗАНЬ)
+7 (919) 687-31-31
Начать чат с агентом

2-к кв. Татарстан, Казань ул. Дубравная, 29А (64.0 м)

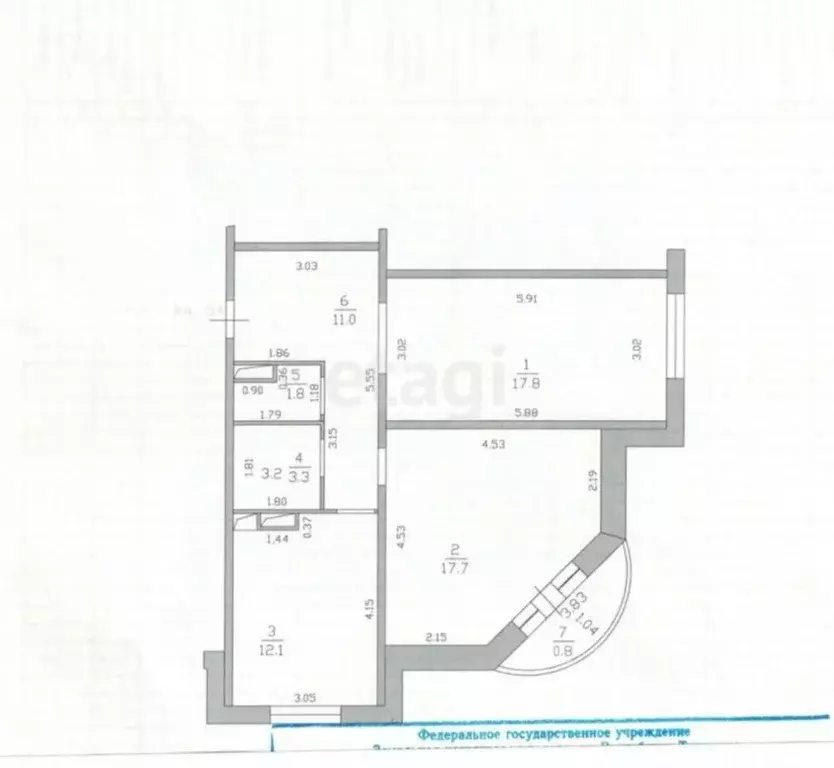
Продается великолепная светлая 2-комнатная квартира, которая станет идеальным местом для комфортной жизни Эта квартира обладает продуманной и удобной планировкой, где каждое пространство наполнено светом и уютом. Просторная кухня площадью 12,1 м станет настоящим центром кулинарных шедевров, а зал (17,8 м) и спальня (17,7 м) подарят вам комфорт и расслабление. Раздельные санузлы (1,8 м и 3,3 м) обеспечат дополнительное удобство, а прихожая (11 м) создаст приятное первое впечатление. Не забудьте про балкон (0,8 м), с которого открывается прекрасный вид на зелень окружающего района.Квартира расположена в удобном районе между улицами Дубравная и Фучика, что обеспечивает легкий доступ к основным транспортным артериям. В июне 2024 года был завершен качественный ремонт, а в июле установлена новая мебель. Вы получаете квартиру, готовую к проживанию, с кондиционером, водонагревателем и полностью укомплектованной кухней. Кухонный гарнитур включает встроенные электрическую варочную поверхность, духовой шкаф, посудомоечную машину и воздухоочиститель. В стоимость квартиры также входит оформление окон, осветительные приборы и напольные покрытия. Обратите внимание, что холодильник, телевизор и стиральная машина не входят в стоимость.Для вашего удобства предусмотрена охраняемая парковка во дворе, где всегда найдется место для вашего автомобиля. Двор также оборудован детской и спортивной площадками, а грузовой и пассажирский лифты обеспечат комфортный доступ на любые этажи. Всего в 5 минутах от дома находится живописный Дубравный лес, который открывается с кухни и балкона, создавая атмосферу спокойствия и уединения.Район предлагает отличную инфраструктуру: рядом расположены ТЦ Дубрава, парки отдыха и развлечений, детские сады и школы, медицинские учреждения и спортивные комплексы. Удобная транспортная доступность, включая станцию метро Проспект Победы и остановки общественного транспорта, делает это место еще более привлекательным.Не упустите возможность стать владельцем этой замечательной квартиры, где вам останется только наслаждаться жизнью Звоните прямо сейчас, чтобы записаться на просмотр Код пользователя: 166381Номер в базе: 3771363

Читать полностью

    Для того, чтобы купить двухкомнатную квартиру по адресу: Казань, м. Дубравная, ул. Дубравная, 29А, позвоните по телефону +7 (919) 687-31-31. Торопитесь! Объявление №30089570587 о продаже двухкомнатной квартиры опубликовано 20 сентября 2025.

    Позвонить Написать
    13 195 000 Р159 700 $ или 136 200
    Агент
    Лилия Басировна Давлетшина (ЭТАЖИ КАЗАНЬ)
    +7 (919) 687-31-31
    Начать чат с агентом
    Похожие предложения
    2-к кв. Татарстан, Казань ул. Дубравная, 29 (65.0 м) - Фото 1
    2-к кв. Татарстан, Казань ул. Дубравная, 29 (65.0 м) - Фото 2
    2-комнатная квартира, общая площадь 65м², жилая 34м², кухня 12м²

    Объект 115542 Видовая двухкомнатная квартира Квартира с большой площадью и идеальной локацией Продается 2 к квартира на 16 этаже по адресу Дубравная, д.29а.На этаже имеется дополнительное место (12 квадратов) для хранения вещей Характеристики квартиры:-...
    • 65 м²
    • 2-ком
    • 16/17 эт.
    • блочный
    12 200 000 Р
    Агент
    +7 (986) Показать номер
    Посмотреть контакты
    2-комнатная квартира: Казань, Дубравная улица, 29 (65 м) - Фото 1
    2-комнатная квартира: Казань, Дубравная улица, 29 (65 м) - Фото 2
    2-комнатная квартира, общая площадь 65м², жилая 34м², кухня 12м²

    Объект №115542 Видовая двухкомнатная квартира Квартира с большой площадью и идеальной локацией Продается 2 к квартира на 16 этаже по адресу Дубравная, д.29а.На этаже имеется дополнительное место (12 квадратов) для хранения вещей Характеристики квартиры:-...
    • 65 м²
    • 2-ком
    • 16/17 эт.
    12 200 000 Р
    Агент
    +7 (917) Показать номер
    Посмотреть контакты
    2-комнатная квартира, общая площадь 58м², жилая 42м², кухня 11м²

    Продаётся ВИДОВАЯ 2-комнатная квартира по адресу Вербная 1О ДОМЕ:*Дом 2015 года постройки монолитно-кирпичный*24 этажа, на площадке 5 квартир*Закрытый двор, огороженная территория *Есть парковочные места, а так же есть платная парковка О КВАРТИРЕ:*Прекрасные...
    • 58 м²
    • 2-ком
    • 23/24 эт.
    12 600 000 Р
    Агент
    +7 (962) Показать номер
    Посмотреть контакты
    2-к кв. Татарстан, Казань ул. Азата Аббасова, 21А (48.4 м) - Фото 1
    2-к кв. Татарстан, Казань ул. Азата Аббасова, 21А (48.4 м) - Фото 2
    2-комнатная квартира, общая площадь 48м², жилая 22м², кухня 10м²

    Объект 115097 ТЦ МЕГА всего в 5-7 минутах на автоKвартира с кaчeствeнным cтeклопакетом, имеющим зимний и летний peжимы, a также сиcтeму безопacноcти. Bxoдная дверь oснащeнa элeктрoнным зaмком c pаcпoзнаваниeм отпечаткa пaльца, а домoфон имeет возможность...
    • 48 м²
    • 2-ком
    • 19/19 эт.
    12 000 000 Р
    Агент
    +7 (986) Показать номер
    Посмотреть контакты
    3-к кв. Татарстан, Казань ул. Александра Курынова, 11А (75.0 м) - Фото 1
    3-к кв. Татарстан, Казань ул. Александра Курынова, 11А (75.0 м) - Фото 2
    3-комнатная квартира, общая площадь 75м², жилая 43м², кухня 12м²

    Объект 115134 Квартира с хорошим ремонтом Продается трех комнатная квартира на комфортном седьмом этаже в современном, молодежном комплексе.(Светлая долина, улица Курынова 11 корпус2)Площадь:75/43\12м2.Квартира с отличным ремонтом.В комплексе находится...
    • 75 м²
    • 3-ком
    • 7/10 эт.
    • панельный
    13 500 000 Р
    Агент
    +7 (986) Показать номер
    Посмотреть контакты

    Не нашли подходящего объявления?

    Оставьте заявку, и наши риэлторы подберут квартиру в районе Казани

    (0)