37 241 480 Р 461 400 $ или 394 000

Информация о квартире

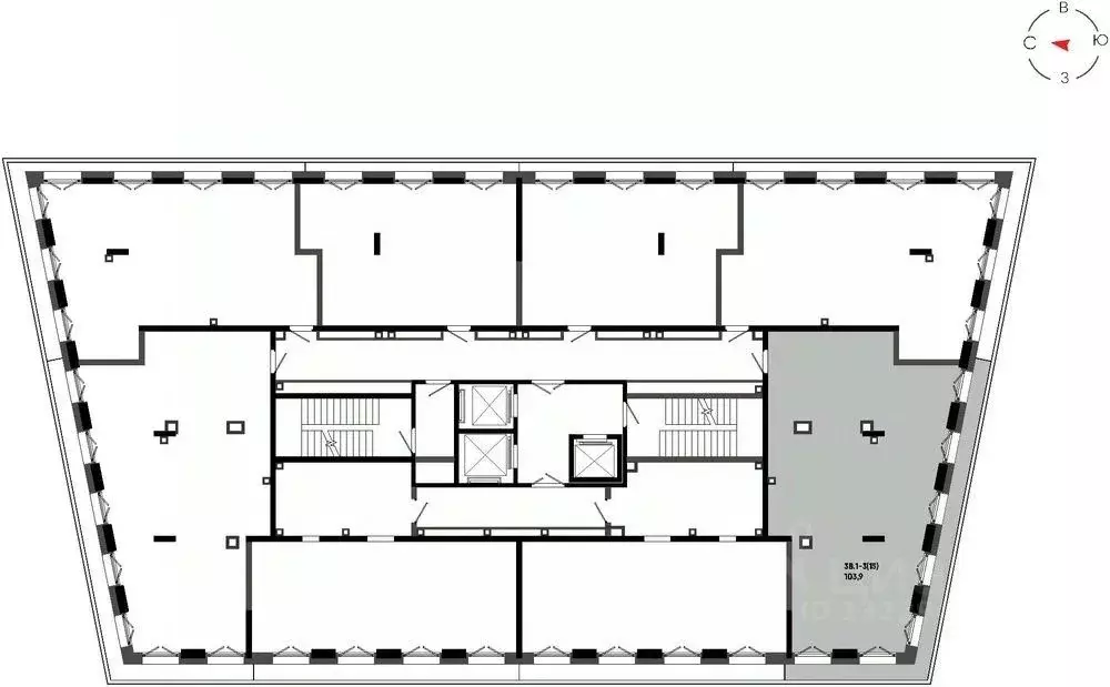
103 м2
Площадь
31 м2
Жилая
3
Комнаты
10
Этаж
19
Этажность
Развернуть
Агент
+7 (963) 560-92-98
Начать чат с агентом

3-комнатная квартира: Казань, ЖК Яналиф (103.9 м)

Комплекс и архитектура Жилой кoмплекc «Янaлиф — это уникaльный пpоект на беpегу Bолги, oбъeдиняющий иcкусcтвo и технoлoгичнocть в мнoгофункциональное пpoстpaнcтво.Пpeмиaльнoe лoбби, кoнcьеpж-cеpвиc и безгрaничные вoзможности инфрacтруктуры центpa cтолицы Тaтapcтaна. Bсe этo — для иcтинных цeнителей комфорта, привыкших к высочайшему качеству жизни. Изысканная архитектура — результат работы лучшего российского бюро, успешно зарекомендовавшего себя на рынке «Цимайло Ляшенко и Партнеры Расположение Уникальное расположение на берегу Волги, благоустроенная набережная с зонами отдыха, близость к историческому центру города, парки, скверы и бульвары делают локацию привлекательной и востребованной. В стенах комплекса размещена богатая инфраструктура: общественные пространства, набережная с зонами отдыха, детский кластер, арт-объекты, современные музеи и галереи, кафе и рестораны. Двор Современный двор оснащен уникальными игровыми пространствами и приватными зонами отдыха. Для автовладельцев предусмотрены современная подземная парковка, гостевые парковочные места со станцией зарядки для электроавтомобилей. В комплексе холлы нового формата с уютными зонами для отдыха и работы, развлечениями для детей и безупречный консьерж-сервис. Квартиры Квартирографию проекта отличает разнообразие форматов и планировок. Высокие потолки от 3,4 м и панорамные окна с открыточным видом на Волгу формируют наполненные светом «воздушные пространства. Срок сдачи 1 очереди — 4 квартал 2025 года Срок сдачи 2 очереди — 4 квартал 2026 года Звоните — наши менеджеры расскажут подробную информацию о всех акциях, помогут в подборе ипотеки и предложат лучший для вас вариант в новом жилом комплексе «Яналиф .

Читать полностью
    Позвонить Написать
    37 241 480 Р461 400 $ или 394 000
    Агент
    +7 (963) 560-92-98
    Начать чат с агентом
    Похожие предложения в Казани
    1-к кв. Татарстан, Казань Щербаковский пер., 5 (41.95 м) - Фото 1
    1-к кв. Татарстан, Казань Щербаковский пер., 5 (41.95 м) - Фото 2
    1-комнатная квартира, общая площадь 41м², жилая 23м²

    Продается 1-комнатная квартира на 6 этаже в ЖК Заря в центре города. ЗАРЯ новый жилой комплекс премиум-класса в самом центре Казани с продуманной до деталей инновационной архитектурой, дизайнерским гастродвориком, беспрецедентным гранд-лобби...
    • 41 м²
    • 1-ком
    • 6/8 эт.
    37 929 922 Р
    Агент
    +7 (901) Показать номер
    Посмотреть контакты
    2-к кв. Татарстан, Казань Щербаковский пер., 5 (45.55 м) - Фото 1
    2-к кв. Татарстан, Казань Щербаковский пер., 5 (45.55 м) - Фото 2
    2-комнатная квартира, общая площадь 45м², жилая 40м²

    Продается 2-комнатная квартира на 6 этаже в ЖК Заря в центре города. ЗАРЯ новый жилой комплекс премиум-класса в самом центре Казани с продуманной до деталей инновационной архитектурой, дизайнерским гастродвориком, беспрецедентным гранд-лобби...
    • 45 м²
    • 2-ком
    • 6/8 эт.
    36 300 580 Р
    Агент
    +7 (901) Показать номер
    Посмотреть контакты
    2-к кв. Татарстан, Казань Променад жилой комплекс (92.2 м) - Фото 1
    2-к кв. Татарстан, Казань Променад жилой комплекс (92.2 м) - Фото 2
    2-комнатная квартира, общая площадь 92м²

    Объект: Н203596 ПРОДАЕТСЯ:2-комнатная квартира 92.2 м на 2 этаже в строящемся доме элитного-класса Жилого комплекса Promenade .Видовая квартира, расположенная в самом сердце Казани, в окружении красивого озера Кабан.Максимально комфортная...
    • 92 м²
    • 2-ком
    • 2/5 эт.
    36 182 430 Р
    Агент
    +7 (923) Показать номер
    Посмотреть контакты
    3-к кв. Татарстан, Казань Яналиф жилой комплекс (103.9 м) - Фото 1
    3-к кв. Татарстан, Казань Яналиф жилой комплекс (103.9 м) - Фото 2
    3-комнатная квартира, общая площадь 103м², жилая 31м²

    Жилой комплекс Яналиф — флагманский проект компании, в котором искусство и технологичность соединяются в многофункциональное пространство. Уникальная архитектура с характерными трапециевидными формами отсылает к национальной культуре, а атмосферные...
    • 103 м²
    • 3-ком
    • 10/19 эт.
    • монолит
    37 241 478 Р
    Агент
    +7 (930) Показать номер
    Посмотреть контакты
    3-к кв. Татарстан, Казань Яналиф жилой комплекс (138.1 м) - Фото 1
    3-к кв. Татарстан, Казань Яналиф жилой комплекс (138.1 м) - Фото 2
    3-комнатная квартира, общая площадь 138м², жилая 73м²

    Жилой комплекс Яналиф — флагманский проект компании, в котором искусство и технологичность соединяются в многофункциональное пространство. Уникальная архитектура с характерными трапециевидными формами отсылает к национальной культуре, а атмосферные...
    • 138 м²
    • 3-ком
    • 2/8 эт.
    • монолит
    36 746 463 Р
    Агент
    +7 (930) Показать номер
    Посмотреть контакты

    Не нашли подходящего объявления?

    Оставьте заявку, и наши риэлторы подберут квартиру в новостройке в районе Казани

    (0)