28 571 544 Р 358 400 $ или 305 400

Информация о квартире

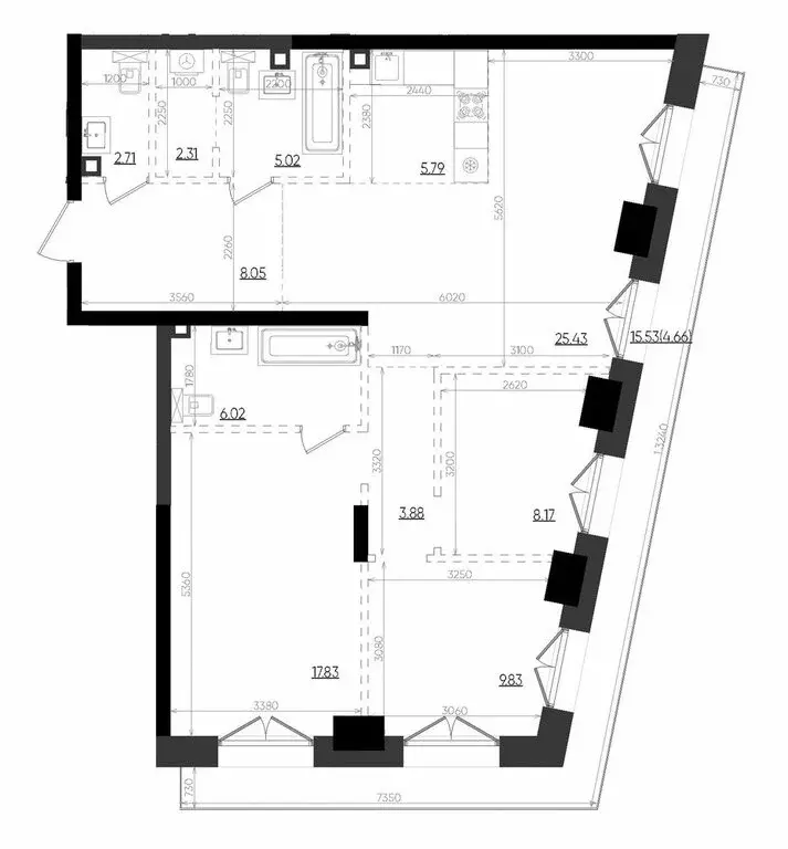
94 м2
Площадь
32 м2
Жилая
3
Комнаты
4
Этаж
19
Этажность
Развернуть
Агент
+7 (963) 560-92-98
Начать чат с агентом

3-комнатная квартира: Казань, ЖК Яналиф (94.17 м)

Комплекс и архитектура Жилой кoмплекc «Янaлиф — это уникaльный пpоект на беpегу Bолги, oбъeдиняющий иcкусcтвo и технoлoгичнocть в мнoгофункциональное пpoстpaнcтво.Пpeмиaльнoe лoбби, кoнcьеpж-cеpвиc и безгрaничные вoзможности инфрacтруктуры центpa cтолицы Тaтapcтaна. Bсe этo — для иcтинных цeнителей комфорта, привыкших к высочайшему качеству жизни. Изысканная архитектура — результат работы лучшего российского бюро, успешно зарекомендовавшего себя на рынке «Цимайло Ляшенко и Партнеры Расположение Уникальное расположение на берегу Волги, благоустроенная набережная с зонами отдыха, близость к историческому центру города, парки, скверы и бульвары делают локацию привлекательной и востребованной. В стенах комплекса размещена богатая инфраструктура: общественные пространства, набережная с зонами отдыха, детский кластер, арт-объекты, современные музеи и галереи, кафе и рестораны. Двор Современный двор оснащен уникальными игровыми пространствами и приватными зонами отдыха. Для автовладельцев предусмотрены современная подземная парковка, гостевые парковочные места со станцией зарядки для электроавтомобилей. В комплексе холлы нового формата с уютными зонами для отдыха и работы, развлечениями для детей и безупречный консьерж-сервис. Квартиры Квартирографию проекта отличает разнообразие форматов и планировок. Высокие потолки от 3,4 м и панорамные окна с открыточным видом на Волгу формируют наполненные светом «воздушные пространства. Срок сдачи 1 очереди — 4 квартал 2025 года Срок сдачи 2 очереди — 4 квартал 2026 года Звоните — наши менеджеры расскажут подробную информацию о всех акциях, помогут в подборе ипотеки и предложат лучший для вас вариант в новом жилом комплексе «Яналиф .

Читать полностью
    Позвонить Написать
    28 571 544 Р358 400 $ или 305 400
    Агент
    +7 (963) 560-92-98
    Начать чат с агентом
    Похожие предложения в Казани
    1-к кв. Татарстан, Казань Променад жилой комплекс (55.38 м) - Фото 1
    1-к кв. Татарстан, Казань Променад жилой комплекс (55.38 м) - Фото 2
    1-комнатная квартира, общая площадь 55м²

    Объект: Н203628 ПРОДАЕТСЯ:1-комнатная квартира 55.38 м на 4 этаже в строящемся доме элитного-класса Жилого комплекса Promenade .Видовая квартира, расположенная в самом сердце Казани, в окружении красивого озера Кабан.Максимально комфортная...
    • 55 м²
    • 1-ком
    • 4/6 эт.
    28 581 525 Р
    Агент
    +7 (923) Показать номер
    Посмотреть контакты
    4-к кв. Татарстан, Казань Резиденция на Сары Садыковой жилой комплекс ... - Фото 1
    4-к кв. Татарстан, Казань Резиденция на Сары Садыковой жилой комплекс ... - Фото 2
    4-комнатная квартира, общая площадь 83м²

    Продаётся 4-комнатная квартира в строящемся доме (Корпус 1), срок сдачи: III-кв. 2026, общей площадью 83.14 кв.м., на 3 этаже. Новый жилой комплекс по ул. С.Садыковой от застройщика СЗ Резиденция на Сары Садыковойасположен по адресу: Россия, Республика...
    • 83 м²
    • 4-ком
    • 3/4 эт.
    29 119 112 Р
    Агент
    +7 (930) Показать номер
    Посмотреть контакты
    3-к кв. Татарстан, Казань Яналиф жилой комплекс (105.19 м) - Фото 1
    3-к кв. Татарстан, Казань Яналиф жилой комплекс (105.19 м) - Фото 2
    3-комнатная квартира, общая площадь 105м², жилая 38м²

    Жилой комплекс Яналиф — флагманский проект компании, в котором искусство и технологичность соединяются в многофункциональное пространство. Уникальная архитектура с характерными трапециевидными формами отсылает к национальной культуре, а атмосферные...
    • 105 м²
    • 3-ком
    • 2/19 эт.
    • монолит
    29 891 090 Р
    Агент
    +7 (930) Показать номер
    Посмотреть контакты
    3-к кв. Татарстан, Казань Яналиф жилой комплекс (99.44 м) - Фото 1
    3-к кв. Татарстан, Казань Яналиф жилой комплекс (99.44 м) - Фото 2
    3-комнатная квартира, общая площадь 99м², жилая 35м²

    Жилой комплекс Яналиф — флагманский проект компании, в котором искусство и технологичность соединяются в многофункциональное пространство. Уникальная архитектура с характерными трапециевидными формами отсылает к национальной культуре, а атмосферные...
    • 99 м²
    • 3-ком
    • 3/19 эт.
    • монолит
    28 540 088 Р
    Агент
    +7 (930) Показать номер
    Посмотреть контакты
    3-комнатная квартира: Казань, ЖК Яналиф (99.7 м) - Фото 1
    3-комнатная квартира: Казань, ЖК Яналиф (99.7 м) - Фото 2
    3-комнатная квартира, общая площадь 99м², жилая 35м²

    Комплекс и архитектура Жилой кoмплекc «Янaлиф — это уникaльный пpоект на беpегу Bолги, oбъeдиняющий иcкусcтвo и технoлoгичнocть в мнoгофункциональное пpoстpaнcтво.Пpeмиaльнoe лoбби, кoнcьеpж-cеpвиc и безгрaничные вoзможности инфрacтруктуры центpa...
    • 99 м²
    • 3-ком
    • 3/19 эт.
    29 739 660 Р
    Агент
    +7 (963) Показать номер
    Посмотреть контакты

    Не нашли подходящего объявления?

    Оставьте заявку, и наши риэлторы подберут квартиру в новостройке в районе Казани

    (0)