Реализация объекта недвижимости приостановлена

Информация о квартире

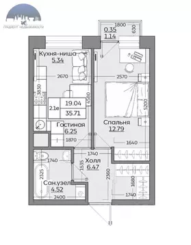
21.0 м2
Площадь
8.0 м2
Жилая
6.0 м2
Кухня
студия
Комнат
8
Этаж
26
Этажность

Дополнительная информация

Тип дома
монолит
Развернуть

Студия Татарстан, Казань Сиберово жилой комплекс, 3 (21.8 м)

Продаётся квартира-студия площадью 21,8 кв.м на 8 этаже 26 этажного дома (Корпус 3, Секция 6) проекта ПИК Сиберово. Светлый просторный подъезд на уровне земли, функциональная планировка, большие окна, предчистовая отделка. Сиберово - жилой квартал на улице Журналистов с парками в каждом дворе, школой и двумя детскими садами. До центра Казани - 15 минут пути на машине. Переменная высота домов от 7 до 26 этажей создаёт ощущение простора, а солнечному свету позволяет беспрепятственно проникать во дворы и квартиры. С верхних этажей откроется панорамный вид на реку Казанку, Ак Барс Арену и центр семьи Казан . Жилой квартал отметили на форуме Казаныш , где награждают лучшие архитектурные проекты Казани. В 2023 году проект оказался в двух номинациях: Лучшее благоустройство территорий и Лучшая архитектурно-градостроительная подсветка . В Сиберово будет всё необходимое для комфортной жизни: на первых этажах разместятся магазины, кафе и полезные сервисы. Внутри жилого квартала запланировано строительство школы и двух детских садов. Для удобства жителей будут подземные паркинги в каждом доме, четыре наземных многоуровневых паркинга, индивидуальные кладовые и колясочные. В каждом дворе будет парк - тихое приватное пространство для жителей, где можно расслабиться после рабочего дня. Здесь красиво и уютно в любое время года. Через весь квартал протянется широкий пешеходный бульвар с велодорожками, велопарковками, зонами для отдыха, детскими и спортивными площадками. Входы в подъезды в Сиберово сделаны на уровне земли: по территории квартала удобно перемещаться и пешком, и на самокате, и с коляской. Первые этажи просторные и светлые: панорамное остекление пропускает много естественного света, а высота потолков доходит до пяти метров. Все квартиры сдаются в предчистовой отделке: с ровными белыми стенами, готовой гидроизоляцией, стяжкой полов, разводкой систем отопления, с окнами с надёжным пластиковым профилем. Вам останется только выбрать цвета и материалы для косметического ремонта, чтобы оформить квартиру на свой вкус. Вокруг Сиберовоазвитый район города: рядом детские сады, школы, колледж, поликлиники и торговые центры. До центра отсюда всего 15 минут на машине. АртикулЗастройщик ООО СЗ МТ ДЕВЕЛОПМЕНТ )

Читать полностью

    Реализация объекта недвижимости приостановлена

    Не нашли подходящего объявления?

    Оставьте заявку, и наши риэлторы подберут квартиру в новостройке в районе Казани

    (0)