Реализация объекта недвижимости приостановлена

Информация о квартире

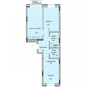
48.0 м2
Площадь
27.0 м2
Жилая
8.0 м2
Кухня
2
Комнаты
10
Этаж
22
Этажность

Дополнительная информация

Тип дома
монолит
Развернуть

2-к кв. Татарстан, Казань Мой Ритм жилой комплекс (48.02 м)

Продается 2-комнатная квартира 430 площадью 48,02 кв.м на 10 этаже 22-ти этажного дома проекта Мой Ритм от Ак Барс Дом . Купить квартиру можно в ипотеку со ставкой от 4,5 . Мой Ритм — современный жилой комплекс комфорт-класса в Советском районе Казани, на пересечении пр. Победы и ул. Сахарова. Удобная транспортная развязка, развитая сеть общественного транспорта, скоро откроется станция метро Тулпар . На территории ЖК Многопрофильный лицей и 2 детских сада, поликлиника. Рядом ТРЦ МЕГА и Горкинско-Ометьевский парк. Мой Ритм призер Всероссийского конкурса от Единого ресурса застройщиков РФ ТОП ЖК . Авторское благоустройство: детские эко-площадки, спортивные зоны с резиновым покрытием, пешеходный бульвар и озеленение. Скоро появится большой игровой парк Озеро дракона с зонами активности и отдыха. Для безопасности дворы закрыты от машин и посторонних, а по периметру установлено видеонаблюдение. Паркинги с заездом по считыванию номеров, система IP-домофонии с функцией Face-ID, возможности умного дома для вашей будущей квартиры. Комфортная 2-комнатная квартира с удачной планировкой. Увеличенная комната в 18,3 кв. м., где можно разместить гостиную или комнату для двоих детей. Отдельная кухня, из которой открывается выход на лоджию. Для хранения вещей в коридоре есть место под шкаф-купе, а удачные пропорции жилых комнат и высокие потолки 2,7 м. позволят выгодно использовать пространство при расстановке мебели.Уход за домом возьмёт на себя УК Всегда рядом . Благодаря грамотно выстроенной системе, обслуживание квартиры через управляющую компанию Всегда рядом будет обходиться дешевле по сравнению с другими. Опытные специалисты помогут вам обеспечить комфортное проживание. Дом там, где мы.

Читать полностью

    Реализация объекта недвижимости приостановлена

    Не нашли подходящего объявления?

    Оставьте заявку, и наши риэлторы подберут квартиру в новостройке в районе Казани

    (0)