Россия, Республика Татарстан, Казань, Счастье в Казани жилой комплекс

Реализация объекта недвижимости приостановлена

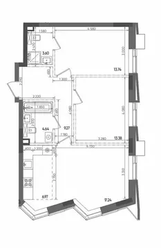
Информация о квартире

45.0 м2
Площадь
1
Комната
16
Этаж
19
Этажность
Развернуть

1-к кв. Татарстан, Казань Счастье в Казани жилой комплекс (45.9 м)

Продаётся 1-комнатная квартира в строящемся доме (Дом 6005), срок сдачи: I-кв. 2028, общей площадью 45.9 кв.м., на 16 этаже. Новый жилой комплекс Счастье от застройщика Группа Эталонасположен по адресу город Казань, улица Гаврилова.

Читать полностью

    Реализация объекта недвижимости приостановлена

    Не нашли подходящего объявления?

    Оставьте заявку, и наши риэлторы подберут квартиру в новостройке в районе Казани

    (0)