Реализация объекта недвижимости приостановлена

Информация о квартире

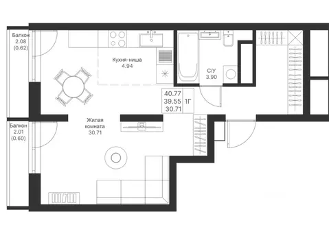
40.0 м2
Площадь
1
Комната
19
Этаж
23
Этажность
Развернуть

1-к кв. Татарстан, Казань Седьмое Небо жилрайон, Унай жилой комплекс ...

Продаётся 1-комнатная квартира в строящемся доме (Корпус 1), срок сдачи: IV-кв. 2028, общей площадью 40.5 кв.м., на 19 этаже. Новый жилой комплекс Унай от застройщика Комосстройасположен по адресу: г. Казань, Улица Аделя Кутуя

Читать полностью

    Реализация объекта недвижимости приостановлена

    Не нашли подходящего объявления?

    Оставьте заявку, и наши риэлторы подберут квартиру в новостройке в районе Казани

    (0)