12 966 898 Р 164 100 $ или 143 200

Информация о квартире

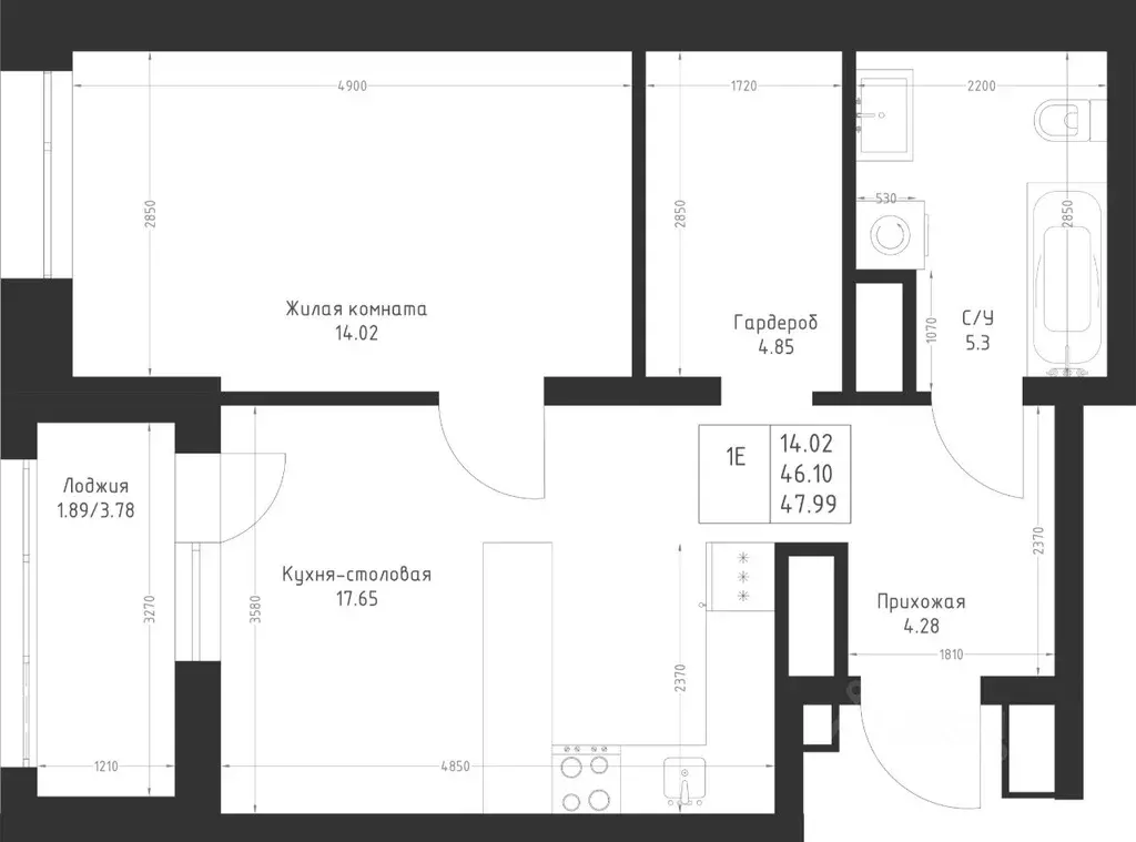
47 м2
Площадь
14 м2
Жилая
1
Комната
13
Этаж
23
Этажность
Развернуть
Агент
+7 (932) 208-36-31
Начать чат с агентом

1-к кв. Татарстан, Казань Седьмое Небо жилрайон, (47.99 м)

Продается 1 Евро-комнатная квартира 463 площадью 47,99 кв.м на 13 этаже в строящемся проекта Мой Ритм компании Ак Барс Дом .МОЙ РИТМ — не просто жилой комплекс, это новый стандарт динамичной жизни Казани. Точка притяжения сердца города. Проект признан лучшим в России в номинации Масштабная застройка свободных территорий во всероссийском конкурсе ТОП ЖК 2025 от ЕРЗ РФ.Современный жилой комплекс на пр. Победы рядом с Вознесенским трактом, торговым центром Мега и станцией метро на территории.ПРЕИМУЩЕСТВА: школы, детские сады на территории ЖК; кафе и магазины, салоны красоты, спортивные залы, аптеки; метро станция Тулпар на территории ЖК; Горкинско-Ометьевский парк рядом; рядом торговые центры: Мега , Южный , Агропарк , Максидом ; закрытый двор, повышенная безопасность; территория благоустроена: экологичные детские площадки, спортивные зоны с резиновым покрытием, всесезонное озеленение; игровой парк Озеро дракона на площади 1 га с зонами активности и отдыха; просторный подъезд с колясочной, вход на уровне земли; эффектное гранд-лобби с консьерж-сервисом; двухуровневый подземный паркинг с кладовыми и велобоксами.УДОБНАЯ ПЛАНИРОВКА:Просторная 1-комнатная квартира с большой евро-кухней, отдельной спальней и гардеробной комнатой. Площадь спальни позволяет разместить не только удобную двуспальную кровать, но и шкафы для хранения вещей.Кухня расположена в нише, чтобы вам было удобно зонировать пространство гостиной. В квартире предусмотрена лоджия, на которой можно организовать уютное место для отдыха. Вместительная ванная комната позволяет разместить как душевую кабину, так и полноценную ванную.ПРИОБРЕСТИ КВАРТИРУ МОЖНО:•наличным и безналичным расчётом по 100 оплате и рассрочке;•с использованием маткапитала;•с использованием жилищных сертификатов;•в ипотеку;•онлайн покупка.ПОДБОР КВАРТИРЫ:Подбор квартиры, полное юридическое сопровождение сделки — БЕСПЛАТНО.Наши специалисты помогут вам в решении вопроса приобретения недвижимости с момента консультации до передачи ключа от квартиры.МОЙ РИТМ это не просто жилой комплекс повышенной комфортности, это образ жизни, продуманный до мелочей.ЗВОНИТЕ ПРЯМО СЕЙЧАС - наши консультанты подробно расскажут об акциях, вы получите максимально выгодные предложения по покупке жилья, одни из самых низких ставок на ипотеку, полное бесплатное сопровождение сделки.

Читать полностью
    Позвонить Написать
    12 966 898 Р164 100 $ или 143 200
    Агент
    +7 (932) 208-36-31
    Начать чат с агентом
    Похожие предложения в Казани
    1-к кв. Татарстан, Казань Мой Ритм жилой комплекс (34.06 м) - Фото 1
    1-к кв. Татарстан, Казань Мой Ритм жилой комплекс (34.06 м) - Фото 2
    1-комнатная квартира, общая площадь 34м², жилая 20м², кухня 8м²

    Продается 1-комнатная квартира 216 площадью 34,06 кв.м на 22 этаже в строящемся доме проекта Мой Ритм компании Ак Барс Дом .ЖК МОЙ РИТМ — современный жилой комплекс в одном из лучших районов Казани, на пересечении пр. Победы и ул. Сахарова, рядом...
    • 34 м²
    • 1-ком
    • 22/24 эт.
    12 149 202 Р
    Агент
    +7 (932) Показать номер
    Посмотреть контакты
    1-к кв. Татарстан, Казань Мой Ритм жилой комплекс (34.06 м) - Фото 1
    1-к кв. Татарстан, Казань Мой Ритм жилой комплекс (34.06 м) - Фото 2
    1-комнатная квартира, общая площадь 34м², жилая 20м², кухня 8м²

    Продается 1-комнатная квартира 225 площадью 34,06 кв.м на 23 этаже в строящемся доме проекта Мой Ритм компании Ак Барс Дом .ЖК МОЙ РИТМ — современный жилой комплекс в одном из лучших районов Казани, на пересечении пр. Победы и ул. Сахарова, рядом...
    • 34 м²
    • 1-ком
    • 23/24 эт.
    12 149 202 Р
    Агент
    +7 (932) Показать номер
    Посмотреть контакты
    1-к кв. Татарстан, Казань Мой Ритм жилой комплекс (38.65 м) - Фото 1
    1-к кв. Татарстан, Казань Мой Ритм жилой комплекс (38.65 м) - Фото 2
    1-комнатная квартира, общая площадь 38м², жилая 24м², кухня 7м²

    Продается 1-комнатная квартира 324 площадью 38,65 кв.м на 14 этаже в строящемся доме проекта Мой Ритм компании Ак Барс Дом .ЖК МОЙ РИТМ — современный жилой комплекс в одном из лучших районов Казани, на пересечении пр. Победы и ул. Сахарова, рядом...
    • 38 м²
    • 1-ком
    • 14/24 эт.
    12 360 270 Р
    Агент
    +7 (932) Показать номер
    Посмотреть контакты
    1-к кв. Татарстан, Казань Мой Ритм жилой комплекс (40.05 м) - Фото 1
    1-к кв. Татарстан, Казань Мой Ритм жилой комплекс (40.05 м) - Фото 2
    1-комнатная квартира, общая площадь 40м², жилая 28м², кухня 6м²

    Продается 1-комнатная квартира 441 площадью 40,05 кв.м на 4 этаже в строящемся доме проекта Мой Ритм компании Ак Барс Дом .ЖК МОЙ РИТМ — современный жилой комплекс в одном из лучших районов Казани, на пересечении пр. Победы и ул. Сахарова, рядом...
    • 40 м²
    • 1-ком
    • 4/24 эт.
    12 695 850 Р
    Агент
    +7 (932) Показать номер
    Посмотреть контакты
    1-к кв. Татарстан, Казань Мой Ритм жилой комплекс (40.77 м) - Фото 1
    1-к кв. Татарстан, Казань Мой Ритм жилой комплекс (40.77 м) - Фото 2
    1-комнатная квартира, общая площадь 40м², жилая 30м², кухня 4м²

    Продается 1-комнатная квартира 746 площадью 40,77 кв.м на 14 этаже в строящемся доме проекта Мой Ритм компании Ак Барс Дом .ЖК МОЙ РИТМ — современный жилой комплекс в одном из лучших районов Казани, на пересечении пр. Победы и ул. Сахарова, рядом...
    • 40 м²
    • 1-ком
    • 14/24 эт.
    12 924 090 Р
    Агент
    +7 (932) Показать номер
    Посмотреть контакты

    Не нашли подходящего объявления?

    Оставьте заявку, и наши риэлторы подберут квартиру в новостройке в районе Казани

    (0)