12 050 799 Р 156 900 $ или 134 800

Информация о квартире

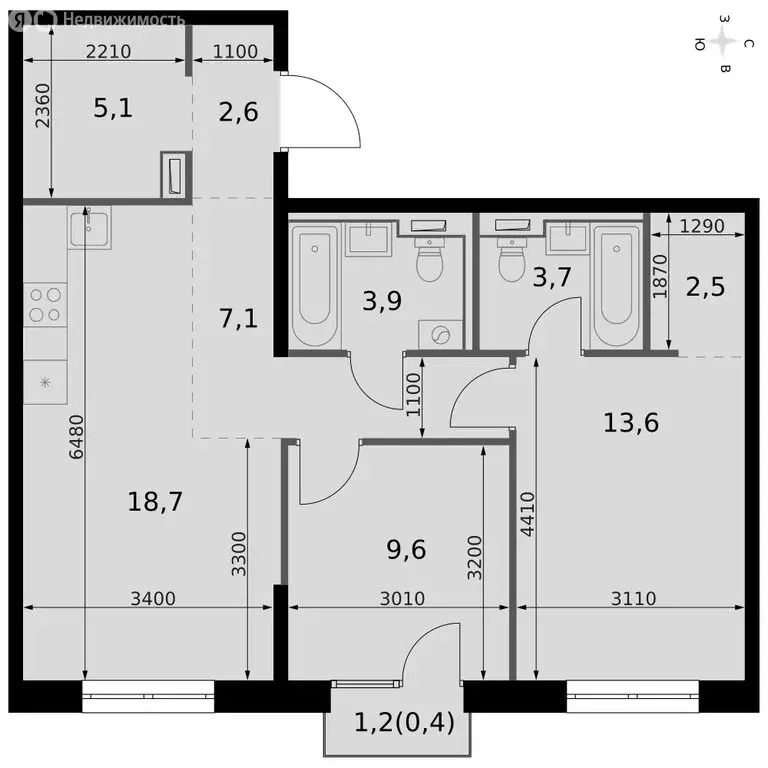
31 м2
Площадь
17 м2
Жилая
5 м2
Кухня
студия
Комнат
10
Этаж
20
Этажность
Развернуть
Агент
+7 (930) 329-01-73
Начать чат с агентом

Студия Татарстан, Казань Фриссон жилой комплекс (31.9 м)

Прямая продажа от застройщика Жилой Комплекс бизнес-класса. Продаётся квартира-студия номер 54 общей площадью 31.9 кв.м. на 10-м этаже 20 этажного здания. Отделка Whitebox. Цена с учётом скидки. Особенности квартиры: - Линейная планировка - максимальная функциональность и удобство. - Балкон - открытое пространство для отдыха. Квартира с предчистовой отделкой (White box). Вам не придется заниматься черновыми и трудоёмкими работы, а чистовую отделку и дизайн - сделайте на свой вкус. Информация о комплексе: Фриссон - клубный дом бизнес-класса в самом сердце Казани, на улице Даурской. Лейтмотивом проекта стала музыка - её сила, гармония и способность возвышать нас над повседневностью. Подобно нотам, рождающим бесконечное множество мелодий, квартиры в Фриссоне создают пространство для творчества, вдохновения и личного ритма жизни. Архитектура клубного дома словно симфония: переменная высота корпусов, выразительные фасады и динамика линий создают ощущение лёгкости и движения. Свет свободно проникает во внутренние дворы и квартиры, наполняя пространство теплом и гармонией. Здесь каждый день звучит по-своему - в унисон с вашим настроением. Транспортная доступность: - 5 мин. на машине до Метро Аметьево - 8 мин. на машине до ТЦ KazanMall - 3 мин. пешком до школы - 1 мин. пешком до Детского сада Фриссон - 3 мин. до поликлиники Внутренняя инфраструктура: Гармония уюта, ритма и комфорта. Для маленьких жителей комплекса предусмотрены детские площадки с элементами музыкальной тематики, где можно играть, исследовать мир звуков и развивать творческое мышление. На территории Фриссонаазместится двухэтажный детский сад на 80 мест - современное и безопасное пространство, где дети всегда рядом с родителями. Закрытая территория, концепция двор без машин и круглосуточное видеонаблюдение обеспечивают спокойствие и безопасность жителей. В каждом подъезде предусмотрены колясочные, а во дворе - велопарковки, чтобы коляски, велосипеды и самокаты всегда были под рукой. На первых этажах корпусов расположатся кафе и магазины, делающие жизнь максимально удобной. Здесь всё продумано для того, чтобы дом стал местом вдохновения, а двор - пространством, наполненным радостью и энергией жизни.

Читать полностью
    Позвонить Написать
    12 050 799 Р156 900 $ или 134 800
    Агент
    +7 (930) 329-01-73
    Начать чат с агентом
    Похожие предложения в Казани
    3-комнатная квартира: Казань, ЖК Фриссон (67.2 м) - Фото 1
    3-комнатная квартира: Казань, ЖК Фриссон (67.2 м) - Фото 2
    3-комнатная квартира, общая площадь 67м², жилая 23м², кухня 18м²

    Прямая продажа от застройщика Жилой Комплекс бизнес-класса.Продаётся 3-к квартира номер 219 общей площадью 67.2 кв.м. на 9-м этаже 19 этажного здания. Отделка Whitebox. Цена с учётом скидки.Особенности квартиры:- Мастер-зона с санузлом и гардеробной....
    • 67 м²
    • 3-ком
    • 9/19 эт.
    12 971 342 Р
    Агент
    +7 (932) Показать номер
    Посмотреть контакты
    2-комнатная квартира: Казань, Даурская улица, 2А (56.3 м) - Фото 1
    2-комнатная квартира: Казань, Даурская улица, 2А (56.3 м) - Фото 2
    2-комнатная квартира, общая площадь 56м², жилая 20м², кухня 19м²

    Прямая продажа от застройщика Жилой Комплекс бизнес-класса.Продаётся 2-к квартира номер 45 общей площадью 56.3 кв.м. на 9-м этаже 20 этажного здания. Отделка Whitebox. Цена с учётом скидки.Особенности квартиры:- Мастер-зона с санузлом и гардеробной. Всё...
    • 56 м²
    • 2-ком
    • 9/20 эт.
    11 987 104 Р
    Агент
    +7 (932) Показать номер
    Посмотреть контакты
    2-комнатная квартира: Казань, ЖК Фриссон (61 м) - Фото 1
    2-комнатная квартира: Казань, ЖК Фриссон (61 м) - Фото 2
    2-комнатная квартира, общая площадь 61м², жилая 25м², кухня 14м²

    Прямая продажа от застройщика Жилой Комплекс бизнес-класса.Продаётся 2-к квартира номер 353 общей площадью 61 кв.м. на 6-м этаже 14 этажного здания. Отделка Whitebox. Цена с учётом скидки.Особенности квартиры:- Мастер-зона с санузлом и гардеробной. Всё...
    • 61 м²
    • 2-ком
    • 6/14 эт.
    12 277 355 Р
    Агент
    +7 (932) Показать номер
    Посмотреть контакты
    1-комнатная квартира: Казань, ЖК Фриссон (47.8 м) - Фото 1
    1-комнатная квартира: Казань, ЖК Фриссон (47.8 м) - Фото 2
    1-комнатная квартира, общая площадь 47м², жилая 16м², кухня 14м²

    Прямая продажа от застройщика Жилой Комплекс бизнес-класса.Продаётся 1-к квартира номер 309 общей площадью 47.8 кв.м. на 6-м этаже 8 этажного здания. Отделка Whitebox. Цена с учётом скидки.Особенности квартиры:- Линейная планировка - максимальная функциональность...
    • 47 м²
    • 1-ком
    • 6/19 эт.
    11 338 651 Р
    Агент
    +7 (932) Показать номер
    Посмотреть контакты
    2-комнатная квартира: Казань, ЖК Фриссон (60.5 м) - Фото 1
    2-комнатная квартира: Казань, ЖК Фриссон (60.5 м) - Фото 2
    2-комнатная квартира, общая площадь 60м², жилая 29м², кухня 12м²

    Прямая продажа от застройщика Жилой Комплекс бизнес-класса.Продаётся 2-к квартира номер 308 общей площадью 60.5 кв.м. на 5-м этаже 8 этажного здания. Отделка Whitebox. Цена с учётом скидки.Особенности квартиры:- Мастер-зона с санузлом. Уют и комфорт в...
    • 60 м²
    • 2-ком
    • 5/19 эт.
    11 739 457 Р
    Агент
    +7 (932) Показать номер
    Посмотреть контакты

    Не нашли подходящего объявления?

    Оставьте заявку, и наши риэлторы подберут квартиру в новостройке в районе Казани

    (0)