Реализация объекта недвижимости приостановлена

Информация о квартире

63.0 м2
Площадь
31.0 м2
Жилая
12.0 м2
Кухня
2
Комнаты
7
Этаж
17
Этажность

Дополнительная информация

Тип дома
монолит
Развернуть

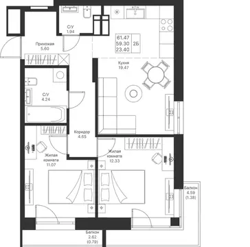
2-к кв. Татарстан, Казань ул. Назиба Жиганова, 2А (63.8 м)

Продается 2-комнатная квартира 84 площадью 63,95 кв.м на 7 этаже проекта Мой ритм от Ак Барс Дом . Купить квартиру можно в ипотеку со ставкой от 3,2 или воспользоваться услугой trade-in. Мой ритм — современный жилой комплекс в одном из лучших районов Казани, на пересечении пр. Победы и ул. Сахарова, рядом со строящейся станцией метро. Школы, детские сады, поликлиника в шаговой доступности. Рядом ТРЦ МЕГА и Горкинско-Ометьевский парк.Территория благоустроена: экологичные детские площадки, спортивные зоны с резиновым покрытием, озеленение. Через весь комплекс будет проходить прогулочный бульвар, а в центральной части - плейхаб Озеро дракона с зонами активности и отдыха.Для безопасности дворы закрыты от машин и посторонних, а по периметру установлено видеонаблюдение. Просторные подъезды с колясочными, входы на уровне земли. Проект Мой Ритм занял призовые места в номинациях Лучший жилой комплекс-новостройка в Татарстане и Лучший проект в РФ, масштабная застройка свободных территорий .В квартирах продуманные планировки, функциональные прихожие и кухни, высокие потолки, места для хранения. Есть встроенный функционал умной квартиры системы, которая позволяет управлять жильём дистанционно.Обслуживание дома возьмут на себя специалисты управляющей компании Всегда рядом . Они помогут обеспечить вам комфортное проживание.Дом там, где мы.

Читать полностью

    Реализация объекта недвижимости приостановлена

    Не нашли подходящего объявления?

    Оставьте заявку, и наши риэлторы подберут квартиру в новостройке в районе Казани

    (0)