Реализация объекта недвижимости приостановлена

Информация о квартире

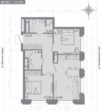
68.0 м2
Площадь
37.0 м2
Жилая
9.0 м2
Кухня
3
Комнаты
4
Этаж
14
Этажность

Дополнительная информация

Тип дома
монолит
Развернуть

3-к кв. Татарстан, Казань проезд Владимира Шнеппа (68.58 м)

Предлагается 3-комнатная квартира комфорт-класса 68,58 кв.м в корпусе 4 на 4 этаже, в MANZARA TOWERSКвартира с предчистовой отделкой. Доступность дополнительных опций уточняйте у застройщика.Приобрести квартиру возможно по специальным акциям от застройщика, с текущими условиями акций можно ознакомиться в блоке Акций .Цена динамическая и может отличаться, уточняйте актуальность у застройщика.Manzara Towers — это дома высотой от 7 до 24 этажей. В увеличенных окнах с зеркальной поверхностью отражаются облака и солнечные блики. Тихий двор с игровыми площадками и воркаут-пространством идеален для прогулок с кофе. На первом этаже есть выход на стилобат, где появятся зеленые оазисы и открытые террасы. Дома соединяет между собой частично прозрачный пешеходный мост. Предусмотрены подземный и 6-этажный многоуровневый паркинги.До ж/д вокзалов можно доехать за 20 минут. Или в обеденный перерыв встретиться с друзьями в центре города — дорога на машине займет около 15 минут. На первых этажах корпусов откроется детская поликлиника, ФОК с бассейном, магазины, кафе и салоны красоты. Для маленьких жителей уже работают 3 детских сада и лицей, до которых можно дойти за 615 минут. Во всех наших корпусах входы в светлые лобби находятся на уровне земли. На первом этаже есть специальные места для хранения колясок и велосипедов.

Читать полностью

    Реализация объекта недвижимости приостановлена

    Не нашли подходящего объявления?

    Оставьте заявку, и наши риэлторы подберут квартиру в новостройке в районе Казани

    (0)