15 017 180 Р 191 100 $ или 164 100

Информация о квартире

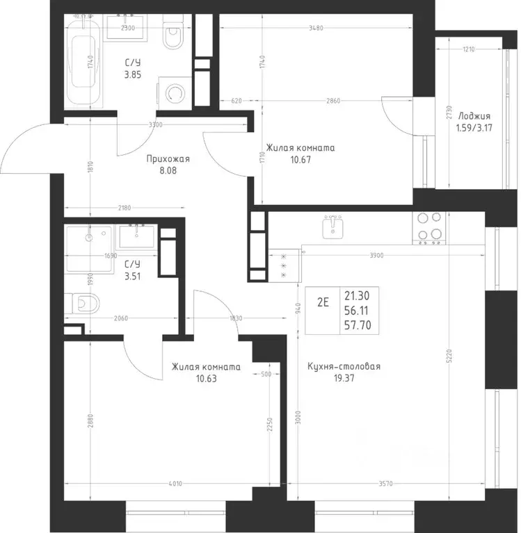
61 м2
Площадь
21 м2
Жилая
2
Комнаты
5
Этаж
23
Этажность
Развернуть
Агент
+7 (932) 208-36-31
Начать чат с агентом

2-к кв. Татарстан, Казань Седьмое Небо жилрайон, (61.85 м)

Продается 2 Евро-комнатная квартира 396 площадью 61,85 кв.м на 5 этаже в строящемся проекта Мой Ритм компании Ак Барс Дом .МОЙ РИТМ — не просто жилой комплекс, это новый стандарт динамичной жизни Казани. Точка притяжения сердца города. Проект признан лучшим в России в номинации Масштабная застройка свободных территорий во всероссийском конкурсе ТОП ЖК 2025 от ЕРЗ РФ.Современный жилой комплекс на пр. Победы рядом с Вознесенским трактом, торговым центром Мега и станцией метро на территории.ПРЕИМУЩЕСТВА: школы, детские сады на территории ЖК; кафе и магазины, салоны красоты, спортивные залы, аптеки; метро станция Тулпар на территории ЖК; Горкинско-Ометьевский парк рядом; рядом торговые центры: Мега , Южный , Агропарк , Максидом ; закрытый двор, повышенная безопасность; территория благоустроена: экологичные детские площадки, спортивные зоны с резиновым покрытием, всесезонное озеленение; игровой парк Озеро дракона на площади 1 га с зонами активности и отдыха; просторный подъезд с колясочной, вход на уровне земли; эффектное гранд-лобби с консьерж-сервисом; двухуровневый подземный паркинг с кладовыми и велобоксами.УДОБНАЯ ПЛАНИРОВКА:Просторная 2-комнатная квартира с евро-кухней и двумя санузлами. Площадь комнат позволяет зонировать пространство так, как необходимо именно вам.Кухонная зона находится в нише, чтобы вам было удобно организовать рабочее и гостевое пространство. Из гостиной предусмотрен выход к лоджии с приятным видом на улицу, где можно устроить уютное место для отдыха и наслаждаться вечерними закатами с близкими.Две отдельные комнаты позволят предусмотреть личное пространство для всех домочадцев, а мастер-спальня добавит в вашу жизнь особенный комфорт.В ванной достаточно места, чтобы разместить как душевую кабину, так и полноценную ванную. Для хранения вещей в прихожей есть ниша для шкафа-купе.ПРИОБРЕСТИ КВАРТИРУ МОЖНО:•наличным и безналичным расчётом по 100 оплате и рассрочке;•с использованием маткапитала;•с использованием жилищных сертификатов;•в ипотеку;•онлайн покупка.ПОДБОР КВАРТИРЫ:Подбор квартиры, полное юридическое сопровождение сделки — БЕСПЛАТНО.Наши специалисты помогут вам в решении вопроса приобретения недвижимости с момента консультации до передачи ключа от квартиры.МОЙ РИТМ это не просто жилой комплекс повышенной комфортности, это образ жизни, продуманный до мелочей.ЗВОНИТЕ ПРЯМО СЕЙЧАС - наши консультанты подробно расскажут об акциях, вы получите максимально выгодные предложения по покупке жилья, одни из самых низких ставок на ипотеку, полное бесплатное сопровождение сделки.

Читать полностью
    Позвонить Написать
    15 017 180 Р191 100 $ или 164 100
    Агент
    +7 (932) 208-36-31
    Начать чат с агентом
    Похожие предложения в Казани
    3-к кв. Татарстан, Казань Родины мкр, Главные Роли жилой комплекс ... - Фото 1
    3-комнатная квартира, общая площадь 76м²

    Продаётся 3-комнатная квартира в строящемся доме (Корпус 2), срок сдачи: I-кв. 2029, общей площадью 76.6 кв.м., на 2 этаже.
    • 76 м²
    • 3-ком
    • 2/23 эт.
    15 703 000 Р
    Агент
    +7 (969) Показать номер
    Посмотреть контакты
    2-к кв. Татарстан, Казань Седьмое Небо жилрайон,  (57.7 м) - Фото 1
    2-к кв. Татарстан, Казань Седьмое Небо жилрайон,  (57.7 м) - Фото 2
    2-комнатная квартира, общая площадь 57м², жилая 21м²

    Продается 2 Евро-комнатная квартира 120 площадью 57,7 кв.м на 12 этаже в строящемся проекта Мой Ритм компании Ак Барс Дом .МОЙ РИТМ — не просто жилой комплекс, это новый стандарт динамичной жизни Казани. Точка притяжения сердца города. Проект признан...
    • 57 м²
    • 2-ком
    • 12/23 эт.
    14 223 050 Р
    Агент
    +7 (932) Показать номер
    Посмотреть контакты
    2-к кв. Татарстан, Казань Седьмое Небо жилрайон,  (61.85 м) - Фото 1
    2-к кв. Татарстан, Казань Седьмое Небо жилрайон,  (61.85 м) - Фото 2
    2-комнатная квартира, общая площадь 61м², жилая 21м²

    Продается 2 Евро-комнатная квартира 468 площадью 61,85 кв.м на 13 этаже в строящемся проекта Мой Ритм компании Ак Барс Дом .МОЙ РИТМ — не просто жилой комплекс, это новый стандарт динамичной жизни Казани. Точка притяжения сердца города. Проект признан...
    • 61 м²
    • 2-ком
    • 13/23 эт.
    15 165 620 Р
    Агент
    +7 (932) Показать номер
    Посмотреть контакты
    2-к кв. Татарстан, Казань Седьмое Небо жилрайон,  (65.01 м) - Фото 1
    2-к кв. Татарстан, Казань Седьмое Небо жилрайон,  (65.01 м) - Фото 2
    2-комнатная квартира, общая площадь 65м², жилая 27м²

    Продается 2 Евро-комнатная квартира 330 площадью 65,01 кв.м на 12 этаже в строящемся проекта Мой Ритм компании Ак Барс Дом .МОЙ РИТМ — не просто жилой комплекс, это новый стандарт динамичной жизни Казани. Точка притяжения сердца города. Проект признан...
    • 65 м²
    • 2-ком
    • 12/23 эт.
    15 875 442 Р
    Агент
    +7 (932) Показать номер
    Посмотреть контакты
    2-к кв. Татарстан, Казань Мой Ритм жилой комплекс, ПК14 (61.47 м) - Фото 1
    2-к кв. Татарстан, Казань Мой Ритм жилой комплекс, ПК14 (61.47 м) - Фото 2
    2-комнатная квартира, общая площадь 61м², жилая 23м², кухня 19м²

    Продается 2-комнатная квартира 443 площадью 61,47 кв.м на 10 этаже в строящемся доме проекта Мой Ритм компании Ак Барс Дом .ЖК МОЙ РИТМ — современный жилой комплекс в одном из лучших районов Казани, на пересечении пр. Победы и ул. Сахарова, рядом...
    • 61 м²
    • 2-ком
    • 10/25 эт.
    15 545 763 Р
    Агент
    +7 (932) Показать номер
    Посмотреть контакты

    Не нашли подходящего объявления?

    Оставьте заявку, и наши риэлторы подберут квартиру в новостройке в районе Казани

    (0)