15 091 400 Р 194 200 $ или 167 000

Информация о квартире

61 м2
Площадь
21 м2
Жилая
2
Комнаты
10
Этаж
23
Этажность
Развернуть
Агент
+7 (932) 208-36-31
Начать чат с агентом

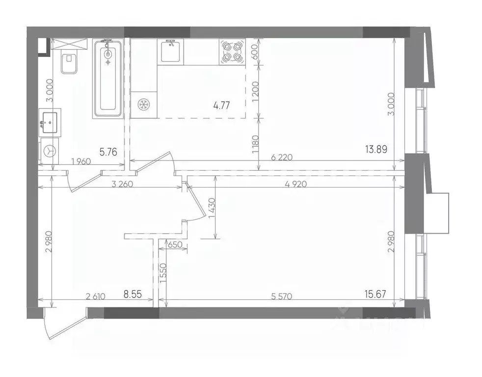
2-к кв. Татарстан, Казань Седьмое Небо жилрайон, (61.85 м)

Продается 2 Евро-комнатная квартира 441 площадью 61,85 кв.м на 10 этаже в строящемся проекта Мой Ритм компании Ак Барс Дом .МОЙ РИТМ — не просто жилой комплекс, это новый стандарт динамичной жизни Казани. Точка притяжения сердца города. Проект признан лучшим в России в номинации Масштабная застройка свободных территорий во всероссийском конкурсе ТОП ЖК 2025 от ЕРЗ РФ.Современный жилой комплекс на пр. Победы рядом с Вознесенским трактом, торговым центром Мега и станцией метро на территории.ПРЕИМУЩЕСТВА: школы, детские сады на территории ЖК; кафе и магазины, салоны красоты, спортивные залы, аптеки; метро станция Тулпар на территории ЖК; Горкинско-Ометьевский парк рядом; рядом торговые центры: Мега , Южный , Агропарк , Максидом ; закрытый двор, повышенная безопасность; территория благоустроена: экологичные детские площадки, спортивные зоны с резиновым покрытием, всесезонное озеленение; игровой парк Озеро дракона на площади 1 га с зонами активности и отдыха; просторный подъезд с колясочной, вход на уровне земли; эффектное гранд-лобби с консьерж-сервисом; двухуровневый подземный паркинг с кладовыми и велобоксами.УДОБНАЯ ПЛАНИРОВКА:Просторная 2-комнатная квартира с евро-кухней и двумя санузлами. Площадь комнат позволяет зонировать пространство так, как необходимо именно вам.Кухонная зона находится в нише, чтобы вам было удобно организовать рабочее и гостевое пространство. Из гостиной предусмотрен выход к лоджии с приятным видом на улицу, где можно устроить уютное место для отдыха и наслаждаться вечерними закатами с близкими.Две отдельные комнаты позволят предусмотреть личное пространство для всех домочадцев, а мастер-спальня добавит в вашу жизнь особенный комфорт.В ванной достаточно места, чтобы разместить как душевую кабину, так и полноценную ванную. Для хранения вещей в прихожей есть ниша для шкафа-купе.ПРИОБРЕСТИ КВАРТИРУ МОЖНО:•наличным и безналичным расчётом по 100 оплате и рассрочке;•с использованием маткапитала;•с использованием жилищных сертификатов;•в ипотеку;•онлайн покупка.ПОДБОР КВАРТИРЫ:Подбор квартиры, полное юридическое сопровождение сделки — БЕСПЛАТНО.Наши специалисты помогут вам в решении вопроса приобретения недвижимости с момента консультации до передачи ключа от квартиры.МОЙ РИТМ это не просто жилой комплекс повышенной комфортности, это образ жизни, продуманный до мелочей.ЗВОНИТЕ ПРЯМО СЕЙЧАС - наши консультанты подробно расскажут об акциях, вы получите максимально выгодные предложения по покупке жилья, одни из самых низких ставок на ипотеку, полное бесплатное сопровождение сделки.

Читать полностью
    Позвонить Написать
    15 091 400 Р194 200 $ или 167 000
    Агент
    +7 (932) 208-36-31
    Начать чат с агентом
    Похожие предложения в Казани
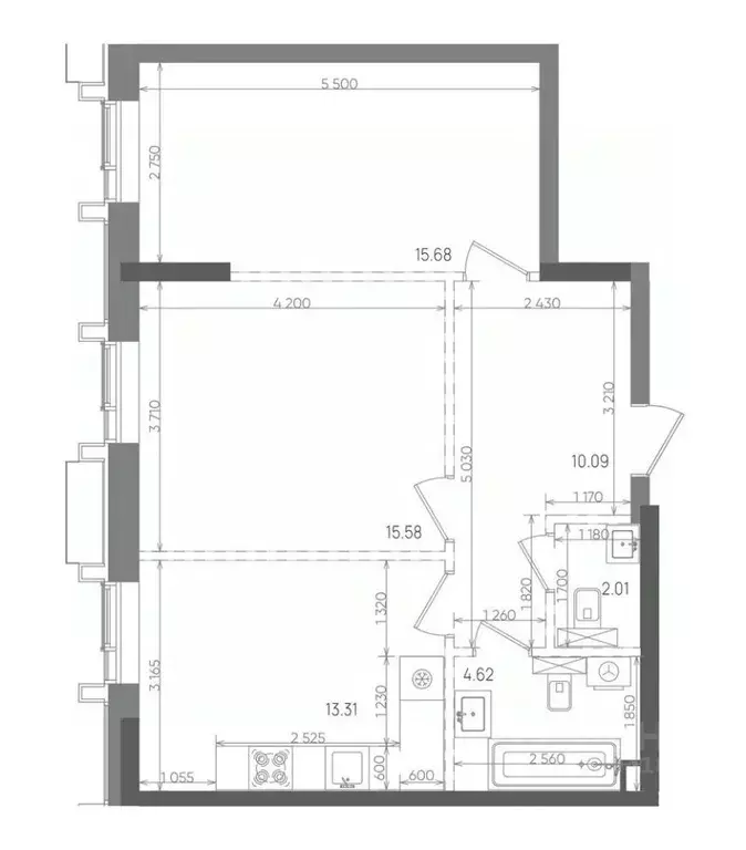
    2-к кв. Татарстан, Казань ул. Аделя Кутуя, 180 (49.69 м) - Фото 1
    2-к кв. Татарстан, Казань ул. Аделя Кутуя, 180 (49.69 м) - Фото 2
    2-комнатная квартира, общая площадь 49м², жилая 32м²

    Адали это современный жилой комплекс бизнес-класса для амбициозных людей, тех, кто любит открывать новое и не боится перемен. Яркая архитектура, гибкие планировки, пешая доступность Горкинско-Ометьевского леса и станции метро Горки ваша жизнь в ...
    • 49 м²
    • 2-ком
    • 23/23 эт.
    • монолит
    14 228 649 Р
    Агент
    +7 (932) Показать номер
    Посмотреть контакты
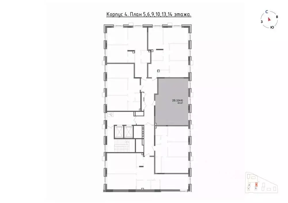
    2-к кв. Татарстан, Казань Вознесенский Квартал жилой комплекс (60.67 ... - Фото 1
    2-к кв. Татарстан, Казань Вознесенский Квартал жилой комплекс (60.67 ... - Фото 2
    2-комнатная квартира, общая площадь 60м², жилая 32м²

    Теперь дом — это не просто место, это стиль жизни и продолжение уникальности каждого из нас. Комьюнити-комплекс Вознесенский квартал создан в стремлении найти баланс уюта и мультизадачности общественных зон, архитектурной задумки и продуманного благоустройства....
    • 60 м²
    • 2-ком
    • 6/14 эт.
    • монолит
    15 088 646 Р
    Агент
    +7 (932) Показать номер
    Посмотреть контакты
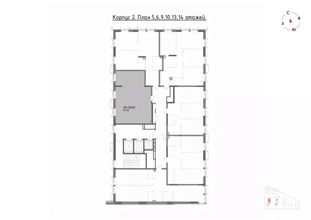
    2-к кв. Татарстан, Казань Вознесенский Квартал жилой комплекс (61.29 ... - Фото 1
    2-к кв. Татарстан, Казань Вознесенский Квартал жилой комплекс (61.29 ... - Фото 2
    2-комнатная квартира, общая площадь 61м², жилая 31м²

    Теперь дом — это не просто место, это стиль жизни и продолжение уникальности каждого из нас. Комьюнити-комплекс Вознесенский квартал создан в стремлении найти баланс уюта и мультизадачности общественных зон, архитектурной задумки и продуманного благоустройства....
    • 61 м²
    • 2-ком
    • 6/22 эт.
    • монолит
    15 096 088 Р
    Агент
    +7 (932) Показать номер
    Посмотреть контакты
    2-к кв. Татарстан, Казань Вознесенский Квартал жилой комплекс (48.64 ... - Фото 1
    2-к кв. Татарстан, Казань Вознесенский Квартал жилой комплекс (48.64 ... - Фото 2
    2-комнатная квартира, общая площадь 48м², жилая 29м²

    Теперь дом — это не просто место, это стиль жизни и продолжение уникальности каждого из нас. Комьюнити-комплекс Вознесенский квартал создан в стремлении найти баланс уюта и мультизадачности общественных зон, архитектурной задумки и продуманного благоустройства....
    • 48 м²
    • 2-ком
    • 14/14 эт.
    • монолит
    14 410 104 Р
    Агент
    +7 (932) Показать номер
    Посмотреть контакты
    2-к кв. Татарстан, Казань ул. Аделя Кутуя, 180 (57.58 м) - Фото 1
    2-к кв. Татарстан, Казань ул. Аделя Кутуя, 180 (57.58 м) - Фото 2
    2-комнатная квартира, общая площадь 57м², жилая 40м²

    Адали это современный жилой комплекс бизнес-класса для амбициозных людей, тех, кто любит открывать новое и не боится перемен. Яркая архитектура, гибкие планировки, пешая доступность Горкинско-Ометьевского леса и станции метро Горки ваша жизнь в ...
    • 57 м²
    • 2-ком
    • 21/23 эт.
    • монолит
    15 848 336 Р
    Агент
    +7 (932) Показать номер
    Посмотреть контакты

    Не нашли подходящего объявления?

    Оставьте заявку, и наши риэлторы подберут квартиру в новостройке в районе Казани

    (0)