Реализация объекта недвижимости приостановлена

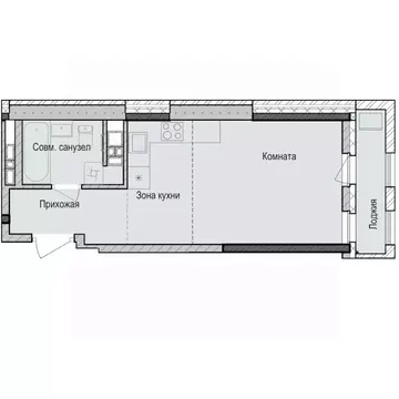
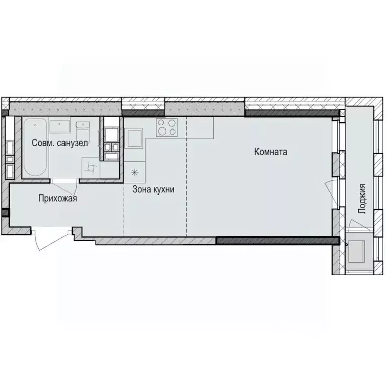
Информация о квартире

28.0 м2
Площадь
студия
Комнат
10
Этаж
23
Этажность
Развернуть

Студия Татарстан, Казань Седьмое Небо жилрайон, Унай жилой комплекс ...

Продаётся студия в строящемся доме (Корпус 1), срок сдачи: IV-кв. 2028, общей площадью 28.9 кв.м., на 10 этаже. Новый жилой комплекс Унай от застройщика Комосстройасположен по адресу: г. Казань, Улица Аделя Кутуя

Читать полностью

    Реализация объекта недвижимости приостановлена

    Не нашли подходящего объявления?

    Оставьте заявку, и наши риэлторы подберут квартиру в новостройке в районе Казани

    (0)