Реализация объекта недвижимости приостановлена

Информация о квартире

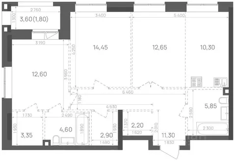
59.0 м2
Площадь
25.0 м2
Жилая
17.0 м2
Кухня
2
Комнаты
10
Этаж
18
Этажность

Дополнительная информация

Тип дома
монолит
Развернуть

2-к кв. Татарстан, Казань 38-й кв-л, (59.72 м)

Уникум на Амирхана - современный проект с преимуществами бизнес-класса расположен в Ново-Савиновском районе на улице Фатыха Амирхана. В пешей доступности все для насыщенной жизни. Приватный двор с проработанным пространством для досуга и лаконичным дизайном, создающим особую атмосферу. Заботу о вашем комфорте обеспечит компания Унистрой .Развитый район Проект, который сочетает в себе прогрессивность инфраструктуры и живописность окружающей среды. Всего 15 минут до центра на автомобиле, дорога к которому будет вдохновлять панорамой реки и огнями города. В 5 минутах ходьбы расположен торговый центр Парк Хаус , парк Победы , а также Малое Чайковое озеро . Это единственный парк в России, который получил международную премию Гуанчжоу в 2023 году. Район характерен разнообразным streetитейлом, остановками общественного транспорта, детскими садами, школами, больницами. Организация двора без машин делает его безопасным для жителей с обустройством детских и спортивных площадок, зоной отдыха. На территории каждый найдет себе место и занятие для души. Архитекторы продумали территорию двора, включая вход в подъезд, без пандусов и ступеней для свободного проезда детских колясок, велосипедов. Благоустройство территории проработано до мельчайших деталей подсветка тротуара и дизайнерское сочетание долговечных материалов отделки, которые погружают в особую атмосферу проекта Уникум . Комфорт в каждой детали Архитектурное решение проекта направленно на заботу о комфортном проживании. Жилой комплекс и вся прилегающая территория будут подсвечены продуманной архитектурной подсветкой в вечернее время суток. Дом с переменной этажностью состоит из двух блоков, соединенных стилобатом. Дизайнерские холлы со стеклянными входными группами создадут ощущение простора и уюта благодаря естественному свету. Круглосуточная охрана и видеонаблюдение -это неотъемлемая часть безопасности жильцов. Отдельное помещение для колясочных с персональным доступом только для жителей. На крыше дома будет терраса для жителей, где каждый сможет насладиться времяпровождением. Ваш дом не ограничивается вашей квартирой. Весь комплекс Уникум на Амирхана и есть ваш дом.Функциональные планировкиВ проекте представлено разнообразие эргономичных и функциональных планировок от студий до 4-комнатных квартир и евроформатов. Квартиры со свободной планировкой, где вы сможете реализовать идеальное пространство жизни. На первом этаже квартиры обустроены террасами, которые не оставят никого равнодушными и привнесут в ваш быт эксклюзивный комфорт. На верхних этажах просторные балконы откроют панораму города. Вариант с гардеробной позволит оптимизировать пространство квартиры. Благодаря продуманным коммуникациям вы наслаждаетесь жизнью в жилом комплексе. Сервисная компания Территория комфорта заботится о вас и помогает в бытовых вопросах по заявкам в приложении. Система автоматической передачи данных учета воды и электроэнергии позволяет не только экономить время, но и энерг

Читать полностью

    Реализация объекта недвижимости приостановлена

    Не нашли подходящего объявления?

    Оставьте заявку, и наши риэлторы подберут квартиру в новостройке в районе Казани

    (0)