143 412 900 Р 1 884 700 $ или 1 616 800

Информация о квартире

201 м2
Площадь
4
Комнаты
3
Этаж
7
Этажность

Дополнительная информация

Тип дома
кирпичный
Развернуть
Агент
+7 (932) 208-86-78
Начать чат с агентом

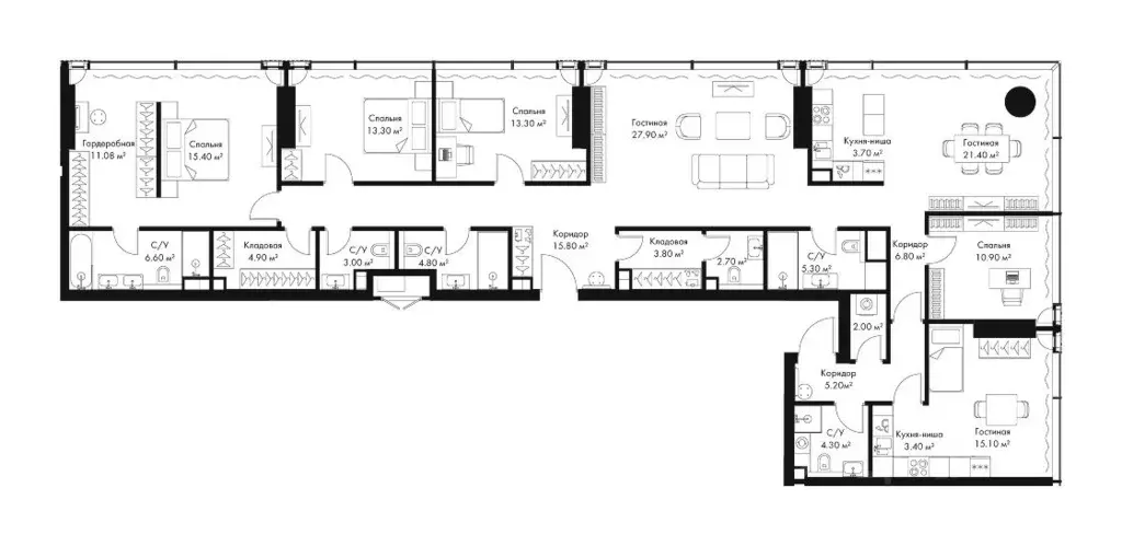
4-к кв. Татарстан, Казань ул. Калинина, 3Г (201.99 м)

Продаются 4-комнатные апартаменты в сданном доме (Калинина, 3Г), срок сдачи: II-кв. 2023, общей площадью 201.99 кв.м., на 3 этаже.

Читать полностью
    Позвонить Написать
    143 412 900 Р1 884 700 $ или 1 616 800
    Агент
    +7 (932) 208-86-78
    Начать чат с агентом
    Похожие предложения
    4-к кв. Татарстан, Казань ул. Калинина, 3Г (202.17 м) - Фото 1
    4-к кв. Татарстан, Казань ул. Калинина, 3Г (202.17 м) - Фото 2
    4-комнатная квартира, общая площадь 202м²

    Продаются 4-комнатные апартаменты в сданном доме (Калинина, 3Г), срок сдачи: II-кв. 2023, общей площадью 202.17 кв.м., на 4 этаже.
    • 202 м²
    • 4-ком
    • 4/7 эт.
    • кирпичный
    149 605 800 Р
    Агент
    +7 (932) Показать номер
    Посмотреть контакты
    2-к кв. Татарстан, Казань Академик жилой комплекс (176.93 м) - Фото 1
    2-к кв. Татарстан, Казань Академик жилой комплекс (176.93 м) - Фото 2
    2-комнатная квартира, общая площадь 176м², жилая 44м², кухня 58м²

    Вашему вниманию:2 комнатная квартира площадью 176.93 кв.м. на 6 этаже в строящемся жилом комплексе премиум-класса Академик .Покупая квартиру с панорамным остеклением и потолками от 3,15 м, расположенная в сердце исторического центра Казани вы получаете:-...
    • 176 м²
    • 2-ком
    • 6/7 эт.
    • кирпичный
    141 544 000 Р
    Агент
    +7 (932) Показать номер
    Посмотреть контакты
    3-к кв. Москва ул. Братьев Фонченко, 1к8 (104.0 м) - Фото 1
    3-к кв. Москва ул. Братьев Фонченко, 1к8 (104.0 м) - Фото 2
    3-комнатная квартира, общая площадь 104м², жилая 75м², кухня 25м²

    ЭКСКЛЮЗИВ Уникальное предложение - 3-х комнатная (2 спальни) квартира с отделкой в элитном ЖК VICTORY PARK RESIDENCES ОПЕРАТИВНЫЙ ПОКАЗ, СОТРУДНИЧАЮ С КОЛЛЕГАМИ В квартире выполнена эксклюзивная отделка в стиле НЕОДЕКО .Планировочное решение: кухня-гостиная...
    • 104 м²
    • 3-ком
    • 3/11 эт.
    140 000 000 Р
    Агент
    +7 (989) Показать номер
    Посмотреть контакты
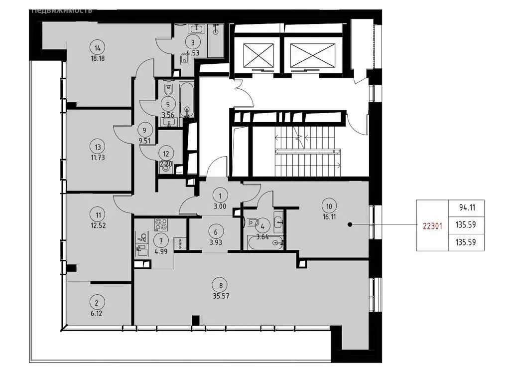
    4-комнатная квартира: Москва, ЖК Мира (135.59 м) - Фото 1
    4-комнатная квартира: Москва, ЖК Мира (135.59 м) - Фото 2
    4-комнатная квартира, общая площадь 135м², жилая 94м²

    Скидка 5 Дом премиум-класса МИRА находится в культовой столичной локации, которая играет особую роль в жизни нескольких поколений москвичей. 4-комнатная квартира площадью 135.59 кв.м, расположенная в корпусе 2, на 23 этаже 23 этажного дома. Дом премиум-класса...
    • 135 м²
    • 4-ком
    • 23/23 эт.
    144 701 648 Р
    Агент
    +7 (984) Показать номер
    Посмотреть контакты
    5-к кв. Москва ул. 3-я Ямского Поля, 9к6 (201.0 м) - Фото 1
    5-к кв. Москва ул. 3-я Ямского Поля, 9к6 (201.0 м) - Фото 2
    5-комнатная квартира, общая площадь 201м²

    Квартиры премиум-класса в жилом комплексе SLAVA у м. Белорусская от застройщика.В продаже 5-комнатная квартира площадью 201 м на 4-м этаже корпуса D.Новый современный жилой комплекс премиум-класса SLAVA расположен в той части центра, где традиция соединяется...
    • 201 м²
    • 5-ком
    • 4/34 эт.
    • монолит
    136 526 436 Р
    Агент
    +7 (923) Показать номер
    Посмотреть контакты

    Не нашли подходящего объявления?

    Оставьте заявку, и наши риэлторы подберут квартиру в новостройке в районе Казани

    (0)