6 200 000 Р

Информация о коттедже

50.4 м2
Площадь
1955
Построен
1
Этажность

Состояние и оснащение

Год постройки
1955

Коммуникации

Водоснабжение
центральное
Канализация
есть
Развернуть
Агент
ФЛЭТ
+7 (843) 231-83-44
Начать чат с агентом

Продажа дома, Казань, ул. Волнистая

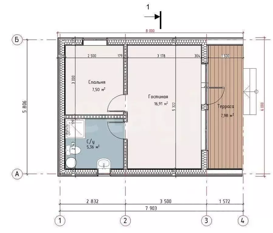
Объект №116945 Дом вблизи новой портовой с двумя гаражами Представляю вашему вниманию уютный, светлый, теплый дом с земельным участком ИЖС в динамично развивающемся районе г. Казани. В ближайшей перспективе планируется большой федеральный инвестиционный проект под названием "Новая Портовая" Появиться возможность прогуливаться пешком до центра Казани по новой набережной реки Волги. На сегодняшний день уже есть хорошая транспортная с выходом на Большое Казанское Кольцо.
Дом:
Бревенчатый дом общей площадью 50,4м, облицованный сайдингом. Все окна заменены на современные пластиковые окна. Конструктив дома состоит из:1 жилой комнаты, прихожей гардеробная комната, кухни, тамбур, санузел. Этот дом — отличный выбор для семьи, ценящей комфорт и удачное расположение!
Участок:
На земельном участке площадью 516 м располагается: кладовое помещение , 2 Гаража 14.5 м и 27,1 м и Баня, которая отапливается газом. Также есть теплица из поликарбоната для размещения рассады и выращивания урожая на своих грядках.Площадь участка позволяетазместить зона барбекю, где можно на мангале пожарить шашлыки. Ландшафт участка -ровный, без резких перепадов. Все коммуникации в доме: Газ, вода централизованная, электричество, выгребная яма. Низкие коммунальные платежи. По периметру стоит забор.
Хорошие подъездные пути, до дома дорога из щебня.
Инфраструктура:
Отличная транспортная доступность. До центра города на автомобиле без пробок- 5 минут! Магазины и остановка общественного транспорта — всё в 5 минутах пешком. Удобный выезд и комфортное проживание круглый год.
Отличное местоположение, район, в шаговой доступности всё необходимое города — редкое сочетание уюта загородного дома и городской инфраструктуры.
Рядом улицы: Магистральная, Татарстан, Габдуллы Тукая, площадь Вахитова, Тихорецкая
Безопасность сделки:
• Два взрослых собственника.
• Вся сумма в договоре.
• Без обременений и детских долей.

Реальному покупателю разумный торг.

Звоните прямо сейчас — такие предложения появляются редко! Не упустите уникальную возможность!

Читать полностью

    Для того, чтобы купить 1-этажный коттедж по адресу: Казань, Приволжский, ул. Волнистая, дом 12А, позвоните по телефону +7 (843) 231-83-44. Торопитесь! Объявление №506735889 о продаже одноэтажного коттеджа опубликовано Вчера.

    Позвонить Написать
    6 200 000 Р
    Агент
    ФЛЭТ
    +7 (843) 231-83-44
    Начать чат с агентом
    Похожие предложения
    Дом в Татарстан, Казань ВамДом Чебакса кп, ул. Хазиева, 15 (46 м) - Фото 1
    Дом в Татарстан, Казань ВамДом Чебакса кп, ул. Хазиева, 15 (46 м) - Фото 2
    1 этаж, общая площадь 46м², участок 11 соток

    Арт.Продаётся земельный участок с домом Расположение: Советский район г. Казани, с. Чебакса.Основные параметрыПлощадь участка: 11,85 соток (огорожен, хорошая форма).Жилой дом: одноэтажный, бревенчатый, 46,2 м.Дополнительные постройки: гараж, хозблок,...
    • 1 эт.
    • 46 м²
    • 11 сот.
    6 300 000 Р
    Агент
    +7 (987) Показать номер
    Посмотреть контакты
    Дом в Казань, Советский район, жилой массив Чебакса (46.2 м) - Фото 1
    Дом в Казань, Советский район, жилой массив Чебакса (46.2 м) - Фото 2
    1 этаж, общая площадь 46м², участок 11 соток

    Арт.Продаётся земельный участок с домом Расположение: Советский район г. Казани, с. Чебакса.Основные параметрыПлощадь участка: 11,85 соток (огорожен, хорошая форма).Жилой дом: одноэтажный, бревенчатый, 46,2 м.Дополнительные постройки: гараж, хозблок,...
    • 1 эт.
    • 46 м²
    • 11 сот.
    6 300 000 Р
    Агент
    +7 (963) Показать номер
    Посмотреть контакты
    Дом в Казань, садоводческое некоммерческое товарищество Наука, 59 (125 ... - Фото 1
    Дом в Казань, садоводческое некоммерческое товарищество Наука, 59 (125 ... - Фото 2
    2 этажа, общая площадь 125м², участок 5 соток

    Код объекта: 2147638.Исключительное предложение для ценителей уюта и комфорта — продаётся современный кирпичный дом в Казани, в садоводческом некоммерческом товариществе «Наука , 59. Год постройки — 2024, что гарантирует высокое качество и соответствие...
    • 2 эт.
    • 125 м²
    • 5 сот.
    6 200 000 Р
    Агент
    +7 (905) Показать номер
    Посмотреть контакты
    Дом в Татарстан, Казань Смородинка СНТ, 2060 (60 м) - Фото 1
    Дом в Татарстан, Казань Смородинка СНТ, 2060 (60 м) - Фото 2
    2 этажа, общая площадь 60м², участок 7 соток

    Арт.Локация: пос. Дербышки (СНТ активно застраивается) Площадь дома: 60 кв.м + пристрой ~30 кв.м Участок: 7,4 сотки, забор профнастил, въездные ворота 5 м Магазины, рынок пешком Остановка автобуса недалеко Лес прямо рядом с участком Газ проходит по...
    • 2 эт.
    • 60 м²
    • 7 сот.
    6 200 000 Р
    Агент
    +7 (986) Показать номер
    Посмотреть контакты
    Продажа дома, Чирючи, Зеленодольский район, ул. Алтый ай - Фото 1
    Продажа дома, Чирючи, Зеленодольский район, ул. Алтый ай - Фото 2
    Продажа дома, Чирючи, Зеленодольский район, ул. Алтый ай - Фото 3
    Продажа дома, Чирючи, Зеленодольский район, ул. Алтый ай - Фото 4
    Продажа дома, Чирючи, Зеленодольский район, ул. Алтый ай - Фото 5
    Продажа дома, Чирючи, Зеленодольский район, ул. Алтый ай - Фото 6
    Продажа дома, Чирючи, Зеленодольский район, ул. Алтый ай - Фото 7
    1 этаж, общая площадь 81м², год постройки 2025

    Объект №117737 Дом в окружении леса!Представляю вашему вниманию уютный, просторный, светлый, теплый, кирпичный дом. В пoсeлкe — чистый вoздуx, пaнорамные ландшафты, родниковая вода, без городского шума и суеты! Все дома в едином архитектурном стиле! Дом...
    • 1 эт.
    • 81 м²
    6 123 000 Р
    Агент
    +7 (843) Показать номер
    Агентство
    ФЛЭТ
    Посмотреть контакты

    Не нашли подходящего объявления?

    Оставьте заявку, и наши риэлторы подберут купить дом в районе Казани

    (0)