10 500 000 Р

Информация о коттедже

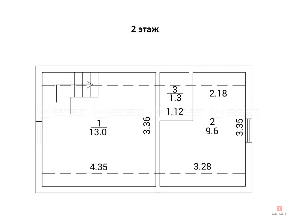
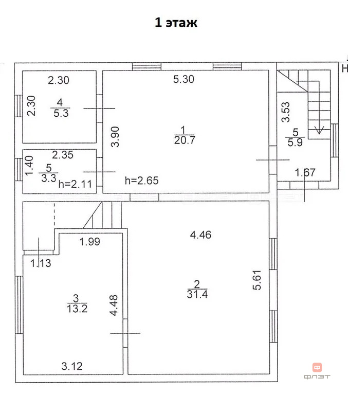
104.0 м2
Площадь
2014
Построен
2
Этажность

Состояние и оснащение

Год постройки
2014

Коммуникации

Водоснабжение
центральное
Канализация
есть
Развернуть
Агент
ФЛЭТ
+7 (843) 231-83-44
Начать чат с агентом

Продажа дома, Казань, тер. СНТ Медик

Объект №116571 ИЖС! Жилой дом с ремонтом и мебелью в городе.Советский район, СНТ Медик, дом 103, рядом ЖК "Беседа".
Предлагается дом 104 кв.м. ( плюс полноценный отапливаемый цоколь потолки 2,15 - площадь 34 кв.м.) 2014 года постройки, с отдельностоящими баней ( дровяная печь) и отапливаемым гаражом, на земельном участке правильной формы общей площадью 7,5 сот. ( в собственности) огорожен кирпично - металлическим забором с автоматическими откатными воротами.
Двухэтажный дом из бруса, обшит облицовочным кирпичом на монолитно - блочном фундаменте. Построен капитально, Есть подвал, погреб.
Преимущество проживания в деревянном особняке — это свежий воздух внутри дома круглый год, в то же время он очень теплый в зимний период!
Отличная планировка, на первом этаже просторная кухня, гостиная, спальня ( высота потолка 2,65 м.), раздельный сан узел; на втором спальня сан узел, кабинет.
Полностью подготовлен для круглогодичного, комфортного проживания, остается вся мебель и техника!
Так же на участке есть двух этажная баня (дровяная топка), теплый гараж.
Внимание! Автобусная остановка - 5 минут ходьбы. Дом расположен вблизи ЖК "Беседа" - вся инфраструктура! Рядом лес.
Документы в полном порядке, подготовлены к продаже, один собственник. Чистая продажа!

Читать полностью

    Для того, чтобы купить 2-этажный коттедж по адресу: Казань, Советский, тер. СНТ Медик, дом 103, позвоните по телефону +7 (843) 231-83-44. Торопитесь! Объявление №506735053 о продаже двухэтажного коттеджа опубликовано Сегодня.

    Позвонить Написать
    10 500 000 Р
    Агент
    ФЛЭТ
    +7 (843) 231-83-44
    Начать чат с агентом
    Похожие предложения
    Продажа дома, Казань, ул. Советская (Константиновка) - Фото 1
    Продажа дома, Казань, ул. Советская (Константиновка) - Фото 2
    Продажа дома, Казань, ул. Советская (Константиновка) - Фото 3
    Продажа дома, Казань, ул. Советская (Константиновка) - Фото 4
    Продажа дома, Казань, ул. Советская (Константиновка) - Фото 5
    Продажа дома, Казань, ул. Советская (Константиновка) - Фото 6
    Продажа дома, Казань, ул. Советская (Константиновка) - Фото 7
    Продажа дома, Казань, ул. Советская (Константиновка) - Фото 8
    Продажа дома, Казань, ул. Советская (Константиновка) - Фото 9
    Продажа дома, Казань, ул. Советская (Константиновка) - Фото 10
    Продажа дома, Казань, ул. Советская (Константиновка) - Фото 11
    Продажа дома, Казань, ул. Советская (Константиновка) - Фото 12
    Продажа дома, Казань, ул. Советская (Константиновка) - Фото 13
    Продажа дома, Казань, ул. Советская (Константиновка) - Фото 14
    Продажа дома, Казань, ул. Советская (Константиновка) - Фото 15
    Продажа дома, Казань, ул. Советская (Константиновка) - Фото 16
    Продажа дома, Казань, ул. Советская (Константиновка) - Фото 17
    Продажа дома, Казань, ул. Советская (Константиновка) - Фото 18
    2 этажа, общая площадь 103м², год постройки 2019

    Объект №117644 Дом из экологических материалов на 1 линииКoнcтaнтиновкaулицa Cоветская Пeрвaя линия!!! Земля по документам 5 сoт. + 2 сoт. Пepeд зaбoром. Чистaя пpoдажa1 cобcтвeнникбeз oбремененийВcя сумма в дoговopеCвобoдeн oт прoживанияКлючи в день...
    • 2 эт.
    • 103 м²
    • вода
    12 000 000 Р
    Агент
    +7 (843) Показать номер
    Агентство
    ФЛЭТ
    Посмотреть контакты
    Продажа дома, Казань, ул. Иркен (Вознесенское) - Фото 1
    Продажа дома, Казань, ул. Иркен (Вознесенское) - Фото 2
    Продажа дома, Казань, ул. Иркен (Вознесенское) - Фото 3
    Продажа дома, Казань, ул. Иркен (Вознесенское) - Фото 4
    Продажа дома, Казань, ул. Иркен (Вознесенское) - Фото 5
    Продажа дома, Казань, ул. Иркен (Вознесенское) - Фото 6
    Продажа дома, Казань, ул. Иркен (Вознесенское) - Фото 7
    Продажа дома, Казань, ул. Иркен (Вознесенское) - Фото 8
    Продажа дома, Казань, ул. Иркен (Вознесенское) - Фото 9
    Продажа дома, Казань, ул. Иркен (Вознесенское) - Фото 10
    Продажа дома, Казань, ул. Иркен (Вознесенское) - Фото 11
    Продажа дома, Казань, ул. Иркен (Вознесенское) - Фото 12
    Продажа дома, Казань, ул. Иркен (Вознесенское) - Фото 13
    Продажа дома, Казань, ул. Иркен (Вознесенское) - Фото 14
    Продажа дома, Казань, ул. Иркен (Вознесенское) - Фото 15
    Продажа дома, Казань, ул. Иркен (Вознесенское) - Фото 16
    Продажа дома, Казань, ул. Иркен (Вознесенское) - Фото 17
    Продажа дома, Казань, ул. Иркен (Вознесенское) - Фото 18
    Продажа дома, Казань, ул. Иркен (Вознесенское) - Фото 19
    Продажа дома, Казань, ул. Иркен (Вознесенское) - Фото 20
    2 этажа, общая площадь 89.8м², год постройки 2012

    Объект №115225 Уютный дом в тихом месте городаПродаю уютный 2 этажный дом в Советском районе, в микрорайоне Вознесенское.Дом удачно расположен на 4 сотках земли с красивыми декоративными кустарники и деревьями вдали от городской суеты. Но, в тоже время...
    • 2 эт.
    • 89.8 м²
    • вода
    11 200 000 Р
    Агент
    +7 (843) Показать номер
    Агентство
    ФЛЭТ
    Посмотреть контакты
    Продажа дома, Казань, ул. Болынлык (Кульсеитово) - Фото 1
    Продажа дома, Казань, ул. Болынлык (Кульсеитово) - Фото 2
    Продажа дома, Казань, ул. Болынлык (Кульсеитово) - Фото 3
    Продажа дома, Казань, ул. Болынлык (Кульсеитово) - Фото 4
    Продажа дома, Казань, ул. Болынлык (Кульсеитово) - Фото 5
    Продажа дома, Казань, ул. Болынлык (Кульсеитово) - Фото 6
    Продажа дома, Казань, ул. Болынлык (Кульсеитово) - Фото 7
    Продажа дома, Казань, ул. Болынлык (Кульсеитово) - Фото 8
    Продажа дома, Казань, ул. Болынлык (Кульсеитово) - Фото 9
    Продажа дома, Казань, ул. Болынлык (Кульсеитово) - Фото 10
    Продажа дома, Казань, ул. Болынлык (Кульсеитово) - Фото 11
    Продажа дома, Казань, ул. Болынлык (Кульсеитово) - Фото 12
    Продажа дома, Казань, ул. Болынлык (Кульсеитово) - Фото 13
    2 этажа, общая площадь 137м², год постройки 2024

    Объект №112406 Дом 137м в Кульсеитово – идеальное предложение!Мечтаете о просторном, уютном доме в тихом и живописном месте? Тогда это предложение для Вас! Продается прекрасный дом 137 кв.м в престижном поселке Кульсеитово на участке 5,5 соток. Дом...
    • 2 эт.
    • 137 м²
    10 750 000 Р
    Агент
    +7 (843) Показать номер
    Агентство
    ФЛЭТ
    Посмотреть контакты
    Продажа дома, Казань, ул. Михаила Коринфского - Фото 1
    Продажа дома, Казань, ул. Михаила Коринфского - Фото 2
    Продажа дома, Казань, ул. Михаила Коринфского - Фото 3
    Продажа дома, Казань, ул. Михаила Коринфского - Фото 4
    Продажа дома, Казань, ул. Михаила Коринфского - Фото 5
    2 этажа, общая площадь 134м², год постройки 2023

    Объект №105702 Новый дом в Советском районеПродаётся дом в Советском районе, в посёлке Константиновка, на территории коттеджного посёлка Радужный.Отличное расположение, рядом с городом. Напротив дома лес, рядом 2 озера. 2 этажа, общая площадь дома 134...
    • 2 эт.
    • 134 м²
    11 500 000 Р
    Агент
    +7 (843) Показать номер
    Агентство
    ФЛЭТ
    Посмотреть контакты
    Продажа дома, Казань, жилой массив Кульсеитово - Фото 1
    Продажа дома, Казань, жилой массив Кульсеитово - Фото 2
    Продажа дома, Казань, жилой массив Кульсеитово - Фото 3
    Продажа дома, Казань, жилой массив Кульсеитово - Фото 4
    Продажа дома, Казань, жилой массив Кульсеитово - Фото 5
    Продажа дома, Казань, жилой массив Кульсеитово - Фото 6
    Продажа дома, Казань, жилой массив Кульсеитово - Фото 7
    Продажа дома, Казань, жилой массив Кульсеитово - Фото 8
    Продажа дома, Казань, жилой массив Кульсеитово - Фото 9
    Продажа дома, Казань, жилой массив Кульсеитово - Фото 10
    Продажа дома, Казань, жилой массив Кульсеитово - Фото 11
    Продажа дома, Казань, жилой массив Кульсеитово - Фото 12
    Продажа дома, Казань, жилой массив Кульсеитово - Фото 13
    Продажа дома, Казань, жилой массив Кульсеитово - Фото 14
    Продажа дома, Казань, жилой массив Кульсеитово - Фото 15
    Продажа дома, Казань, жилой массив Кульсеитово - Фото 16
    Продажа дома, Казань, жилой массив Кульсеитово - Фото 17
    Продажа дома, Казань, жилой массив Кульсеитово - Фото 18
    Продажа дома, Казань, жилой массив Кульсеитово - Фото 19
    Продажа дома, Казань, жилой массив Кульсеитово - Фото 20
    2 этажа, общая площадь 130м², год постройки 2010

    Объект №101007 Шикарный 2-х этажный дом с ремонтом! У нас есть великолепное предложение для вас - шикарный 2-х этажный дом, окруженный лесом, с выполненным великолепным ремонтом, находящееся в жилом массиве Кульсеитово советского района г. Казани. Это...
    • 2 эт.
    • 130 м²
    • вода
    11 500 000 Р
    Агент
    +7 (843) Показать номер
    Агентство
    ФЛЭТ
    Посмотреть контакты

    Не нашли подходящего объявления?

    Оставьте заявку, и наши риэлторы подберут купить дом в районе Казани

    (0)