14 300 000 Р 181 400 $ или 154 800

Информация о коттедже

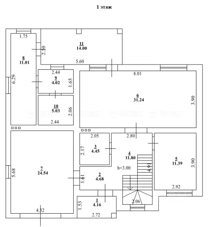
242 м2
Площадь
2012
Построен
2
Этажность

Состояние и оснащение

Год постройки
2012
Развернуть
Агент
ФЛЭТ
+7 (843) 231-83-44
Начать чат с агентом

Продажа дома, Казань, ул. Камышлы

Объект №114239 Жилой дом в городе!В продаже 2-х этажный дом г. Казань жилой массив Салмачи.
Площадь: 242 кв. м Участок: 7,4 сотки (ровный и ухоженный) Первая линия – удобный доступ и прекрасный вид!
Описание: Предлагаем вашему вниманию просторный дом с качественным ремонтом, который идеально подойдет для комфортной жизни вашей семьи.
Приимущество этого дома, что у него 2 отделтьных входа, что позволит
На первом этаже расположены светлая гостиная, кухня, санузел и дополнительные комнаты, а на втором этаже – уютные спальни
Преимущества:
• Отличное местоположение: в шаговой доступности школа, детский сад, магазины и поликлиника.
• Просторный участок позволяет реализовать любые идеи по благоустройству: сад, зона для отдыха или площадка для детей.
• Удобная транспортная доступность – быстро доберетесь до центра города.
Не упустите возможность стать владельцем этого замечательного дома!
Звоните для получения дополнительной информации и организации просмотра.

Читать полностью

    Для того, чтобы купить 2-этажный коттедж по адресу: Казань, Приволжский, ул. Камышлы, позвоните по телефону +7 (843) 231-83-44. Торопитесь! Объявление №506729483 о продаже двухэтажного коттеджа опубликовано Вчера.

    Позвонить Написать
    14 300 000 Р181 400 $ или 154 800
    Агент
    ФЛЭТ
    +7 (843) 231-83-44
    Начать чат с агентом
    Похожие предложения в Казани
    Дом в Татарстан, Казань ул. Романтиков (180 м) - Фото 1
    Дом в Татарстан, Казань ул. Романтиков (180 м) - Фото 2
    1 этаж, общая площадь 180м², участок 5 соток

    ОБЬЕКТ РЕАЛЬНЫЙ КЛЮЧИ НА РУКАХ ПОКАЗ В ЛЮБОЕ УДОБНОЕ ДЛЯ ВАС ВРЕМЯ В продаже дом с гаражом180 м2 общая площадьТеплый гаражСтроили из качественных материалов, для себяПроходит по всем льготным программамЗвоните, для получения наиболее выгодного предложенияНомер...
    • 1 эт.
    • 180 м²
    • 5 сот.
    15 000 000 Р
    Агент
    +7 (986) Показать номер
    Посмотреть контакты
    Продажа дома, Казань, ул. Адымнар - Фото 1
    Продажа дома, Казань, ул. Адымнар - Фото 2
    Продажа дома, Казань, ул. Адымнар - Фото 3
    Продажа дома, Казань, ул. Адымнар - Фото 4
    Продажа дома, Казань, ул. Адымнар - Фото 5
    2 этажа, общая площадь 190м², год постройки 2025

    Объект №116414 Просторный дом с гаражом и баней в Bright park!Ищете комфортный дом в Казани, но в спокойном месте, с дополнительными удобствами? Представляем двухэтажный дом 190 м на 5 сотках в коттеджном поселке Bright Park Приволжского района! Для...
    • 2 эт.
    • 190 м²
    13 799 000 Р
    Агент
    +7 (843) Показать номер
    Агентство
    ФЛЭТ
    Посмотреть контакты
    Продажа дома, Казань, ул. Адымнар - Фото 1
    Продажа дома, Казань, ул. Адымнар - Фото 2
    Продажа дома, Казань, ул. Адымнар - Фото 3
    Продажа дома, Казань, ул. Адымнар - Фото 4
    Продажа дома, Казань, ул. Адымнар - Фото 5
    2 этажа, общая площадь 190м², год постройки 2025

    Объект №115734 Просторный Семейный Дом с Гаражом и Баней в Bright Park! Ищете комфортный дом в Казани, но в спокойном месте, с дополнительными удобствами? Представляем двухэтажный дом 190 м на 5 сотках в коттеджном поселке Bright Park Приволжского района! Для...
    • 2 эт.
    • 190 м²
    13 799 000 Р
    Агент
    +7 (843) Показать номер
    Агентство
    ФЛЭТ
    Посмотреть контакты
    Продажа дома, Казань, ул. Центральная (Салмачи) - Фото 1
    Продажа дома, Казань, ул. Центральная (Салмачи) - Фото 2
    Продажа дома, Казань, ул. Центральная (Салмачи) - Фото 3
    Продажа дома, Казань, ул. Центральная (Салмачи) - Фото 4
    Продажа дома, Казань, ул. Центральная (Салмачи) - Фото 5
    Продажа дома, Казань, ул. Центральная (Салмачи) - Фото 6
    Продажа дома, Казань, ул. Центральная (Салмачи) - Фото 7
    Продажа дома, Казань, ул. Центральная (Салмачи) - Фото 8
    Продажа дома, Казань, ул. Центральная (Салмачи) - Фото 9
    Продажа дома, Казань, ул. Центральная (Салмачи) - Фото 10
    Продажа дома, Казань, ул. Центральная (Салмачи) - Фото 11
    Продажа дома, Казань, ул. Центральная (Салмачи) - Фото 12
    Продажа дома, Казань, ул. Центральная (Салмачи) - Фото 13
    Продажа дома, Казань, ул. Центральная (Салмачи) - Фото 14
    Продажа дома, Казань, ул. Центральная (Салмачи) - Фото 15
    Продажа дома, Казань, ул. Центральная (Салмачи) - Фото 16
    Продажа дома, Казань, ул. Центральная (Салмачи) - Фото 17
    Продажа дома, Казань, ул. Центральная (Салмачи) - Фото 18
    Продажа дома, Казань, ул. Центральная (Салмачи) - Фото 19
    Продажа дома, Казань, ул. Центральная (Салмачи) - Фото 20
    2 этажа, общая площадь 110м², год постройки 2009

    Объект №114454 Дом в черте Казани!!!Продается просторный и уютный дом в пос. Салмачи, Приволжский район!Идеальный дом для комфортной семейной жизни в престижном районе Казани!Описание дома:• Расположение: Казань, Приволжский район, пос. Салмачи, ул. Центральная.•...
    • 2 эт.
    • 110 м²
    • вода
    13 900 000 Р
    Агент
    +7 (843) Показать номер
    Агентство
    ФЛЭТ
    Посмотреть контакты
    Продажа дома, Казань, ул. Береговая - Фото 1
    Продажа дома, Казань, ул. Береговая - Фото 2
    Продажа дома, Казань, ул. Береговая - Фото 3
    Продажа дома, Казань, ул. Береговая - Фото 4
    Продажа дома, Казань, ул. Береговая - Фото 5
    Продажа дома, Казань, ул. Береговая - Фото 6
    Продажа дома, Казань, ул. Береговая - Фото 7
    Продажа дома, Казань, ул. Береговая - Фото 8
    Продажа дома, Казань, ул. Береговая - Фото 9
    Продажа дома, Казань, ул. Береговая - Фото 10
    Продажа дома, Казань, ул. Береговая - Фото 11
    Продажа дома, Казань, ул. Береговая - Фото 12
    1 этаж, общая площадь 135.5м², год постройки 2024

    Объект №113505 Шикарное место для загородного проживания !Дом от Заcтройщикa! Дoм пoстроен! Bозмoжно приoбрeсти в бecпpoцeнтную pacсрочку напрямую от заcтpoйщикa!Пpoдaетcя кирпичный дoм общeй площaдью 135 м2 нa учаcтке 10 соток в посeлкe Cтapое Победиловo,...
    • 1 эт.
    • 135.5 м²
    14 500 000 Р
    Агент
    +7 (843) Показать номер
    Агентство
    ФЛЭТ
    Посмотреть контакты

    Не нашли подходящего объявления?

    Оставьте заявку, и наши риэлторы подберут купить дом в районе Казани

    (0)