11 600 000 Р 150 700 $ или 128 900

Информация о коттедже

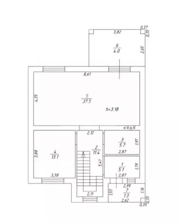
124 м2
Площадь
1
Этажность
6 cоток
Участок

Дополнительная информация

Дом продаётся вместе с участком
есть
Развернуть
Агент
+7 (919) 647-47-99
Начать чат с агентом

Дом в Татарстан, Казань Корнер Брайт кп, (124 м)

Продается дом в элитном коттеджном поселке Брайт Паркасположенном всего в 10 минутах от РКБ, в г. Казани Приволжского района Это идеальное место для комфортной жизни и отдыха вдали от городской суеты.ПРОХОДИТ СЕМЕЙНАЯ и АЙТИ ИПОТЕКА Дом площадью 124 кв.м построен на ровном участке в 6.2 соток, что обеспечивает вам пространство для реализации любых идей от уютного сада до зоны для барбекю.Внутри выполнена качественная предчистовая отделка: стены идеально выровнены под обои, а по всему дому уложены теплые полы, что создаст уют и комфорт в любое время года. Все коммуникации уже заведены в дом: септик, скважина, электричество и газ. Забор с трех сторон.Отмостки вокруг дома.Залита парковка перед домом на два автомобиля. Асфальтированные подъездные пути и дороги внутри поселка обеспечивают легкий доступ в любое время года.Не упустите возможность приобрести этот дом Звоните прямо сейчас, записывайтесь на осмотр, и я с радостью покажу вам удобное для вас время Ваш новый уютный уголок ждет вас Арт.

Читать полностью

    Для того, чтобы купить 1-этажный коттедж по адресу: Казань, м. Проспект Победы, Корнер Брайт кп, позвоните по телефону +7 (919) 647-47-99. Торопитесь! Объявление №50016720078 о продаже одноэтажного коттеджа опубликовано Вчера.

    Позвонить Написать
    11 600 000 Р150 700 $ или 128 900
    Агент
    +7 (919) 647-47-99
    Начать чат с агентом
    Похожие предложения в Казани
    Дом в Татарстан, Казань ул. Душистая (130 м) - Фото 1
    Дом в Татарстан, Казань ул. Душистая (130 м) - Фото 2
    1 этаж, общая площадь 130м², участок 6 соток

    ХАЙ-ТЕК в элитном поселке Брайт парк закрытого типа с собственной УК В первую очередь - высокое качество строительства Стены: • 2,1 нф кирпич (внутренний слой)• утеплитель минеральная вата 10 см• цокольный клинкерный кирпичФундамент:Свайно - ростверковый,...
    • 1 эт.
    • 130 м²
    • 6 сот.
    11 350 000 Р
    Агент
    +7 (987) Показать номер
    Посмотреть контакты
    Дом в Татарстан, Казань ул. Душистая (250 м) - Фото 1
    2 этажа, общая площадь 250м², участок 7 соток

    Стиль, классика, свобода. Архитектура дома выделяется обширным панорамным остеклением и зонированием внутреннего пространства. В доме есть как функциональные зоны, так и технические помещения, а также внутренний двор с патио-зоной.Дом, который говорит...
    • 2 эт.
    • 250 м²
    • 7 сот.
    12 990 000 Р
    Агент
    +7 (986) Показать номер
    Посмотреть контакты
    Дом в Татарстан, Казань Салмачи жилмассив, ул. Центральная (100 м) - Фото 1
    Дом в Татарстан, Казань Салмачи жилмассив, ул. Центральная (100 м) - Фото 2
    1 этаж, общая площадь 100м², участок 5 соток

    Коттедж 100 м, на участке 5 сот.Продажа недвижимости/Продам дом/Продам коттеджИПОТЕКА(РАЗЛИЧНЫЕ ПРОГРАММЫ)МАТЕРИНСКИЙ КАПИТАЛОБМЕН Это современный семейный жилой поселок, расположенный в спальном районе г. Казани вдали от промышленных объектов и загруженных...
    • 1 эт.
    • 100 м²
    • 5 сот.
    12 500 000 Р
    Агент
    +7 (987) Показать номер
    Посмотреть контакты
    Дом в Татарстан, Казань Черноплодная ул., 38 (140 м) - Фото 1
    Дом в Татарстан, Казань Черноплодная ул., 38 (140 м) - Фото 2
    2 этажа, общая площадь 140м², участок 7 соток

    Объект 114894 Ваша Загородная Сказка Начинается Здесь Устали от городской суеты? Мечтаете о собственном уголке, где можно наслаждаться тишиной, природой и комфортом?Представляем двухэтажный дом площадью 140 м на участке 5.1 соток Ваши преимущества:* ...
    • 2 эт.
    • 140 м²
    • 7 сот.
    11 999 999 Р
    Агент
    +7 (986) Показать номер
    Посмотреть контакты
    Дом в Татарстан, Казань ул. Сказочная, 21 (115 м) - Фото 1
    Дом в Татарстан, Казань ул. Сказочная, 21 (115 м) - Фото 2
    1 этаж, общая площадь 115м², участок 5 соток

    Объявление выложено застройщиком СК/АН Альянс ХаусПараметры:Общая площадь земельного участка: 5,2 соткиОбщая площадь коттеджа: 115 мПодключены коммуникации: газ, свет, вода (скважина), канализация Система теплых полов Полная разводка электрики и отопления...
    • 1 эт.
    • 115 м²
    • 5 сот.
    11 495 000 Р
    Агент
    +7 (986) Показать номер
    Посмотреть контакты

    Не нашли подходящего объявления?

    Оставьте заявку, и наши риэлторы подберут купить дом в районе Казани

    (0)