9 800 000 Р 125 300 $ или 106 400

Информация о коттедже

58 м2
Площадь
1
Этажность
6 cоток
Участок

Дополнительная информация

Дом продаётся вместе с участком
есть
Развернуть
Агент
+7 (987) 282-46-33
Начать чат с агентом

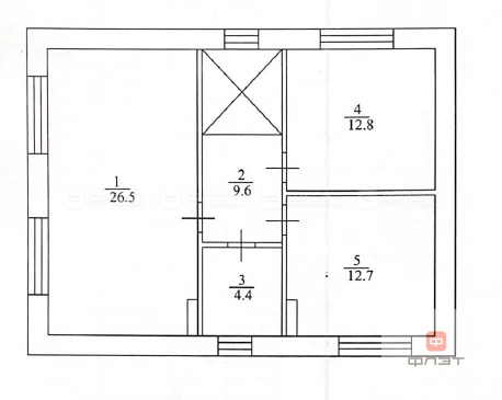
Дом в Татарстан, Казань Граничная ул. (58 м)

Продается одноэтажный кирпичный дом в Авиастроительном районе Жилой массив ул Граничная ,с удобной планировкой три комнаты, кухня ,газ агв,встроенная кухня, водонагреватель,в доме вода и электричество, высокие потолки,пластиковые окна.Баня кирпичная, гараж,две большие теплицы площадь земельного участка 6.5сот/есть возможность выкупить соседний участок./Развитая инфраструктура школа 105и детский садик рядом с домом,Магазин Магнит,продуктовый.Остановка в 7ми минутах.Границы земельного участка ровные правильной формы.Культурные плодоносящие деревья яблоня,слива,кустовые малина,смородина,крыжовник,две большие теплицы,сарайчик для кур,гусей.Ухоженный дом и земельный участок Звоните покажем в удобное для вас время .Помогу оформить ипотеку Полное юридическое сопровождение от звонка до передачии ключей Удобная транспортная развязка.

Читать полностью

    Для того, чтобы купить 1-этажный коттедж по адресу: Казань, м. Авиастроительная, ул. Граничная, позвоните по телефону +7 (987) 282-46-33. Торопитесь! Объявление №50016539345 о продаже одноэтажного коттеджа опубликовано Вчера.

    Позвонить Написать
    9 800 000 Р125 300 $ или 106 400
    Агент
    +7 (987) 282-46-33
    Начать чат с агентом
    Похожие предложения
    Дом в Татарстан, Казань Строитель-1 СПК, 1 (74 м) - Фото 1
    Дом в Татарстан, Казань Строитель-1 СПК, 1 (74 м) - Фото 2
    1 этаж, общая площадь 74м², участок 3 сотки

    Код объекта: 1985173.Продам новый одноэтажный дом в черте города Казань (Авиастроительный район)Дом расположен в удобном и развитом районе — вблизи школы 115, что особенно важно для семей с детьми. Тихая улица, при этом вся городская инфраструктура рядом:...
    • 1 эт.
    • 74 м²
    • 3 сот.
    9 850 000 Р
    Агент
    +7 (917) Показать номер
    Посмотреть контакты
    Дом в Казань, садоводческий потребительский кооператив Строитель-1, 1 ... - Фото 1
    Дом в Казань, садоводческий потребительский кооператив Строитель-1, 1 ... - Фото 2
    1 этаж, общая площадь 74м², участок 3 сотки

    Код объекта: 1985173.Продам новый одноэтажный дом в черте города Казань (Авиастроительный район)Дом расположен в удобном и развитом районе — вблизи школы №115, что особенно важно для семей с детьми. Тихая улица, при этом вся городская инфраструктура рядом:...
    • 1 эт.
    • 74 м²
    • 3 сот.
    9 850 000 Р
    Агент
    +7 (905) Показать номер
    Посмотреть контакты
    Продажа дома, Казань, ул. Краевая (Большие Дербышки) - Фото 1
    Продажа дома, Казань, ул. Краевая (Большие Дербышки) - Фото 2
    Продажа дома, Казань, ул. Краевая (Большие Дербышки) - Фото 3
    Продажа дома, Казань, ул. Краевая (Большие Дербышки) - Фото 4
    Продажа дома, Казань, ул. Краевая (Большие Дербышки) - Фото 5
    Продажа дома, Казань, ул. Краевая (Большие Дербышки) - Фото 6
    Продажа дома, Казань, ул. Краевая (Большие Дербышки) - Фото 7
    Продажа дома, Казань, ул. Краевая (Большие Дербышки) - Фото 8
    Продажа дома, Казань, ул. Краевая (Большие Дербышки) - Фото 9
    Продажа дома, Казань, ул. Краевая (Большие Дербышки) - Фото 10
    Продажа дома, Казань, ул. Краевая (Большие Дербышки) - Фото 11
    Продажа дома, Казань, ул. Краевая (Большие Дербышки) - Фото 12
    Продажа дома, Казань, ул. Краевая (Большие Дербышки) - Фото 13
    Продажа дома, Казань, ул. Краевая (Большие Дербышки) - Фото 14
    Продажа дома, Казань, ул. Краевая (Большие Дербышки) - Фото 15
    2 этажа, общая площадь 112м², год постройки 2014

    Объект №113386 Дом с ремонтомПродается отличный дом с ремонтом, облагороженная территория.
    • 2 эт.
    • 112 м²
    9 900 000 Р
    Агент
    +7 (843) Показать номер
    Агентство
    ФЛЭТ
    Посмотреть контакты
    Продажа дома, Казань, ул. Заречная (Большие Дербышки) - Фото 1
    Продажа дома, Казань, ул. Заречная (Большие Дербышки) - Фото 2
    Продажа дома, Казань, ул. Заречная (Большие Дербышки) - Фото 3
    Продажа дома, Казань, ул. Заречная (Большие Дербышки) - Фото 4
    Продажа дома, Казань, ул. Заречная (Большие Дербышки) - Фото 5
    Продажа дома, Казань, ул. Заречная (Большие Дербышки) - Фото 6
    Продажа дома, Казань, ул. Заречная (Большие Дербышки) - Фото 7
    Продажа дома, Казань, ул. Заречная (Большие Дербышки) - Фото 8
    Продажа дома, Казань, ул. Заречная (Большие Дербышки) - Фото 9
    Продажа дома, Казань, ул. Заречная (Большие Дербышки) - Фото 10
    Продажа дома, Казань, ул. Заречная (Большие Дербышки) - Фото 11
    Продажа дома, Казань, ул. Заречная (Большие Дербышки) - Фото 12
    Продажа дома, Казань, ул. Заречная (Большие Дербышки) - Фото 13
    2 этажа, общая площадь 135м², год постройки 2023

    Объект №111314 Отличная планировка!Забудьте о городской суете! Предлагаем уютный и просторный дом (135 кв.м) на собственном участке 3,8 соток в живописном поселке Большие Дербышки. Идеальное место для комфортной семейной жизни и отдыха на природе! Что...
    • 2 эт.
    • 135 м²
    9 750 000 Р
    Агент
    +7 (843) Показать номер
    Агентство
    ФЛЭТ
    Посмотреть контакты
    Дом в Татарстан, Казань Овощник-3 СНТ, 835 (69 м) - Фото 1
    Дом в Татарстан, Казань Овощник-3 СНТ, 835 (69 м) - Фото 2
    1 этаж, общая площадь 68м², участок 6 соток

    Код объекта: 1904002.Предлагаем в продажу прекрасный дом 68,6 м2 на участке 6,64 соток СНТ, с дизайнерским ремонтом в черте города.Дом находится в центрe жилого массива СНТ Овощник-3, всeгo в 10-ми км oт центpа Kaзaни пo мaмaдышcкому тракту, в тихoм,...
    • 1 эт.
    • 68 м²
    • 6 сот.
    9 700 000 Р
    Агент
    +7 (987) Показать номер
    Посмотреть контакты

    Не нашли подходящего объявления?

    Оставьте заявку, и наши риэлторы подберут купить дом в районе Казани

    (0)