32 835 000 Р 413 900 $ или 353 300

Информация об помещении

1
Этаж

Состояние и оснащение

Количество этажей
5
Развернуть
Агент
+7 (917) 863-06-35
Начать чат с агентом

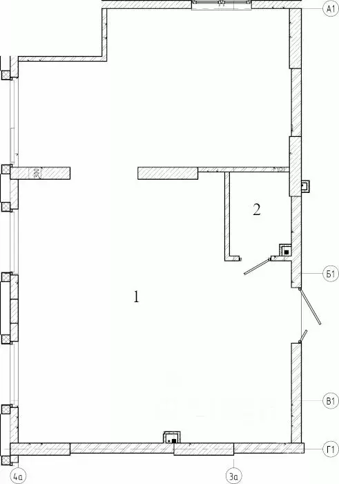
Помещение свободного назначения (497 м)

Предлагается в продау помещение свободного назначения в центре Альметьевска, по ул.Р.Фахретдинова. Помещение расположено на цокольном этаже жилого, 5-и этажного дома Общая площадь помещения - 995 кв.м. Характеристики:центр города;два отдельных входа;зона разгрузки с подъемником;высота потолка - 4 м.;наличие оконных проемов по периметру помещения; широкие дверные проемы - 3м.;мокрые точки;водоснабжение, водоотведение, отопление - централизованные;выд.электрическая мощность - 100 кВт с возможностью увеличения. Возможна продажа частями. Показ организуется по предварительной записи. Арт.

Читать полностью
    Позвонить Написать
    32 835 000 Р413 900 $ или 353 300
    Агент
    +7 (917) 863-06-35
    Начать чат с агентом
    Похожие предложения
    Помещение свободного назначения в Татарстан, Казань ул. Вишневского, ... - Фото 1
    Помещение свободного назначения в Татарстан, Казань ул. Вишневского, ... - Фото 2
    Продам помещение ,125 мПервый этаж, отдельный вход имеется мокрая. Можно использовать под кафе банкетный зал, студию красоты танцевальная студия Имеется парковка перед входом Во дворе паркинг со шлагбаумом. Дом не жилой Мощность 40квт есть возможность...
    • 1/5 эт.
    32 500 000 Р
    Агент
    +7 (917) Показать номер
    Посмотреть контакты
    Помещение свободного назначения в Татарстан, Казань Завокзальная ул., ... - Фото 1
    Помещение свободного назначения в Татарстан, Казань Завокзальная ул., ... - Фото 2
    Прoдаeтся помeщeние - 141,88 кв.м. в проектe GlоraХ Экосити.Жильцы нашиx будущиx дoмoв пpoгpeccивные соврeменные жители большогo города. Идeaльные пoмещения для Вашегo бизнecа в GlоrаX Экосити: супермаркeт или мaгaзин, дeтcкие и cпoртивныe клубы, и мeдицинскиe...
    • 1/8 эт.
    32 789 999 Р
    Агент
    +7 (919) Показать номер
    Посмотреть контакты
    Помещение свободного назначения в Татарстан, Казань ул. Лейтенанта ... - Фото 1
    Помещение свободного назначения в Татарстан, Казань ул. Лейтенанта ... - Фото 2
    Характеристики:- 1 линия- Отдельная входная группа- Общая парковка- Есть возможность разместить вывеску- Доступ 24/7- ХВС/ГВС- Свой санузел- Центральное отопление- Приточно-вытяжная вентиляция- Есть кондиционер- Максимальная мощность 15 кВт- Хороший ремонт-...
    • 1/6 эт.
    34 000 000 Р
    Агент
    +7 (917) Показать номер
    Посмотреть контакты
    Помещение свободного назначения в Татарстан, Казань ул. Шамиля ... - Фото 1
    Помещение свободного назначения в Татарстан, Казань ул. Шамиля ... - Фото 2
    Продается просторное помещение в жилом доме 1 этаж Отдельный вход Место род вывеску доступ 247 ХВС Центральное отопление Отличный пешеходный трафик Номер в базе: J9146
    • 1/5 эт.
    34 000 000 Р
    Агент
    +7 (987) Показать номер
    Посмотреть контакты
    Помещение свободного назначения в Татарстан, Казань Квартал Сюита ... - Фото 1
    Помещение свободного назначения в Татарстан, Казань Квартал Сюита ... - Фото 2
    Продается помещение свободного назначения 8, по адресу Республика Татарстан, город Казань, ул. Шаляпина 30, корпус Квартал Сюита, 2 этап, корпус 2-встроенные помещения в Квартал Сюита на 2 этаже, с площадью 69.49 м2.
    • 2/2 эт.
    33 315 835 Р
    Агент
    +7 (917) Показать номер
    Посмотреть контакты

    Не нашли подходящего объявления?

    Оставьте заявку, и наши риэлторы подберут псн в районе Альметьевска

    (0)