Реализация объекта недвижимости приостановлена

Информация об помещении

1
Этаж

Состояние и оснащение

Количество этажей
14
Развернуть

Помещение свободного назначения в Татарстан, Альметьевск ул. Бигаш, .

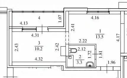
Продаётся коммерческое помещение в нежилом фонде. Общая площадь 88,5кв.м. Помещение расположено на 1 этаже 14 этажного дома.Черновая отделка. Центральное отопление. Электричество есть, напряжение сети 220 В.( 380) Помещение класса A. Отдельный вход . Лот 195588

Читать полностью

    Реализация объекта недвижимости приостановлена

    Не нашли подходящего объявления?

    Оставьте заявку, и наши риэлторы подберут псн в районе Альметьевска

    (0)