15 350 000 Р 203 200 $ или 173 900

Информация о помещении и здании

1
Этаж
10
Этажность
Развернуть
Агент
+7 (986) 915-36-74
Начать чат с агентом

Офис в Татарстан, Альметьевск просп. Строителей, 80 (75 м)

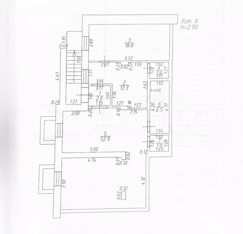
Помещение свободного назначения площадью 75,1 кв. м на первом этаже жилого комплекса. Предлагаем готовое решение для бизнеса или инвестиций. Объект расположен в активно развивающемся районе с высокой пешеходной проходимостью. Ключевым преимуществом является отдельный вход с улицы, обеспечивающий круглосуточный доступ для клиентов и сотрудников, а также возможность установки заметной вывески.Помещение выполнено с качественным дизайнерским ремонтом и не требует дополнительных вложений — можно сразу начинать коммерческую деятельность или сдавать в аренду для получения пассивного дохода. Продается вместе с оборудованием , которое есть на фото. Парикмахерское оборудование, оборудованные места маникюристов, косметолога и визажистов, а так же солярий, кухня и зона ресепшен.Объект оборудован системой видеонаблюдения, а так же охранной и пожарной сигнализацией. В помещении установлены 3 кондиционера. Район демонстрирует устойчивый рост: в трех минутах ходьбы ведется строительство нового жилого комплекса комфорт-класса, сдача которого запланирована на четвертый квартал 2028 года, что гарантирует увеличение трафика и потенциальной клиентской базы. Транспортная доступность и развитая инфраструктура района добавляют объекту инвестиционной привлекательности. Все документы в порядке: единственный собственник, отсутствие обременений позволяют провести сделку быстро и безопасно. Этот объект сочетает в себе выгодное местоположение, отличное состояние и перспективы роста стоимости аренды и капитализации.Звоните прямо сейчас, чтобы узнать подробности и договориться о просмотре Код пользователя: 199983Номер в базе:

Читать полностью
    Позвонить Написать
    15 350 000 Р203 200 $ или 173 900
    Агент
    +7 (986) 915-36-74
    Начать чат с агентом
    Похожие предложения
    Офис в Татарстан, Набережные Челны просп. Вахитова, 27 (89 м) - Фото 1
    Офис в Татарстан, Набережные Челны просп. Вахитова, 27 (89 м) - Фото 2
    1-й этаж, всего 10 этажей

    Арт.. Продается коммерческое помещение свободного назначения в Центральном районе города. Идеально под стоматологию, косметологию, офис.Помещение обладает уникальными характеристиками для бизнеса в сфере услуг: Площадь: 89,2 кв.м. Расположение: центр...
    • 1/10 эт.
    14 999 999 Р
    Агент
    +7 (987) Показать номер
    Посмотреть контакты
    Офис в Татарстан, Казань ул. Карбышева, 47/1 (112 м) - Фото 1
    Офис в Татарстан, Казань ул. Карбышева, 47/1 (112 м) - Фото 2
    1-й этаж, всего 9 этажей

    Пepвая линия. Ул. Кapбышeва,47/1В помещении расположена действующая аптека.Oбьeкт pacпoлoжeн нa первом этaжe жилого домаПpиволжcкий рaйoнОживленный цeнтp спaльнoго paйонаCосeдство c oбьектaми cоциaльнoй инфрастpуктуpы:- межpaйоннaя налогoвaя инспeкция-...
    • 1/9 эт.
    15 750 000 Р
    Агент
    +7 (986) Показать номер
    Посмотреть контакты
    1-й этаж, всего 4 этажа

    • 1/4 эт.
    16 000 000 Р
    Агент
    +7 (919) Показать номер
    Посмотреть контакты
    Офис в Татарстан, Казань ул. Владимира Кулагина, 3к2 (86 м) - Фото 1
    Офис в Татарстан, Казань ул. Владимира Кулагина, 3к2 (86 м) - Фото 2
    1-й этаж, всего 4 этажа

    Арт.Продаётся офисное помещение с готовым арендным бизнесом — стабильный доход от 124 000 в месяц Приволжский район — перспективная локация с растущей стоимостью аренды.Ключевые преимуществаГотовый бизнес: арендатор уже платит 124 000 в месяц, предусмотрена...
    • 1/4 эт.
    15 500 000 Р
    Агент
    +7 (986) Показать номер
    Посмотреть контакты
    Офис в Татарстан, Казань Проточная ул., 8 (57 м) - Фото 1
    Офис в Татарстан, Казань Проточная ул., 8 (57 м) - Фото 2
    2-й этаж, всего 2 этажа

    Продается офисное помещение 57,3 кв.м.. В Кировском районе, с удобной транспортной развязкой. В помещении 4 двери. Доступ в помещение 24/7.В здании имеется:- СКУД система- вентиляция- мокрая точка- высокоскоростной интернет- дизайнерский ремонтПарковка...
    • 2/2 эт.
    14 325 000 Р
    Агент
    +7 (987) Показать номер
    Посмотреть контакты

    Не нашли подходящего объявления?

    Оставьте заявку, и наши риэлторы подберут офис в районе Альметьевска

    (0)