4 100 000 Р 51 420 $ или 44 470

Информация о квартире

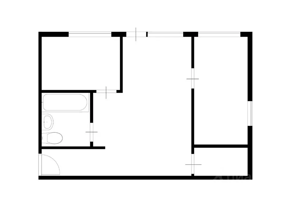
42 м2
Площадь
28 м2
Жилая
5 м2
Кухня
2
Комнаты
2
Этаж
5
Этажность

Дополнительная информация

Тип дома
панельный
Развернуть
Агент
+7 (986) 912-37-06
Начать чат с агентом

2-к кв. Татарстан, Альметьевск ул. Шевченко, 70 (42.6 м)

Квартира расположена на втором этаже панельного дома по улице Шевченко, 70. Объект полностью готов к проживанию благодаря выполненному косметическому ремонту: выровненные и побеленные потолки, мягкое, замененные радиаторы отопления. Все инженерные коммуникации исправны, установлена газовая колонка, обеспечивающая независимое горячее водоснабжение. Все окна выходят на солнечную сторону. Состояние квартиры позволяет заселиться немедленно без необходимости срочных дополнительных вложений. Вся мебель остается в квартире.Микрорайон отличается развитой социальной и бытовой инфраструктурой. В пешей доступности находятся средняя школа 17, детские сады, сетевые и продуктовые магазины, аптеки, пункты выдачи заказов, а также парковая зона Каскад прудов . Остановки общественного транспорта расположены рядом с домом, обеспечивая удобную транспортную связность с другими районами города.Квартира принадлежит одному взрослому собственнику, продается без обременений и детского вопроса . В квартире никто не живет, не нужно будет ждать поиска собственником встречного жилья и последующего переезда. Это надежный и практичный вариант для собственного проживания или долгосрочных инвестиций Код пользователя: 193384Номер в базе:

Читать полностью

    Для того, чтобы купить двухкомнатную квартиру по адресу: Альметьевск, ул. Шевченко, 70, позвоните по телефону +7 (986) 912-37-06. Торопитесь! Объявление №30094708977 о продаже двухкомнатной квартиры опубликовано Вчера.

    Позвонить Написать
    4 100 000 Р51 420 $ или 44 470
    Агент
    +7 (986) 912-37-06
    Начать чат с агентом
    Похожие предложения
    2-комнатная квартира: Альметьевск, улица Шевченко, 70 (42.6 м) - Фото 1
    2-комнатная квартира: Альметьевск, улица Шевченко, 70 (42.6 м) - Фото 2
    2-комнатная квартира, общая площадь 42м², жилая 28м², кухня 5м²

    Квартира расположена на втором этаже панельного дома по улице Шевченко, 70. Объект полностью готов к проживанию благодаря выполненному косметическому ремонту: выровненные и побеленные потолки, мягкое, замененные радиаторы отопления. Все инженерные коммуникации...
    • 42 м²
    • 2-ком
    • 2/5 эт.
    4 100 000 Р
    Агент
    +7 (905) Показать номер
    Посмотреть контакты
    1-к кв. Татарстан, Альметьевск ул. Юнуса Аминова, 9А (34.7 м) - Фото 1
    1-к кв. Татарстан, Альметьевск ул. Юнуса Аминова, 9А (34.7 м) - Фото 2
    1-комнатная квартира, общая площадь 34м², кухня 6м²

    Продается светлая двухкомнатная квартира на 9 этаже в доме по улице Аминова. Объект предлагается в отличном состоянии с качественным современным ремонтом, не требующим дополнительных вложений. Вся электрическая разводка заменена, балкон остеклен и обшит...
    • 34 м²
    • 1-ком
    • 9/9 эт.
    • панельный
    4 100 000 Р
    Агент
    +7 (986) Показать номер
    Посмотреть контакты
    2-к кв. Татарстан, Альметьевск просп. Габдуллы Тукая, 5 (42.0 м) - Фото 1
    2-к кв. Татарстан, Альметьевск просп. Габдуллы Тукая, 5 (42.0 м) - Фото 2
    2-комнатная квартира, общая площадь 42м², кухня 6м²

    В продаже отличный вариант 2-х комнатной квартиры на 5 этаже кирпичного дома. В квартире зимой тепло, днем солнечно, сырости нет, а самое главное в квартире вас не побеспокоят соседи сверху, а также нет риска что вас кто-то затопит. Подъезд чистый, ухоженный,...
    • 42 м²
    • 2-ком
    • 5/5 эт.
    • кирпичный
    4 000 000 Р
    Агент
    +7 (919) Показать номер
    Посмотреть контакты
    2-к кв. Татарстан, Альметьевск ул. Белоглазова, 115 (38.9 м) - Фото 1
    2-к кв. Татарстан, Альметьевск ул. Белоглазова, 115 (38.9 м) - Фото 2
    2-комнатная квартира, общая площадь 38м², кухня 4м²

    Продаётся двухкомнатная квартира в центре города с отличным расположением В шаговой доступности находиться остановка общественного транспорта, магазины первой необходимости, гипермаркет Магнит , ледовый дворец Юбилейный , каскад прудов, центральная...
    • 38 м²
    • 2-ком
    • 2/2 эт.
    • блочный
    4 000 000 Р
    Агент
    +7 (987) Показать номер
    Посмотреть контакты
    1-комнатная квартира: Альметьевск, улица Юнуса Аминова, 9А (34.7 м) - Фото 1
    1-комнатная квартира: Альметьевск, улица Юнуса Аминова, 9А (34.7 м) - Фото 2
    1-комнатная квартира, общая площадь 34м², жилая 24м², кухня 6м²

    Продается светлая двухкомнатная квартира на 9 этаже в доме по улице Аминова. Объект предлагается в отличном состоянии с качественным современным ремонтом, не требующим дополнительных вложений. Вся электрическая разводка заменена, балкон остеклен и обшит...
    • 34 м²
    • 1-ком
    • 9/9 эт.
    4 100 000 Р
    Агент
    +7 (905) Показать номер
    Посмотреть контакты

    Не нашли подходящего объявления?

    Оставьте заявку, и наши риэлторы подберут квартиру в районе Альметьевска

    (0)