6 150 000 Р 79 590 $ или 67 360

Информация о квартире

62 м2
Площадь
48 м2
Жилая
14 м2
Кухня
3
Комнаты
3
Этаж
5
Этажность
Развернуть
Агент
+7 (917) 284-14-89
Начать чат с агентом

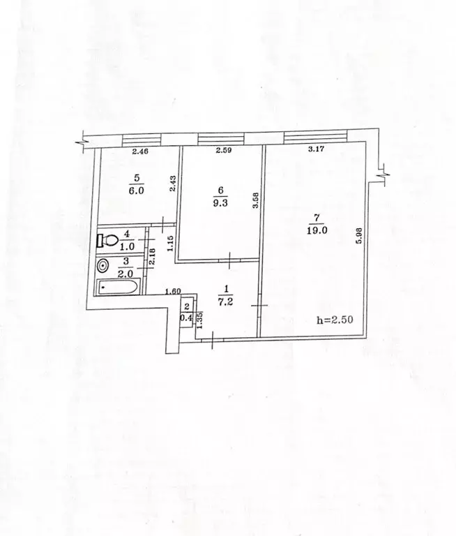
3-комнатная квартира: Альметьевск, проспект Строителей, 13 (62.4 м)

Покупай сейчас - плати потом На данный объект доступна рассрочка на выгодных условиях Продается просторная трехкомнатная квартира в капитально отремонтированном кирпичном доме на 3 этаже с теплыми и ухоженными подъездами. Дом отличается комфортным микроклиматом: зимой здесь тепло, а летом сохраняется приятная прохлада. Планировка включает три изолированные комнаты и кухню площадью около 15 кв.м с полноценной обеденной зоной. Кухня оборудована современным гарнитуром со всей необходимой встроенной техникой. Коммуникации в отличном состоянии — год назад произведена полная замена труб водоснабжения и установлен бойлер, гарантирующий бесперебойное горячее водоснабжение. Во всех помещениях выполнены практичные натяжные потолки, а в двух комнатах предусмотрены вместительные встроенные шкафы-купе. Балкон застеклен по современным стандартам и отделан вагонкой, санузел раздельный. Двор закрыт от постороннего транспорта, на придомовой территории организована бесплатная открытая парковка, где всегда есть свободные места. Расположение является ключевым преимуществом: в пешей доступности находятся детские сады, школы, а также профессиональное училище, техникум и институт КАИ. Повседневная инфраструктура полностью сформирована — магазины, рынок и торговые центры расположены в шаговой доступности. Район отличается развитой транспортной сетью. Это предложение идеально подходит для семьи, ценящей надежность, комфорт и удобство. Код пользователя: 199357Номер в базе:

Читать полностью

    Для того, чтобы купить трехкомнатную квартиру по адресу: Альметьевск, Строителей пр-кт., 13, позвоните по телефону +7 (917) 284-14-89. Торопитесь! Объявление №30093859892 о продаже трехкомнатной квартиры опубликовано 26 февраля 2026.

    Позвонить Написать
    6 150 000 Р79 590 $ или 67 360
    Агент
    +7 (917) 284-14-89
    Начать чат с агентом
    Похожие предложения
    2-к кв. Татарстан, Альметьевск Алсу мкр, ул. Рината Галеева, 23 (54.0 ... - Фото 1
    2-к кв. Татарстан, Альметьевск Алсу мкр, ул. Рината Галеева, 23 (54.0 ... - Фото 2
    2-комнатная квартира, общая площадь 54м², кухня 7м²

    Продаётся уютная двухкомнатная квартира Новый перспективный район с прекрасно развитой инфраструктурой ждёт вас Рядом расположены детские сады, школы, медицинские учреждения и крупные торговые центры. Удобства под рукой комфорт каждый день.В квартире...
    • 54 м²
    • 2-ком
    • 3/10 эт.
    • панельный
    6 100 000 Р
    Агент
    +7 (987) Показать номер
    Посмотреть контакты
    1-к кв. Татарстан, Альметьевск ул. Бигаш, 139 (40.0 м) - Фото 1
    1-к кв. Татарстан, Альметьевск ул. Бигаш, 139 (40.0 м) - Фото 2
    1-комнатная квартира, общая площадь 40м², кухня 6м²

    Предлагаем вашему вниманию уютную и просторную однокомнатную квартиру площадью 40 м, расположенную в новом динамично развивающемся районе города. Это идеальное решение для комфортного проживания или удачного инвестирования благодаря современным решениям...
    • 40 м²
    • 1-ком
    • 7/14 эт.
    • кирпичный
    6 100 000 Р
    Агент
    +7 (987) Показать номер
    Посмотреть контакты
    3-к кв. Татарстан, Альметьевск ул. Бигаш, 121 (69.2 м) - Фото 1
    3-к кв. Татарстан, Альметьевск ул. Бигаш, 121 (69.2 м) - Фото 2
    3-комнатная квартира, общая площадь 69м², кухня 8м²

    Продаётся 3-х комнатная квартира улучшенный планировки. Квартира светлая, теплая, просторная. Частично сделан ремонт: натяжные потолки, полы,обои. Остаётся кухонный гарнитур.Рядом вся инфраструктура: детские сады, школы, магазины, аптеки.Прекрасный вид...
    • 69 м²
    • 3-ком
    • 8/9 эт.
    • панельный
    6 150 000 Р
    Агент
    +7 (917) Показать номер
    Посмотреть контакты
    3-к кв. Татарстан, Альметьевск Советская ул., 155 (66.7 м) - Фото 1
    3-к кв. Татарстан, Альметьевск Советская ул., 155 (66.7 м) - Фото 2
    3-комнатная квартира, общая площадь 66м², кухня 8м²

    Продается 3 комнатная квартира улучшенной планировки на 1 этаже. Квартира с очень удобной планировкой.окна выходят на обе стороны. В шаговой доступности вся инфраструктура: садики, школы 20, 3,1, детская поликлиника,3 поликлиника и так далее.Взрослые...
    • 66 м²
    • 3-ком
    • 1/9 эт.
    • панельный
    6 200 000 Р
    Агент
    +7 (917) Показать номер
    Посмотреть контакты
    2-комнатная квартира: Набережные Челны, Московский проспект, 107 (44.9 ... - Фото 1
    2-комнатная квартира: Набережные Челны, Московский проспект, 107 (44.9 ... - Фото 2
    2-комнатная квартира, общая площадь 44м², жилая 28м², кухня 6м²

    Арт.. 2-комнатная квартира с капитальным ремонтом Московский проспект рядом парк ГренадаПродается полностью готовая к проживанию 2-комнатная квартира в одном из самых востребованных районов по Московскому проспекту, рядом с парком «Гренада .Квартира для...
    • 44 м²
    • 2-ком
    • 1/9 эт.
    6 199 000 Р
    Агент
    +7 (905) Показать номер
    Посмотреть контакты

    Не нашли подходящего объявления?

    Оставьте заявку, и наши риэлторы подберут квартиру в районе Альметьевска

    (0)