3 400 000 Р 44 730 $ или 37 660

Информация о квартире

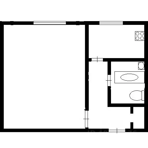
31 м2
Площадь
6 м2
Кухня
1
Комната
1
Этаж
5
Этажность

Дополнительная информация

Тип дома
кирпичный
Развернуть
Агент
+7 (917) 852-50-45
Начать чат с агентом

1-к кв. Татарстан, Альметьевск ул. Ленина, 87 (31.0 м)

Продается однокомнатная квартира в престижном центральном районе города. Объект расположен в тихом, озелененном дворе, при этом все ключевые объекты инфраструктуры находятся в шаговой доступности: каскад прудов для прогулок, школы 15 и 17, детские сады 34 и 23, супермаркеты, Центральная районная больница, торговый комплекс Панорама и Дом Культуры Нефтьче . В нескольких минутах ходьбы — остановка общественного транспорта с маршрутами во все районы города. Квартира полностью готова к проживанию: в сделку включена вся функциональная мебель, что позволяет заселиться сразу после покупки. Помещение светлое, с четкой классической планировкой, обеспечивающей рациональное использование пространства. Объект реализуется одним взрослым собственником, не имеет никаких долгов, обременений или юридических осложнений, что гарантирует быструю и чистую сделку. Это надежное вложение в недвижимость в стабильном, сформированном районе с развитой социальной и транспортной инфраструктурой, предлагающее комфорт и максимальное удобство для жизни. Код пользователя: 195654Номер в базе:

Читать полностью

    Для того, чтобы купить однокомнатную квартиру по адресу: Альметьевск, ул. Ленина, 87, позвоните по телефону +7 (917) 852-50-45. Торопитесь! Объявление №30092196708 о продаже однокомнатной квартиры опубликовано 12 января 2026.

    Позвонить Написать
    3 400 000 Р44 730 $ или 37 660
    Агент
    +7 (917) 852-50-45
    Начать чат с агентом
    Похожие предложения
    2-к кв. Татарстан, Альметьевск ул. Автомобилистов, 4 (50.7 м) - Фото 1
    2-к кв. Татарстан, Альметьевск ул. Автомобилистов, 4 (50.7 м) - Фото 2
    2-комнатная квартира, общая площадь 50м², кухня 11м²

    Продается двухкомнатная квартира площадью 50,7 кв.м в кирпичном доме, расположенная на втором этаже. Планировка отличается рациональностью и комфортом: обе комнаты площадью по 16 кв.м просторные и правильной формы, а кухня в 11 кв.м позволяет с удобством...
    • 50 м²
    • 2-ком
    • 2/2 эт.
    3 300 000 Р
    Агент
    +7 (987) Показать номер
    Посмотреть контакты
    1-комнатная квартира: Альметьевск, улица Чапаева, 4 (31 м) - Фото 1
    1-комнатная квартира: Альметьевск, улица Чапаева, 4 (31 м) - Фото 2
    1-комнатная квартира, общая площадь 31м², жилая 20м², кухня 6м²

    Продаётся уютная однокомнатная квартира в спальном районе с развитой инфраструктурой. Квартира расположена на третьем этаже и готова к проживанию без дополнительных вложений. В шаговой доступности находятся школы, детские сады и больницы, что делает её...
    • 31 м²
    • 1-ком
    • 3/5 эт.
    3 500 000 Р
    Агент
    +7 (917) Показать номер
    Посмотреть контакты
    2-к кв. Татарстан, Альметьевский район, Нижняя Мактама пгт ул. ... - Фото 1
    2-к кв. Татарстан, Альметьевский район, Нижняя Мактама пгт ул. ... - Фото 2
    2-комнатная квартира, общая площадь 45м², кухня 5м²

    Продается 2-комнатная квартира в Нижней Мактаме. Дом кирпичный, теплый, на первой линии. Квартира на втором этаже, застекленный балкон. Окна пластиковые, стены ровные. Индивидуальное отопление, что поможет сэкономить по квартплате и иметь всегда теплую...
    • 45 м²
    • 2-ком
    • 2/2 эт.
    • кирпичный
    3 500 000 Р
    Агент
    +7 (919) Показать номер
    Посмотреть контакты
    2-к кв. Татарстан, Зеленодольск ул. Ленина, 16 (57.8 м) - Фото 1
    2-к кв. Татарстан, Зеленодольск ул. Ленина, 16 (57.8 м) - Фото 2
    2-комнатная квартира, общая площадь 57м², жилая 31м², кухня 11м²

    ЧИСТАЯ ПРОДАЖА.ВЗРОСЛЫЙ СОБСТВЕННИК.СВОБОДНА ОТ ПРОЖИВАНИЯ И ПРОПИСКИ.КВАРТИРА ЮРИДИЧЕСКИ ЧИСТАЯ: БЕЗ ДОЛГОВ. БЕЗ АРЕСТОВ.ДОМ: В экологически чистом и тихом месте, в исторической части города, на Центральной улице Ленина, всего в...
    • 57 м²
    • 2-ком
    • 4/4 эт.
    • кирпичный
    3 350 000 Р
    Агент
    +7 (951) Показать номер
    Посмотреть контакты
    3-комнатная квартира: посёлок городского типа Нижние Вязовые, ... - Фото 1
    3-комнатная квартира: посёлок городского типа Нижние Вязовые, ... - Фото 2
    3-комнатная квартира, общая площадь 61м², жилая 35м², кухня 10м²

    В продаже трехкомнатная квартира с индивидуальным отоплением в Нижних Вязовых Адрес: Строительная 4Площадью 60 кв.мПлощадь кухни: 5,7 кв.мСвежий ремонт, заезжай и живи В квартире остается: кухонный гарнитур, мебель в ванной Магазины, школы, садики в шаговой...
    • 61 м²
    • 3-ком
    • 2/2 эт.
    3 500 000 Р
    Агент
    +7 (905) Показать номер
    Посмотреть контакты

    Не нашли подходящего объявления?

    Оставьте заявку, и наши риэлторы подберут квартиру в районе Альметьевска

    (0)