Реализация объекта недвижимости приостановлена

Информация о квартире

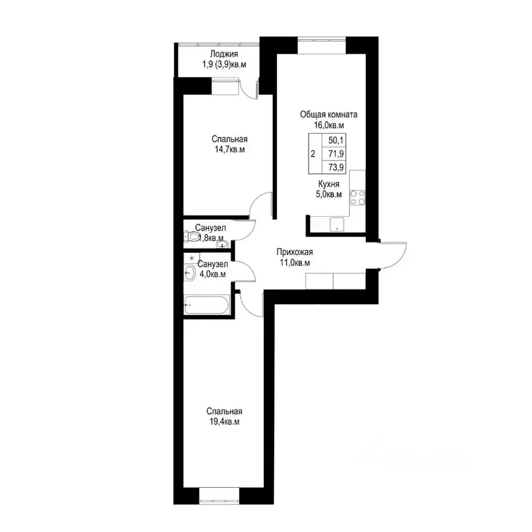
73.0 м2
Площадь
2
Комнаты
11
Этаж
16
Этажность

Дополнительная информация

Тип дома
кирпичный
Развернуть

2-к кв. Татарстан, Альметьевск (73.9 м)

Продаётся 2-комнатная квартира в строящемся доме (Литер 1), срок сдачи: II-кв. 2026, общей площадью 73.9 кв.м., на 11 этаже. Новый жилой комплекс Ривьера Life от застройщика СК ЕвроСтройасположен по адресу город Альметьевск, улица Булгар

Читать полностью

    Реализация объекта недвижимости приостановлена

    Не нашли подходящего объявления?

    Оставьте заявку, и наши риэлторы подберут квартиру в новостройке в районе Альметьевска

    (0)